![]() | Aeronautica | Comunicatii | Constructii | Electronica | Navigatie | Pompieri |
| Tehnica mecanica |
1.1 OBIECTUL PROCESULUI TEHNOLOGIC CADRU
Obiectul prezentului proces este obtinerea de corpuri de nava apte de lansare si plutire prin montarea de sectii de volum , piese de completare , fise de modificare si structuri speciale,
Procesul tehnologic se desfasoara pe 3 schimburi , 5 zile pe saptamana si regim de ore suplimentare sambata.
1.2 Definitii:
Corpul de nava este un corp plutitor, etans, de o constructie speciala, avand forma, rezistenta structurala, calitati nautice si echipament care sa-i permita navigatia si utilizarea in siguranta pentru transportul de marfuri, pescuit oceanic, misiuni militare, cercetari stiintifice, lucrari tehnice ori pentru activitate portuara avand un mijloc propiu de propulsie sau fiind remorcat de alta nava.
Sectie de volum este ansamblu si parte componenta a corpului de nava compus din osatura simpla, osatura compusa, panouri plane si/ sau curbe si elemnte de completare (guseie , bracheti)
Sectiile de volum pot fi clasate ca :
Piese de completare sunt elemente de structura care se monteaza pe zona cuplarilor dintre sectiile de volum.
Fisa de modificare este un document emis de departamentul tehnic in vederea modificarii anumitor zone a corpului de nava .
Tipurile de fise de modificare sunt:
Structuri specifice sunt stucturi si parti componente a corpurilor de nava prin care se completeaza anumite zone cu utilizare si destinatie speciala .
Structurile speciale pot fi :
Delimitare proces
Intrare proces:
Iesire proces :
corp de nava
2.Capabilitate tehnologica proces
HALA MONTAJ
CALA DE 15000tdw ( fila 5, 6)
CALA DE REPARATII NAVE ( fila 3, 4)
CALA DE NAVE MICI
Sarcina pe metru liniar de sine este de numai 20 t/m (se executa premontaje de suprastructura)
MIJLOACE DE TRANSPORT
dimensiuni platforma de transport L = 14m , l= 5m
inaltimea fata de sol h = 2,3m
h = 2,3m
dimensiuni platforma de transport L = 17 , l = 6,1m
inaltimea fata de sol h= 2,7m
dimensiuni platforma de transport L = 12,3, l = 5m
In cradul procesului de montaj corp nava sectia Montaj are capacitate de a prelucra lunar 2400 tone.
3. Documentatie tehnica suport
In cadrul procesului tehnologic "Montaj corp nava" se utilizeaza urmatoarea documentatie tehnica suport:
documentatie de executie;
fise de modificare;
fise de masuratori blocuri ;
plan inspectii si testari;
fisa amplasare ocheti
strategia de fabricatie specifica fiecarui corp de nava;
instructiuni tehnologice specifice;
plan pentru tren de carucioare.
MC 4. Descrierea secventelor de lucru
MC 4.1 Aprovizionarea procesului
Documentatia suport in baza careia se executa activitatea de aprovizionarea procesului:
Procesul tehnologic MONTAJ CORP NAVA este aprovizionat cu :
Echipamentele de lucru folosite la activitatea de aprovizionare proces sunt urmatoarele:
transportor autopropulsat cu actionare hidraulica tip SCHEUERLE si KAMAG;
platforme metalice structurale cu picioare de asezare (latime 5,5 m; lungime16m; inaltime ~2 m; sarcina de incarcare 100 tone );
suporti metalici independenti (inaltime 1,2 m ; suprafate de contact 0,6x1 m; sarcina de incarcare 25 tone);
macara portic cu brat mobil de 50/25 TF,
skyworker;
sufe metalice;
dispozitiv de ridicare cu patru brate portante ;
chei de tachelaj;
funie pentru ghidare;
gat ;
paleti;
cupe;
truse de autogen GCE;
sursa de sudura master 2200.
TRANSPORTOR SCHEUERLE

Platforma MPEK 190.6.2 are o lungime totala de 12.3 m si o latime de 5 m, functionand la o
temperatura minima de -20 °C si maxima de +40°C, greutatea totala maxima permisa pentru transportul sectiilor este de 228t, la 10kmh greutatea este de 206.4 tone iar la viteza de 15kmh greutatea maxima este de 178.2 tone.
TRANSPORTOR KAMAG

Platforma Kamag are o lungime de 17 m si o latime de 6,1m iar greutatea este de 67t.
Greutatea maxima permisa pentru transportul sectiilor este de 285tone, viteza maxima fara
sarcina este de 12kmh.
PLATFORMA METALICA CU PICIOARE DE ASEZARE

MACARA PORTIC CU BRAT MOBIL 50/25 TF


CHEIE DE TACHELAJ

Dispozitiv de prins tabla TPS

Dispozitiv de ridicare cu patru brate portante


A. Aprovizionarea cu sectii de volum
Pentru ca sectia de volum sa fie aprovizionata in cadrul procesul de MONTAJ CORP NAVA trebuie sa fie predata catre registrul de clasa si inspectorului din partea beneficiarului din punct de vedere dimensional, structural si a pregatiri suprafetelor ( reparatii otel).Prosesul de aprovizionare cu sectii de volum urmeaza schema de mai jos.
Transportul si intorcerea sectiilor de volum e realizat de o echipa formata din 6 muncitori coordonati de un sef de echipa, calificati in meseria de lacatus constructii nave si autorizati ca legatori de sarcina.
Sectiile de volum executate in pozitie normala sunt transportate in zona de executie a
blocului de nava iar cele executate in pozitie rasturnata necesita operatia de intoarcere.
Intoarcerea sectiilor de volum se face in zone speecial amenajate si in baza unei fise de de amplasare ocheti , document realizat si asigurat de serviciul suport productie . Toate operatiile de manipulare, manevrare si transport se executa numai in prezenta conducatorului de formatie ( sef echipa si/sau maistru autorizat RSVTI)care este instruit si apt sa coordoneze astfel de activitati, indiferent de utilajele folosite si de locul de efectuare al lucrarilor . Pentru buna desfasurare a manevrelor de intoarcere sectii de volum personalul executant trebuie sa cunoasca si sa respecte urmatoarele:
greutatea teoretica a sectiei care se transporta sau intoarce;
schema de amplasare a ochetilor si schema de legare si amplasare centru de greutate;
conditiile de mediu in care pot fi executate fara riscuri operatiile de transport si intoarcere;
rezultatul controlului US a tablei din zona de amplasare a ocherilor .
sa cunoasca, sa aplice si sa urmareasca aplicarea regulilor de verificare a dispozitivelor de legare si a dispozitivelor de prindere;
sa cunoasca si sa aplice codul de semnalizare, pentru a putea indica in orice moment macaragiului manevrele pe care urmeaza sa le execute ;
sa foloseasca mijloacele de legare corespunzotoare greutatii sectiei de volum;
sa execute corect legarea sarcinii, fara incrucisarea cablurilor la introducerea acestora in carlig;
sa se asigure ca sarcina este echilibrata , iar cablurile de legare sunt intinse si asezate uniform, sa nu fie in contact cu muchii ascutite si fara a fi expuse rasucirii;
la carligele duble sa suspende sarcina pe ambele deschideri si sa o repartizeze in mod egal;
inainte de efectuarea manevrei de intoarcere sa efectueze o ridicare de incercare pana la inaltimea de cca. 100 mm de la sol pentru ca mijloacele de legare sa ajunga in pozitie intinsa si sa verifice echilibrarea sarcinii;
sa interzica circulatia pe sub sarcina ridicata , iar cand sarcina e transpotata deasupra locurilor de productie sa indeparteze toate persoanele la o distanta corespunzatoare ;
sa supravegheze sarcina pana ce se asigura ca aceasta este coborata si plasata corect ; sa nu dezlege sarcina inainte de a fi bine ancorata ;
Intoarcere unei sectii se poate realiza in doua moduri si anume :
A 1 .intoarcere sectii cu sprijin pe sol .
A 2. intoarcere sectii in aer fara spijin pe sol :
A 1 .Intoarcere sectii cu sprijin pe sol .
Intoarcerea sectiilor cu sprijin pe sol se efectueaza atunci cand sarcina de lucru depaseste greutatetea de 50 tone, si se realizeaza cu doua macarale cu sarcina nominala de lucru de 50 tone. Pentru ca manevrele de intorcere sectii cu sprijin pe sol sa se desfosare in conditii normale fara a pune in pericol integritatea sectiei, a macaralelor si a personlaului executatnt trebuiesc respectate urmatoarele reguli.
Regula 1
Cand legatura de la macaraua 2 se gaseste pe verticala punctului de rotire, sarcina in aceasta macara trebuie sa fie ~ 0.centrul de greutate trebuie sa fie obligatoriu in cadranul I. Dupa ce se face trecerea cu legatura in cadranul II, dar fara ca centrul de greutate sa treaca si el in cadranul II, se poate incarca si macaraua 2.

Regula 2
In pozitia de echilibru indiferent ( centru de greutate pe verticala punctului de rotire ) bratul macaralei 1 trebuie sa fie mai mic decat bratul macaralei 2, eliminanduse pericolul supraincarcarii macaralei 2 de catre macaraua 1.



In figura 2.1 macaragiul "forteaza" rotirea prin cresterea fortei F1, aceasta manevra conducand la cresterea fortei in macaraua 2. Acest lucru e pozitiv deoarece la trecerea imediata a centrului de greutate in cadranul II , macaraua 2 trebuie sa preia si momentul fortei de greutate. Daca macaraua 2 nu ar avea suficienta rezerva de sarcina , forta F2 va depasi capacitatea nominala de lucru a macaralei.Obligatoriu aceasta trecere a centrului de greutate din cadranul I in cadranul II trebuie facuta cu viteza minima, pentru ca incarcarea macaralei 2 sa nu se faca brusc.
Regula 3
In figura 3 situatie similara cu aceea din figura 1, dar in oglinda .Situatia nu este periculoasa atata timp cat se pastreaza in continuare miscarea de rotire in sens trigonometric ( invers acelor de ceasornic).Situatia devine periculoasa daca in acel moment se face manevra gresita de rotire in sens inverssituatie in care macaraua 1 trebuie descarcata imediat la sarcina 0.

Regula 4
Cu cat ochetul de la macarua 1 este mai aproape de "orizontala "centrului de greutate , cu atat si macaraua 1 ajuta la "franarea" acestuia in etapa de coborare a sectiei de volum.

Regula 5
Utilizarea obligatorie a rostogolitorilor "ovali".
A 2. Intoarcere sectii in aer fara spijin pe sol
Intoarcerea sectiilor in aer fara sprijin pe sol se realizeaza atunci cand sarcina maxima de lucru nu depaseste 50 tone si se realizeaza cu doua macarale a caror sarcina nominala de lucru e de 50 tone.Manevrele se realizeaza intotdeauna in prezenta unui autorizat RSVTI care verifica si supravegheaza procesul de intoarcere.
Fazele procesului de intoarcere sectii in aer fara sprijin pe sol sunt:
Sectia se afla in pozitie rasturnata, se agata cu macaraua 1 de ochetul 1 si cu macaraua 2 de ochetul 2, urmand a fi ridicata la o inaltime corespunzotoare efecturii manevrei de intoarcere fara a exista pericolul de a atinge solul.

Sectia se afla in pozitie intermediara de intoarcere, manevra efectuandu-se prin ridicarea sarcinicu macaraua 1 si coborarea sarcini cu macaraua 2 pana in momentul cand macarua 1 va prelua toata greutatea sectiei .


Macaraua 2 e dezlegata de la ochetul 2 si va fi legata la ochetul 1 pentru a se continua manevra de intoarcere .

Sectia se afla in pozitie normala si urmeaza a fi pozitionata pe platmorma metelica cu piciore de asezare, asigurat si transpotata in zona de exetie boc de nava.
B . Aprovizionarea cu piese completare montaj, fise de modificare si structuri specifice
MC 2.Centrat Sectii de volum in cadrul blocului:
Centrajul la sectia montaj se executa de catre 2 formatii ce sunt de obicei repartizate pe blocuri si nave.Fiecare formatie de centratori are in componenta sa muncitori specializati pentru acest tip de operatiune, adica legatori de sarcina si lacatusi constructii nave. Pe scurt operatiunea de centraj presupune urmatoarele etape: trasat planul diametral al navei pe sol, trasat descarcarea sectiei (in cazul sectiilor ce cad pe alta sectie), ridicat sectia de volum, pozitionat, asigurat, eliberat macaraua, verificat planeitate, masurat inaltimea de constructie de la linia de baza, trasat plusul de montaj, taiat plusul, sanfrenat, realizat noduri tipice, reverificat planeitate si cote de inaltime.La centrarea sectiilor de volum sunt folosite urmatoarele echipamente de lucru: pod rulant 50/12.5 TF;pod rulant 75/12.5 TF; echipament de sudura MASTER 2200; presa hidraulica YS 10/100; tirant mecanic HOLMATRO 25 T; nivela optica C330 SOKIA; nivela optica NA 730; cric mecanic PC 25T.
Plusul se taie semi - automat si manual dupa trasaj, mai nou utilizandu-se elemente ajutatoare (vergele magnetice, cutite adaptate cu carucioare) pentru a contracara imperfectiunile ce pot aparea datorita mainii de lucru.
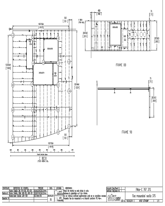
Dupa centrarea unei sectii se completeaza fisa de masuratori a sectiei ce este prezentata CTC-ului. La finalizarea cuplarilor se preda dimensional blocul, respectiv nava dupa cuplarea blocurilor prin completarea unei fise de masuratori.
Aparitia asamblarilor sudate in constructia corpului navei a permis posibilitatea asamblarii preliminare si in sectii, modificandu-se succesiunea lucrarilor pe cala. Astfel creste calitatea produselor, productivitatea muncii, se reduce ciclul de fabricatie, scade costul de productie.
Lucrarile de asamblare depind in mare masura de metoda care se alege pentru formarea corpului navei pe cala.
Inainte de a se incepe montarea corpului de nava, cala trebuie pregatita.
CENTRAREA UNEI SECTII DE VOLUM INDIFERENT DEPOZITIA PE NAVA,FORMA,DIMENSIUNI,GREUTATE INCUMBA URMATOARELE OPERATII :
- Trasarea liniei planului diametral - Pregatirea prelucrarilor specifice pentru prinderea in puncte de sudura
- Trasarea sectiunii maestre
- Trasarea catorva linii teoretice ale coastelor
- Trasarea liniei de baza pentru control LB
- Taiat plusul de material de pe sectiile din cuplare
MC2.1.Trasarea planului diametral. Trasarea PD se executa pentru fiecare nava care se monteaza pe cala de constructie, functie de planul de amplasare pe cala a navei. La extremitati, se aseaza doua placi metalice, conform desenului de mai jos, marcandu-se jumatatea lor.
Pe caile de lansare 4 se aseaza cadrele metalice 1 si 3 pe care se materializeaza PD si prin care intindem o struna. De la aceasta struna, coboram firul cu plumb in dreptul fiecarei sine de pe cala si punctam si marcam linia planului diametral (PD) pe cala.

MC2.2.Trasarea liniei de baza pentru control LB.
Pentru verificarea lucrarilor, in timpul constructiei navei, cala trebuie prevazuta cu o linie dreapta in spatiu.
De obicei, LB pentru control se aseaza lateral PD la 700-1000 mm si la o inaltime de 400-1200 mm fata de cala.
Daca pe cala se construiesc simultan cateva blocuri de nava, se traseaza o singura linie de control, comuna, a carei amplasare depinde de conditiile in care se fac verificarile. Trasarea liniei de baza pentru control se executa prin metoda razei de lumina. In prezent, tot mai raspandita este o metoda optica cu un aparat numit teodolit sau cu laserul.
MC2.3.CENTRAREA SECTIILOR DE FUND
Formarea corpului navei pe cala incepe prin montarea sectiilor de fund. Sectiile de fund care au si DF necesita un montaj mai complicat pe cala, deoarece marele numar de elemente de imbinare asezate pe plane diferite ingreuneaza lucrarile de verificare si maresc foarte mult volumul de lucrari.
In toate sectiile de fund, se lasa adaosuri de prelucrare la montaj la una din marginile de imbinare, conform schemei de asamblare a sectiilor pe cala.
In cazul cand pe latime fundul navei este construit din doua sectii, marginile de imbinare ale sectiei care cuprinde PD, se prelucreaza la dimensiunile finite din atelier, pentru a se putea verifica pozitia corecta a sectiilor de fund pe cala.
Pe tablele fundului si a DF se traseaza linia PD si liniile teoretice ale varangelor. Pe cala, sectiile de fund se monteaza pe pontili metalici.
Trenurile de carucioare sunt introduse in hala montaj sau pe filele de afara de catre sectia doc, iar sectia montaj monteaza pontili si flanse conform planului de pontilat (pontilii sunt din teava de app. 273 mm cu grosimea de 12 mm). In cazul blocurilor de extremitate (bloc pupa sau prova) se mai construieste un cadru din teava (stend) ce are rolul de a prelua zonele cu structura deosebita. In functie de ordinea de cuplarea a blocurilor, la centrajul final celelalte blocuri sunt construite mai sus fata de blocurile precedente pentru a fi posibil centrajul final.




MC2.4.MONTAREA PERETILOR TRANSVERSALI SI LONGITUDINALI:
Peretii transversali si longitudinali se aduc pe cala dupa ce s-au asamblat si sudat sectiile de fund ale raionului respectiv. In general, peretii se trimit pe cala trasati si executati la dimensiunile finite.
Atunci cand peretii sunt prevazuti cu adaosuri de prelucrare, acestea se lasa astfel:
- Pe marginile inferioare, la peretii transversali
- Pe marginile inferioare si pe una din marginile laterale la peretii longitudinali.
Pentru verificarea pe inaltime a peretilor, in atelierul de preasamblare se traseaza pe ei linii de control. Pe peretii transversali se traseaza in plus si linia planului diametral PD.
Peretii se aseaza peste liniile trasate pe sectiile de fund respective. Pentru a se preintampina deplasarea peretelui, de o parte si de alta a liniei trasate se sudeaza platbandele de limitare. La partea superioara, peretii se fixeaza prin tiranti sau prin proptele. Pozitia peretelui transversal se verifica prin:
- Suprapunerea marginii inferioare peste linia teoretica a varangei
- Suprapunerea liniei PD trasata pe perete peste acea trasata pe sectia de fund exemplificata in desenul de mai jos
- Masurarea distantei h dintre planul de baza si linia de control de pe perete si confruntarea cu datele din desenul de montaj.
- Suprapunerea liniilor de control trasate pe peretele transversal peste cele trasate pe peretele longitudinal, cu ajutorul nivelei optice
Dupa verificarea, trasarea si taierea adaosurilor de prelucrare, peretii transversali se monteaza definitiv, in vederea sudarii.
Datorita noilor tehnologii, majoritatea sudurilor se executa in regim automat si semiautomat, cea manuala folosindu-se numai la prinderea structurilor in puncte de sudura si la sudarea elementelor greu accesibile, in spatii inchise.


MC2.5.MONTAREA SECTIILOR DE BORDAJ
Dupa ce s-au asamblat si sudat sectiile de fund, peretii longitudinali si cei transversali ai raionului respectiv, se monteaza sectiile de bordaj.
Acestea sosesc pe cala cu adaos de prelucrare pe cusatura longitudinala si pe una din cusaturile transversale, de regula indreptate spre cuplul maestru.
Pe suprafata sa exterioara, bordul are trasate liniile teoretice ale coastelor extreme si centrala, ca in desenul alaturat, liniile puntii si linia de control. Sectiile de bord se fixeaza prin tiranti.
Osatura transversala a bordajului se prinde pe marginea DF, iar asezarea corecta a sectiilor de bordaj se verifica astfel:
- in lungime, prin suprapunerea liniei teoretice a coastei mediene cu linia teoretica a varangei mediene, trasata pe linia de fund
- in latime, prin verificarea distantei dintre muchia inferioara a sectiei de bordaj si PD, unde pozitia marginii se verifica cu firul de Pb
in inaltime, prin verificarea distantei h, masurata de la linia fundului pana la linia de control 1.
Dupa trasarea si taierea adaosurilor, sectiile se monteaza definitiv si se asambleaza pentru sudare.
MC2.6.MONTAREA SECTIILOR DE PUNTE:
In latime, puntea poate fi compusa din una, doua sau trei sectii care se monteaza separat pe cala. In functie de numarul acestor sectii, se determina adaosul de prelucrare pentru cusaturile transversale si longitudinale.
Cand puntea este formata dintr-o singura sectie pe latime, se lasa adaos numai la una din marginile transversale, in cazul a doua sectii se lasa adaos pe muchiile transversale ale fiecarei sectii, precum si pe marginea longitudinala a uneia dintre sectii. Cand puntea este formata dintr-o singura sectie pe latime, se lasa adaos numai la una din marginile transversale, in cazul a doua sectii se lasa adaos pe muchiile transversale ale fiecarei sectii, precum si pe marginea longitudinala a uneia dintre sectii. Cand puntea este formata din trei sectii, muchiile longitudinale ale sectiei din mijloc se prelucreaza la dimensiunile finite, iar adaos se lasa la una din sectiile laterale.
Pe sectiile de punte sosite pe cala se gasesc trasate PD si liniile teoretice ale traversei mediane si ale traverselor extreme.
Sectiile de punte se sustin prin pontili pentru corecta amplasare pe inaltime, si care pot avea uneori si dispozitive pentru reglare pe inaltime.
In locul de imbinare a bordajului cu puntea, pe bordaj se sudeaza placute pe care se sprijina puntea, fixand astfel pozitia acesteia in inaltime.
Daca puntea are o singura sectie pe latime, pozitia ei se verifica astfel:
A. pe lungime, prin verificarea coincidentei liniilor teoretice ale traverselor trasate pe punte cu cele ale coastelor trasate pe bordaj
B. pe latime, prin verificarea concordantei PD de pe punte cu PD de pe puntea inferioara
C. pe inaltime, prin verificarea corespondentei marginilor puntii cu liniile teoretice ale puntii trasate pe bordaj - la cornierele de sprijin.
In cazul cand puntea este formata din doua sectii pe latime, montajul se verifica in mod analog, iar cand este format din trei sectii se verifica mai intai sectiile de margine pe lungime si inaltime, iar pe latime se verifica fata de PD sau fata de liniile paralele in PD, trasate pe puntile inferioare.
Sectia de mijloc se verifica in lungime cu ajutorul liniei teoretice a traversei, care trebuie sa corespunda pe toate trei sectii ale puntii. Dupa trasarea si taierea adaosurilor, sectiile se monteaza definitiv si se asambleaza pentru sudare. Imbinarile transversale se prind in puncte de sudura, iar cele longitudinale prin piepteni. Inainte de sudare, se monteaza pontilii si se prind de peretii transversali de punte.
Blocurile finalizate nu trebuiesc sa aiba o inaltime mai mare de 18m deoarece nu poate fi introdus in hala de sablare vopsire.
Dupa finalizarea centrajului si completarea fiselor masuratori la CTC se
intra la prins cuplarea 
|
MC2.7.Tipuri de prelucrari pentru sudura
WPS: C1 - PA C2 - PC C3 - PF
WPS: C 05M -
Toate pozitiile, fara PF
Tg = 17.5 - 70
WPS: B 05G -
Toate pozitiile, fara PF |
|
WPS: F1 - PB F3 - PF F4 - PD

WPS: TC 01 - PA TC 02 - PF TC 03 - PC,
PD |
MC 3.Montajul sectiilor de volum prin prindere in puncte de sudura:
Sectia montaj are un total de 7 formatii de lacatusi ce lucreaza cu precadere la cuplari inelare , longitudinale si intre blocuri.Echipele de lucru sunt compuse de obicei din 2 lacatusi navali. Dupa asigurarea cuplarii cu schela si utilitati se intra la prins.
Inainte de inceperea prinderii sectiilor in puncte de sudura maistrul sau seful de echipa repartizat pe aceasta lucrare verifica daca toate conditiile necesare startarii sunt indeplinite.Adica schela este facuta corespunzator cu marcajul facut de catre schelari "Schela buna de lucru" , daca sunt distribuitoare de oxigen si acetilena in stare buna de fuctionare.Daca spatiile inchise sunt marcate corespunzator , cu avertismentul "Atentie spatiu inchis" si daca sunt ventilate corespunzator.
Daca toate aceste conditii sunt indeplinite se poate starta prinderea sectiilor de volum.In prima faza ce va poliza corespunzator sanfrenul de toate brocurile de sudura pentru ca atunci cand se va starta sudura sa nu apara imperfectiuni ale cordonului de sudura.Prinderea sectiilor se face cu oameni specializati cu functia de lacatus constructii nave.
Pentru prinderea sectiilor de volum in punste de sudura se vor folosi uramatoarele echipamente de lucru:
electrod superbaz Ø 2.5 mm;
electrod superbaz Ø 3.25 mm;
electrod supertit Ø 2.5 mm;
electrov OVERCOR Ø2.5mm;
bolturi M 16 - pentru masina de impuscat bolturi;
bolturi M16 - pentru masina de impuscat bolturi;
piulite M16- ptr.masina de impuscat bolturi;
pene metalice;
creta;
ac trasat;
markere;
rulete ;
Prinderea se face cu ajutorul pieptinilor de aluminiu sau in zonele ce prezinta dezaxari majore iar grosimea tablei trece de 15 mm se folosesc pieptini ajutatori de metal din recuperari. Avantajul folosirii pieptinilor de aluminiu apare la predarea tehnica finala unde se polizeaza cu app. 40 % fata de un pieptan de metal. Dezavantajul apare in zona de gurna si zonele dezaxate unde nu se pot folosii datorita rezistentei limitate a bolturilor de prindere.
Pentru prinderea in puncte de sudura se vor urma urmatorii pasi:
- studierea planurilor de executie a sectiilor aferente si scoaterea pieselor de completare
prins in puncte de sudura peretii longitudinali si transvesali.
polizat sanfrenul.
prins peretele dublului bord si bordaj plus osatura aferenta acestora.
verificat osatura daca este pe descarcare cu elementele de osatura de pe sectia inferioara.
montajul pieselor de completare.
- prins in puncte de sudura zona dublu fundului si a fundului.
- prins osatura in zona dublu fundului.
- prins bordaj exterior si a dublu bordului.
- prins puntea principala .
- prins osatura sub puntea principala.
MC 3.1.Prinderea pieptenilor
Amorsarea se face pe piepten. Se respecta un regim de sudare care sa nu produca arsuri marginale sau cratere pe tabla.
Electrodul se inclina astfel incatsudura sa topeasca mai mult tabla corpului decat pieptenul;
La desprinderea
pieptenului, sudura va ramane pe tabla corpului. Se evita astfel ciupiturile ce
trebuie incarcate cu sudura si polizate.

Daca sudura ramane pe piepten, la desprinderea acestuia, pe tabla raman ciupituri.
Daca sudura de prindere este grosolana atunci trebuie executata o taietura cu polizorul pentru a se desprinde mai usor.
Pieptenii nu se indeparteaza prin taiere oxigaz, datorita incalzirii locale care conduce la contractii si deformatii.
MC 3.2.Prinderea in puncte de sudura
Prinderea in puncte de sudura trebuie sa asigure corecta pozitionare si rigidizare a reperelor de asamblat.
Punctele de prindere pot ramane in sudura finala numai daca sunt indeplinite urmatoarele conditii:
sudura se executa conform unei proceduri de sudare autorizate ;
punctele se executa de sudori de prins atestati pentru procedeul si pozitia de sudare cu care se executa prinderea;
punctele de prindere se executa cu consumabile uscate, utilizate conform instructiunii de depozitare si manipulare a electrozilor inveliti;
orice defecte (arsuri, fisuri, zgura, pori, etc) se elimina inainte de sudura continua;
daca sudura continua trebuie executata cu preincalzire, punctele de prindere se vor executa de asemenea cu preincalzire la temperatura specificata pentru sudura continua;
la executia punctelor de prindere se impun aceleasi conditii referitoare la sudarea in conditii meteo nefavorabile ca la sudura continua.
Punctele de prindere ce au rol de fixare a ansamblului (si care nu raman in sudura finala) nu se elimina pana cand sudura continua nu a ajuns intr-un stadiu care sa evite fisurarea hafturilor ramase, descentrarea ansamblului sau deformarea peste limitele admise.
MC 3.3 EXECUTIA PUNCTELOR DE PRINDERE
amorsarea se face intr-un punct ce urmeaza a fi acoperit de sudura; nu se permite amorsarea in afara zonei acoperite de sudura;
craterul final trebuie umplut prin intoarcerea arcului si mentinerea lui pe loc timp de cateva secunde astfel incat sa se depuna metal topit in crater
in cazul reperelor de grosime mai mare de 20mm sau in cazul otelurilor de inalta rezistenta de grosime mai mare de 12mm, punctele de prindere se dau in 2 straturi; straturile se depun in sensuri opuse pentru a nu concentra craterele la un singur capat


a) lungimea unui punct de prindere trebuie sa fie de 4 x t (t= grosimea reperelor de imbinat) dar nu mai lungi de 60mm. La oteluri inox punctele de prindere vor mai lungi (intre 50 si 80mm);
b) grosimea (inaltimea) unui punct de prindere dat dintr-un strat (la repere de grosime 15mm) trebuie sa fie de aprox. 3 - 4 mm; grosimea la punctele de prindere date din 2 straturi trebuie sa fie de 6 - 8 mm; la suduri de colt, calibrul unui punct de prindere nu va fi mai mare decat calibrul sudurii finale;
c) distanta intre punctele de prindere se alege astfel incat sa se asigure rigidizarea, de regula fiind de aprox 300 - 400mm pentru oteluri navale si de 150 - 250 mm la oteluri inoxidabile
la sudurile de colt bilaterale prinderea se executa succesiv pe ambele parti

6.ordinea de executie a punctelor de prindere trebuie sa fie astfel incat sa se evite insumarea deformatiilor
NU
![]() |
la punctele de prindere cu electrozi inveliti nu se folosesc decat electrozi de diametru de diametru 2,5 sau 3,25mm astfel incat sa se asigure patrunderea
DA NU

Nu este permisa prinderea in puncte a reperelor (sectiilor) centrate fortat, datorita tensiunilor introduse care pot conduce la fisurarea punctelor de prindere. De asemenea nu este permisa recentrarea reperelor (sectiilor) dupa prinderea in puncte de sudura.
MC 3.4.Neconformitati
Distanta dintre doua decupari
d ≥ 75mm

1.1. Remedieri
Se aplica placuta pe decupare

2.Decupari < 300mm
D ≥ 300mm Daca D<300mm, se mareste decuparea si se monteaza insertie avand
D≥300mm

Verificarea inainte de sudura:
a. ROSTUL
sa fie curat si uscat;
dimensiunile sa se incadreze in tolerantele acceptabile
in cazul in care deschiderea rostului este prea mare acesta se poate remedia prin incarcare si polizare pentru refacerea lui conform WPS si IACS Rec nr.47


Dupa predarea cuplarii inainte de sudura la CTC intra sectia sudura la sudat iar la final dupa eliminarea pieptinilor si completarea pieselor de completare se executa predarea tehnica finala urmata de predarea la CTC respectiv la registru. Predarea tehnica si otelul pe cuplare se preda la 500 mm fata de fiecare parte a cordonului.
MC 4. MONTAT STRUCTURI SPECIFICE
MC 4.1. GENERALITATI
Am numit strucuturi specifice, acele subansamble structuri sudate, in cea mai mare parte, sau furnituri beneficiar, care vin in completarea structurii corpului de nava, si contribuie la realizarea performantelor de navigatie, a necesitatilor tehnologice sau constituie suporti ale unor mecanisme ale navei, si, care din punct de vedere tehnologic sunt montate in timpul activitatilor de montaj ale procesului de constructie a corpului de nava.
Dupa amplasare, aceste strucuturi pot fi:
Strcuturi amplasate pe corp exterior:
Chile de ruliu;
Headbox;
Etambreu;
Etambou;
Cavaleti;
Duze.
Structuri amplasate pe puntea principala sau pe alte punti deasupra puntii principale;
Colonete macara;
Cai rulare macarale de bord;
Cai rulare mecanisme pe puntea principala (Skidere);
Cai rulare moonpool;
Structuri ampasate pe punti sau alte structuri interioare corpului de nava:
Tub etambreu;
Postamenti masina carmei;
Postamenti propulsor pupa (azipull);
Postamenti electromotor pentru propulsor pupa;
Postamenti racitor electromotor;
Postamenti diesel generatoare;
Postamenti motoare principale;
Tancuri de ciment.
MC 4.2. Montarea chilelor de ruliu
Chilele de ruliu sunt apendici ai corpului navei, montati in zona gurnei, cu rol de a reduce amplitudinea oscilatiei de ruliu a navei in timpul navigatiei.
In mod obisnuit, chilele de ruliu sunt formate dintr-o platbanda, care dubleaza tabla invelisului, se aplica si se sudeaza pe invelisul gurnei, pe care se monteaza un profil cu bulb, perpendicular pe corpul navei. In corespondenta chilei de ruliu, sub invelis, se monteaza intarituri de descarcare ale chilei de ruliu, la capetele acesteia sau la imbinari.
Exemplu de reprezentare generala a unei chile de ruliu
Prelucrarea la capete si pe lungime a unei chile de ruliu,
amplasarea intariturilor de descarcare



Detaliu si cote de amplasare a chilei de ruliu, fata de PD.
a. Documentatie suport:
documentatie de executie si montaj a chilei de ruliu
b. Dotare specifica:
statie totala;
fir cu plumb;
flexibil;
trusa de taiere oxigaz;
sursa de sudura MASTER 2200, pentru prindere in hafturi de sudura;
gaturi automate;
palane cu crichet si lant;
polizor electric sau pneumatic;
bride, pene, ciocan, presa hidraulica.
c. Forta de munca necesara:
echipa de muncitori cu pregatire de lactus naval cu nivel cel putin "A", care sa aiba in componenta:
pentru trasat, un muncitor specializat in lucrul cu statia totala;
un coordonator (sef) de lucrare;
legator de sarcina autorizat;
sudor electric prins - autorizat;
sudor autogen;
d. Descrierea activitatii:
Conditiile preliminare care trebuiesc indeplinite pentru montarea cailor de rulare:
finalizarea tuturor lucrarilor de montaj sectii de volumen cadrul blocului
lucrarile de indreptat blocul1-finalizate
in tancurile situate in dublu fund sau in dublu bord, pe traseul de monatre si sudare a chilelor de ruliu sa nu fie in curs de executie lucrari de vopsitorie;
sa fie asigurata schela de lucru la inaltimea necesara montarii chilei de ruliu;
Pentru montarea chilei de ruliu, se procedeaza astfel:
se studiaza documentatia de executie si montaj a chilei de ruliu, si a sectiilor pe invelisul carora se asaza;
se traseaza linia teoretica de amplasare a chilei de ruliu, tinand seama de cotele de amplasare stabilite prin proiect. Pentru trasare se apeleaza la echipa de masuratori a CTC, care face masuratorile cu ajutorul unei statii totale. Muncitorul echipei de lacatusi marheaza pe invelis coasta pe care se face masuratoarea si punctul de amplasare al chilei.
cu ajutorul unui flexibil se traseaza linia teoretica de amplasare a chilei;
se traseaza marginea exterioara a latimii platbenzii;
se centreaza platbanda de sprijin, ce dubleaza tabla gurnei;
se prinde in puncte de sudura platbanda de sprijin;
se centreaza si se prinde in puncte de sudura profilul chilei de ruliu; prinderea se face cu rspectarea Instructiunii tehnice de prindere in puncte de sudura, hafturile de sudura vor avea lungimea de cca 50mm, pasul punctelor de sudura fiind de cca 200mm;
se face predarea la CTC inainte de a se da drumul la sudura;
dupa sudura se traseaza si se prind in puncte de sudura descarcarile interioare;
se indeparteaza toate bridele de sprijin, se incarca cu sudura ciupiturile, se polizeaza la fata;
se face predarea dupa sudura la CTC, beneficiar si registrul de clasificare.
MC 4.3. Montarea HEADBOX-ului




Amplasare structuri speciale la pupa navei
HEADBOX-ul este o structura metalica amplasata pe corpul navei in zona pupa, cu axul centrat pe coasta 0, amplasat atat in Bb cat si in Tb cu rol principal de inchidere a zonei de amplasare si sustinere a elementelor constitutive ale instalatiei de propulsie / guvernare ale navei.
HEADBOX-ul este format din osatura interioara si invelis exterior care, de la o nava la alta, are forme si inchideri diferite.
De exemplu la navele care au numai instalatie de guvernare, headbox-ul inchide zona de amplasare si montaj a tubului etambreu, invelisul fiind montat pe structura metalica ce are rol totodata si de sustinere a tubului etambreu, inchiderea inferioara a acestuia fiind talpa etambreului.
La navele care headbox-ul inchide zona de amplasare si montaj a propulsorelor azimutale, zona de inchidere este formata dintr-o piesa plata debitata din tabla pe baza solutiilor solicitate de proiectul de executie. Uneori, inchiderea poate fi formata din tabla combinata cu talpa furniturii beneficiarului.
Sectiune longitudinala prin corpul unei nave
dotate cu propulsor azimutal
Sectiune longitudinala prin corpul unei nave
dotate cu linie de arbori si instalatie de guvernare simpla
a. Documentatie suport:
documentatie de executie a seciei (sectiilor) de volum de pupa pe invelisul carora urmeaza a se monta headbox-ul;
tabel de sudura referitor la sectia sau sectiile respective;
Instructiune tehnica specifica executarii lucrarilor de montaj si sudura a headbox-ului si a celorlalte structuri specifice din zona;
b. Dotare specifica:
nivela electronica;
liniar;
fir cu plumb;
trusa de taiere oxigaz;
sursa de sudura MASTER 2200, pentru prindere in hafturi de sudura;
gaturi automate;
palane cu crichet si lant;
polizor electric sau pneumatic;
bride, pene, ciocan, presa hidraulica.
c. Forta de munca necesara:
echipa de muncitori cu pregatire de lactus naval cu nivel cel putin "A", care sa aiba in componenta:
un coordonator (sef) de lucrare;
legator de sarcina autorizat;
sudor electric prins - autorizat;
sudor autogen;
d. Descrierea activitatii:
Conditiile preliminare care trebuiesc indeplinite pentru montarea cailor de rulare:
finalizarea tuturor lucrarilor de montaj sectii de volume in cadrul blocului;
lucrarile de indreptat blocul1-finalizate;
postamentul propulsorului azimutal, sau tubul etambreu (dupa caz) sa fie centrate, montate sudate si verificate;
in tancurile situate in dublu fund sau in zona de monatre si sudare a headbox-ului sa nu se execute lucrari de vopsitorie pe toata durata lucrarii;
sa fie asigurata schela de lucru la inaltimea necesara executiei lucrarii;
Modul de lucru:
se studiaza documentatia de executie: plan sectie de volum, fise de modificare, proces tehnologic specific;
se stabileste modul de prelucrare a elementelor de osatura, modul de imbinare al tablelor invelisului, imbinarea cu elementele furniturii, nodurile tipice ce trebuiesc respectate, procedeul de sudura;
la exteriorul navei, se monteaza un suport de sustinere a tablei de inchidere a fundului headbox-ului, luind ca repere de asezare cotele stabilite din proiect;
se face o verificare a corectitudinii montajului pieselor componente ale sectiei (sectiilor) de volum in zona de montaj a reperelor headbox-ului;
se materializeaza liniile principale ale navei (PD si LB) precum si axa dupa care a fost centrat si montat postamentul propulsorului sau tubul etambreu;
se asaza placa de inchidere a partii inferioare a headbox-ului, dupa centrajul exisent;
corectitudinea asezarii se face prin verificari succesive utilizand cumpana electronica, pana la centrarea corecta a placii;
se verifica si se ajusteaza elementele de osatura structurala a headbox-ului (atat sectiunile longitudinale, cat si cele transversale), se prelucreaza elementele de osatura conform cu procedeul de sudare
se polizeaza zona prelucrata;
se prind elementele de osatura in puncte de sudura; prinderea in puncte de sudura se face uniform in hafturi de 50mm, cu distanta intre hafturi succesive de 300mm, din 2 treceri successive, calibru 3mm;
se face pedarea la CTC a montajului structurii interne, inainte de sudura;
se face sudura structurii interne si a placii de baza, respectand schema de sudura transmisa prin instructiunea de executie specifica;
dupa sudura, se indeparteaza eventuali pieptini, bride cu care a fost fixata structura interna a headbox-ului, se face predarea tehnica a structurii;
acolo unde este necesar se practica decupari de trecere de umplere si scurgere a lichidului de protectie;
pe timpul executarii sudurii se va urmari stabilitatea constructiei si mentinerea planeitatii placii de baza, respectarea inclinarii axei, utilizand comparatoare montate in acest scop;
se face predarea la CTC si clasa a strcuturii, concomitent cu efectuarea controlului nedistructiv al imbinarilor sudate;
in functie de modul de imbinare a tablelor de invelis se trece la pregatirea pentru montarea invelisului headbox-ului;
pentru aceasta se monteaza si se sudeaza placuta suport;
se executa machete pentru fiecare tabla de invelis;
se verifica dimensiunea si forma tablelor de invelis;
daca este necesar se inapoiaza la fasonat tablele pentru a fi refasonate dupa machetele confectionate, iar in cazul in care acestea nu corespund dimensional, se debiteaza si fasoneaza alte table;
se aduc tablele la nava, se debiteaza pe contur dupa machete, se prelucreaza marginile in conformitate cu nodul de imbinare, se polizeaza marginile prelucrate;
se prind tablele de invelis de osatura headbox-ului, respectand conditiile de prindere aratate mai sus;
daca este necesar, acolo unde se formeaza chesoane, inainte de montarea tablei de invelis, se face predarea tehnica si protejarea zonei inchise, cu predarea acesteia la CTC si beneficiar;
se va avea in vedere corelarea lucrarii cu montarea instalatiilor conexe de ungere ale tubului etambreu;
se vor monta dopuri de scurgere si golire a headbox-ului;
dupa sudura invelisului headbox-ului se monteaza, in interiorul corpului, descarcarile necesare, conform documentatiei;
dupa sudura se preda la CTC, clasa si beneficiar.
MC 4.4. Montarea tubului etambreu
a. Documentatie suport:
documentatie de executie a sectiei de volum;
tabel de sudura al sectiei de volum;
instructiune tehnologica specifica;
fisa de mauratori pentru montarea etambreului
b. Dotare specifica:
nivela optica;
fir cu plumb;
trusa de taiere oxigaz;
sursa de sudura MASTER 2200, pentru prindere in hafturi de sudura;
gaturi automate;
palane cu crichet si lant;
polizor electric sau pneumatic;
bride, pene, ciocan, presa hidraulica.
c. Forta de munca necesara:
echipa de muncitori cu pregatire de lactus naval cu nivel cel putin "A", care sa aiba in componenta:
un coordonator (sef) de lucrare;
legator de sarcina autorizat;
sudor electric prins - autorizat;
sudor autogen;
d. Descrierea activitatii:
Pentru montarea tubului etambreu trebuiesc indeplinite cateva conditii preliminare :
finalizarea lucrarilor de montaj si sudura a sectiilor de volum in cadrul blocului;
finalizarea lucrarilor de indreptat a blocului;
in tancurile sitúate in zona de monatre si sudare a tubului etambreu sa nu se execute lucrari de vopsitorie pe toata durata lucrarii;
sa fie asigurata schela de lucru la inaltimea necesara executiei lucrarii;
Amplasare tub etambreu - sectiune transversala
Modul de lucru:
se studiaza documentatia de executie: plan sectie de volum, instrucutiune de sudare specifica;
se stabileste modul de prelucrare a elementelor de osatura, modul de imbinare al acestora cu etambreul, de imbinare a talpii cu invelisul headbox-ului, prelucrarile ce trebuiesc realízate pentru respectarea procedeului de sudura;
se materializeaza liniile principale ale navei si axa liniei de guvernare; centrarea se face in colaborare cu mecanicii;
se aduce tubul etambreu la nava si se verifica corespondenta cu structura navei in zona de montaj a acestuia;
se fac masuratorile osaturii compuse din zona de montaj, se traseaza plusurile tehologice rezultate, mai intai in sectiune longitudinala si apoi in sectiune transversala;
se taie plusul tehnologic;
se face prelucrarea pentru realizarea nodului de sudura;
se ridica tubul etambreu la pozitie, se verifica corectitudinea centrajului si se ajusteaza eleméntele de osatura ce fac legatura dintre acesta si corpul navei;
se polizeaza muchiile prelucrate;
se prinde tubul etambreu in puncte de sudura rspectand "IT pentru prindere in puncte de sudura";
se face predare la CTC inainte de sudura;
se executa sudura dupa instructiunea specifica de executie a tubului etambreu, cu respectarea procedurii si a ordinii de sudare;
pe timpul sudurii se verifica in permanenta cu ceasuri comparatoare abaterile de la centraj a tubului etambreu, se corecteaza pozitia de sudare;
dupa sudare se scot eventualele bride si suporti ajutatori, se face predarea tehnica si se preda la CTC, clasa si beneficiar.
MC 4.5. Montarea invelisului tubului etambou
a. Documentatie suport:
documentatie de executie a sectiei de volum;
tabel de sudura al sectiei de volum;
instructiune tehnologica specifica, daca este cazul;
b. Dotare specifica:
trusa de taiere oxigaz;
sursa de sudura MASTER 2200, pentru prindere in hafturi de sudura;
gaturi automate;
palane cu crichet si lant;
polizor electric sau pneumatic;
bride, pene, ciocan, presa hidraulica.
c. Forta de munca necesara:
echipa de muncitori cu pregatire de lactus naval cu nivel cel putin "A", care sa aiba in componenta:
un coordonator (sef) de lucrare;
legator de sarcina autorizat;
sudor electric prins - autorizat;
sudor autogen;
d. Descrierea activitatii:
Pentru montarea invelisului tubului etambou trebuiesc indeplinite urmatoarele conditii:
finalizarea lucrarilor de centraj, montaj si sudura a cuplarilor inelare intre blocuri;
finalizarea lucrarilor de indreptat in zona;
finalizarea centarii si montarii tubului etambou;
sa un se execute lucrari de vopsitorie in tancurile adiacente invelisului tubului etambou;
schela de lucru sa fie executata la o inaltime corespunzatoare necesara executiei lucrarilor de montaj table invelis tub etambou;
Modul de lucru:
se studiaza documentatia de executie: plan sectie de volum, instrucutiune de sudare specifica;
se stabileste modul de prelucrare a elementelor de osatura si a tablelor de invelis;
se executa machete pentru tablele de invelis;
se face verificarea dimensionala si de forma a tablelor de invelis;
daca se constata ca este necesar, se refasoneaza tablele de invelis;
se traseaza tablele dupa machete;
se prelucreaza tablele (sanfreneaza) pentru obtinerea nodurilor de sudura;
se prind tablele in puncte de sudura;
tragerea tablelor pe pozitie sa face cu ajutorul jugurilor si penelor;
se preda lucrarea la CTC;
se trece la sudura invelisului de osatura si a tablelor de invelis intre ele;
se indeparteaza de pe invelis dispozitivele ajutatoare;
se face predarea tehnica dupa sudura;
se face predarea la CTC, clasa si beneficiar;
MC 4.6. Montarea invelisului cavaletilor
a. Documentatie suport:
documentatie de executie a sectiilor de volum de pupa;
tabel de sudura al sectilor de volum;
b. Dotare specifica:
trusa de taiere oxigaz;
sursa de sudura MASTER 2200, pentru prindere in hafturi de sudura;
gaturi automate;
palane cu crichet si lant;
polizor electric sau pneumatic;
bride, pene, ciocan, presa hidraulica.
c. Forta de munca necesara:
echipa de muncitori cu pregatire de lactus naval cu nivel cel putin "A", care sa aiba in componenta:
un coordonator (sef) de lucrare;
legator de sarcina autorizat;
sudor electric prins - autorizat;
sudor autogen;
d. Descrierea activitatii:
Pentru montarea invelisului cavaletilor trebuiesc indeplinite urmatoarele conditii:
sa fie montate, sudate si predate duza si etamboul;
sudura de prindere a duzelor si etamboului sa fie verificata nedistructiv;
in tancurile sau compartimentele situate in dublu fund sau in dublu bord, pe zona de montare si sudare a invelisului cavaletilor de invelisul corpului navei sa nu fie in curs de executie lucrari de vopsitorie;
sa fie asigurata schela de lucru la inaltimea necesara montarii invelisului cavaletilor;
Modul de lucru:
in mod obisnuit, cavaletii fac parte din structura corpului, a sectiilor din zona pupa;
invelisul cavaletilor, se executa partial in faza de confectionat, atunci cand se fac subansamblele ce constituie structura cavaletilor, ramanand neinvelite zonele pe care se imbina cavaletii de duza sau etambou, precum si de invelisul exterior al navei;
se face macheta pentru fiecare bucata de tabla de invelis;
se croiesc píesele de invelis, dupa macheta;
se debiteaza la dimensiune fiecare element de invelis;
se face prelucrarea pentru sudura, in conformitate cu tabelul de sudura al sectiei;
se polizeaza muchiile pieselor;
se aduc la pozitie se centreaza si se prind in puncte de sudura de eleméntele de structura adiacente;
se sudeaza;
se face predarea tehnica dupa sudura;
se preda la CTC, clasa si beneficiar;
![]()



MC 4.7. Montarea duzei
a. Documentatie suport:
documentatie de executie a sectiilor de volum de pupa;
tabel de sudura al sectilor de volum;
instructiuni tehnologice specific;
b. Dotare specifica:
trusa de taiere oxigaz;
sursa de sudura MASTER 2200, pentru prindere in hafturi de sudura;
gaturi automate;
palane cu crichet si lant;
polizor electric sau pneumatic;
bride, pene, ciocan, presa hidraulica.
c. Forta de munca necesara:
echipa de muncitori cu pregatire de lactus naval cu nivel cel putin "A", care sa aiba in componenta:
un coordonator (sef) de lucrare;
legator de sarcina autorizat;
sudor electric prins - autorizat;
sudor autogen;
d. Descrierea activitatii:
Pentru montarea invelisului cavaletilor trebuiesc indeplinite urmatoarele conditii:
sa fie centrate si montate tubul etambreu si tubul etambou;





![]()

Amplasarea duzelor la nava
Modul de lucru:
se centreaza duza de catre echipa de mecanici;
se traseaza pe duza liniile de intersectie ale cavaletilor orizontal si vertical cu duza;
se traseaza plusul tehnologic al inimii cavaletilor la intersectia cu duza;
se face prelucrarea capetelor inimilor cavaletilor pentru imbinarea cu duza;
se polizeaza capetele prelucrate;
se aliniaza inimile cavaletilor prin tragerea lor in dreptul marcajelor de intersectie;
se ajusteaza elementele de osatura altele decat inimile cavaletilor(ex. elemente de osatura component ale headbox-ului);
se prind elementele de osatura in puncte de sudura cu duza;
se intaresc cuplarile cu bride;
se preda la CTC
se efectueaza sudura cavaletilor in conformitate cu procedura de montaj si sudura a duzei;
se indeparteaza bridele de sustinere;
se face predarea tehnica a zonei;
se face predarea la CTC, beneficiar si clasa, se face controlul nedistructiv al sudurii.
MC 4.8. Montarea colonetelor de macara
Colonetele de macara sunt destinate a sustine macarale de bord, fixe, cu capacitate de ridicare diferite in functie de destinatia navei si rolul pe care acestea urmeaza sa-l indeplineasca la bord.
In mod obisnuit, colonetele se monteaza pe putea principala. In corespondenta colonetei, sub puntea principala, pana la nivelul dublului fund, strcutura se continua, in scopul asigurarii incastrarii acesteia in structura navei.
Coloneta macara 250to; documentatie, noduri
de sudura


a. Documentatie suport:
documentatie de executie a sectiilor de volum ce au legaturi cu coloneta macaralei;
tabel de sudura al sectilor de volum;
documentatie de executie a colonetei;
fisa de masuratori;
instructiune tehnologica specifica;
b. Dotare specifica:
nivela optica;
fir cu plumb;
trusa de taiere oxigaz;
sursa de sudura MASTER 2200, pentru prindere in hafturi de sudura;
gaturi automate;
palane cu crichet si lant;
polizor electric sau pneumatic;
punctator;
bride, pene, ciocan, presa hidraulica.
c. Forta de munca necesara:
echipa de muncitori cu pregatire de lactus naval cu nivel cel putin "A", care sa aiba in componenta:
o un coordonator (sef) de lucrare;
o legator de sarcina autorizat;
o sudor electric prins - autorizat;
o sudor autogen;
d. Descrierea activitatii:
Pentru montarea colonetei de macara trebuiesc indeplinite urmatoarele conditii:
sa fie finalizate lucrarile de montaj si sudura cuplari inelare intre blocuri;
sa fie indreptata puntea principala;
sa nu se execute lucrari de vopsitorie in compartimentele de sub punte, in zona adiacenta a montarii si sudarii colonetei;
Modul de lucru:
se studiaza documentatia de executie a sectiilor de corp pe care urmeaza a se monta coloneta;
se studiaza documentatia de executie a colonetei;
se studiaza instructiunile specifice de montare si sudare a colonetei;
se studiaza fisa de masuratori finala a montajului;
se stabilesc prelucrarile partii de imbinare a colonetei cu puntea principala;
se traseaza pozitia centrului colonetei;
se traseaza cirumferinta bazei colonetei;
se face curatirea suprafetei de asezare a colonetei;
se face verificarea urmei structurii inferioare, aflate sub puntea principala, in scopul stabilirii exacte a asezarii colonetei; verificarea se face cu ajutorul apratului de verificare a cordoanelor sudate, cu US;
se traseaza urma exacta a circumferintei bazei colonetei, se cherneruieste urma trasata;
se transporta coloneta din depozitul de repere prefabricate; transportul se face in pozitie orizontala, avand coloneta asezata pe cavaleti;
se ridica coloneta in pozitia de montaj;
se face verificarea dimensionala a colonetei, dupa dimensiunile din fisa de masuratori;
se stabilesc si se traseaza eventualele plusuri de montaj;
se indeparteaza cu flacara oxiacetilenica plusul rezultat;
se face prelucrarea muchiilor pentru realizarea nodului de sudura;
la nivelul puntii principale se monteaza bride pe circumferinta bazei, pentru usurarea procesului de centrare a colonetei pe pozitie;
se aduce coloneta, in pozitie de montaj, deasupra puntii principale si se asaza intre bridele montate anterior;
se face centrarea colonetei pe pozitia de montaj;
o pentru centrarea colonetei se foloseste firul cu plumb care verifica verticalitatea colonetei in cel putin 4 puncte diametral opuse, si nivela optica, pentru verificarea suprafetei de asezare a furniturii de macara;
se prinde coloneta de puntea principala folosind bride dispuse pe circumferinta, diametral opuse, la o distanta de cca 500mm una de alta;
sub baza colonetei se introduc distantiere care asigura luftul necesar modului de imbinare a colonetei cu puntea;
concomitent cu invelisului colonetei, se aliniaza si se centreaza si structura interioara a acesteia, elementele de osatura, precum si píesele de completare ale ansamblului;
dupa centrare si prindere in bride sau/si puncte de sudura, se face predarea la CTC;
se face sudura colonetei si a elementelor structurale si de completare, cu respectarea instructiunii tehnologice specifice, si a schemei de sudare indicata prin aceasta;
pe timpul efectuarii sudurii se urmareste comportarea dimensionala si abaterile de la tolerantele impuse prin fisa de masuratori;
dupa sudura se desprind bridele de legatura, se face predarea tehnica a zonei pe care s-a efectuat lucrarea;
se face predarea la CTC, clasa si beneficiar, se face controlul nedistructiv al sudurii pe toata circumferinta (control US, lichide penetrante), se verifica dimensional si se completeaza fisa de masuratori cu valorile realízate.
Exemplu de fisa de masuratoare pentru montaj coloneta macara
MC 4.9. Montara cailor de rulare
Caile de rulare executate pana in prezent in santier se impart in:
cai de rulare macarale de bord, amplasate la nivelul puntii "A", pe cargorail; acestea sunt realizate din imbinarea profilelor "T" prefabricate, indreptate, sablate si pasivizate in prealabil;
cai de rulare in moonpool, amplasate pe unul din peretii transversali ai moonpool-ului, de la nivelul dublului fund pana la nivelul puntii "A" sau pana la nivelul uneia din puntile superioare servesc la rularea mecanismelor de lansare-ridicare dispozitive specifice operatiunilor executate de nava pe care se amplaseaza si se realizeaza din profil laminat tip "H", numit "HEM";
cai de rulare amplasate pe puntea principala "skiding" servesc la rularea mijloacelor de transport pe puntea principala si sunt realízate din segmente de jumatate profil "HEM", prelucrate in conformitate cu documentatia de executie, indreptate, sablate si pasivizate;



Cai de rulare macarale de bord amplasate pe cargorail
Noduri de cuplare si executie a sudurii intre elementele cailor de rulare
si intre acestea cu puntea cargorail
Cai rulare in moonpool
Cai rulare puntea principala - skider
Modul de taiere a profilului "HEM" pentru
realizarea skiderului

Conditii de montaj ale cailor de rulare tip skider (conditii similare sunt impuse atat cailor de rulare a macaralelor de bord, cat si cailor de rulare din moonpool):
Abateri permise la paralelism si inaltime a cailor de rulare
Abateri permise la liniaritate a cailor de rulare
a. Documentatie suport:
documentatia de executie a sectiilor de volum ce au legatura cu caile de rulare;
tabel de sudura al sectilor de volum;
documentatia de executie a cailor de rulare;
fisa de masuratori;
instructiuni tehnologice specifice;
b. Dotari specifice:
nivela optica;
fir cu plumb;
trusa de taiere oxigaz;
sursa de sudura MASTER 2200, pentru prindere in hafturi de sudura;
gaturi automate;
palane cu crichet si lant;
polizor electric sau pneumatic;
bride, pene, ciocan, presa hidraulica.
c. Forta de munca necesara:
echipa de muncitori cu pregatire de lactus naval cu nivel cel putin "A", care sa aiba in componenta:
o un coordonator (sef) de lucrare;
o legator de sarcina autorizat;
o sudor electric prins - autorizat;
o sudor autogen;
d. Descrierea activitatii:
Pentru montarea cailor trebuiesc indeplinite urmatoarele conditii:
sa fie finalizate lucrarile de montaj si sudura cuplari inelare intre blocuri;
sa fie indreptata puntea principala, puntea cargorail-ului sau peretele transversal pe care se monteaza caile de rulare;
sa nu se execute lucrari de vopsitorie in compartimentele adiacente zonei de montare si sudare cailor de rulare;
sa fie montate schele adaptate la inaltimea si conditiile de lucru.
Modul de lucru:
se studiaza documentatia de executie;
se studiaza fisa de masuratori;
se studiaza instructiunea tehnologica specifica;
se stabilesc nodurile de sudura in conformitate cu instructiunea tehnologica specifica de montaj si de sudura;
se executa trasajul liniilor teoretice de amplasare ale strucuturii;
se verifica planeitatea suprafetei de asezare, executandu-se masuratori din 2 in 2 metri, similar fisei de masuratori, se completeaza fisa de masuratori pentru valorile masurate;
se polizeaza vopseaua (daca e cazul) pe suprafata de asezare, pe urma trasata, se cherneruieste linia teoretica;
se aduce la pozitie, reperul ce urmeaza a se monta, conform trasabilitatii din docuentatia de executie;
se prinde in bride, verificandu-se in permanenta perpendicularitatea inimii caii de rulare;
se verifica inaltimea caii de rulare;
se verifica descarcarea brachetilor pe elementele structurale ale corpului navei;
se traseaza plusul tehnologic rezultat;
se indeparteaza plusul tehnologic, se prelucreaza muchia de asezare in conformitate cu nodul de sudura din instructiunea tehnologica;
se polizeaza muchia prelucrata;
daca este cazul, se repozitioneaza brachetii care nu sunt in corespondenta;
se reia montajul cailor de rulare, prinderea inimii cu bride de suprafata de asezare, calibre care sa mentina distanta intre inimile cailor de rulare;
pentru pastrarea rostului de sudura, inimile cailor de rulare se asaza pe distantiere a caror grosime trebuie sa fie egala cu rostul nodului;
se verifica respectarea conditiilor impuse in ceea ce priveste planeitatea, inclinarea suprafetei superioare, a liniaritatii, se completeaza fisa de masuratori;
se face predarea inainte de sudura la CTC;
se trece la sudarea elementelor componente, in conformitate cu instructiunea tehnica specifica, cu respectarea schemelor de sudare impuse prin aceasta instructiune;
dupa sudura se face montarea descarcarilor, acolo unde este cazul;
se indeparteaza bridele;
se face predarea tehnica dupa sudura;
se refac masuratorile dupa sudura, se completeaza fisa de masuratori;
se face predarea dupa sudura la CTC, beneficiar si clasa;
Nota:
caile de rulare a macaralelor de bord se pot executa facandu-se, la sol, premontaje pentru fiecare tronson, ale prefabricatelor paralele componente ale tronsonului respectiv, dupa care se ridica la nava si se fac operatiunile normale, descrise mai sus;
pentru trasaj si masuratori de planeitate, se utilizeaza statia totala, echere de precizie, firul cu plumb;
Exemplu de fisa de masuratori pentru cai rulare macara de bord
MC 4.10. Montarea postamentilor diesel generatoarelor (DG)
Postamentii DG sunt formati in general din subansamble prefabricate - osatura compusa profil "T", prevazute cu bracheti si gusee de legatura, piese de completare, care montate pe structura existenta a corpului navei (suprafata de baza) formeaza o structura rigida, pe care urmeaza a fi amplasate si montate grupurile generatoare ale navei.
Amplasarea DG-urilor poate fi diferita de la nava la nava in functie de dstinatia lor. Ei pot fi amplasati:
- pe plafonul dublului fund, cazul cel mai frecvent;
- pe puntea intermediara sau principala;
- pe puntile superioare - ale suprstructurii ( "A" - "D"), in cazul DG-ului de avarie.
Nava tip PSV 09CD - amplasare postamenti pentru 3 diesel generatoare (DG) pe plafonul DF, in compartimentul msini - imagini 3D.
In imaginea din drepta se vede ca postamentii se extind pe 2 sectii de dublu fund, intre acestea realizandu-se cuplarea inelara intre blocuri

a. Documentatie suport:
documentatie de executie a sectiilor de volum ce au legaturi cu amplasarea postamentilor DG;
tabel de sudura al sectilor de volum;
documentatie de executie a postamentilor DG;
fisa de masuratori;
instructiune tehnologica specifica;
b. Dotare specifica:
statie totala;
nivela optica;
fir cu plumb;
trusa de taiere oxigaz;
sursa de sudura MASTER 2200, pentru prindere in hafturi de sudura;
gaturi automate;
palane cu crichet si lant;
polizor electric sau pneumatic;
bride, pene, ciocan, presa hidraulica.
c. Forta de munca necesara:
echipa de muncitori cu pregatire de lactus naval cu nivel cel putin "A", care sa aiba in componenta:
o un coordonator (sef) de lucrare;
o legator de sarcina autorizat;
o sudor electric prins - autorizat;
o sudor autogen;
d. Descrierea activitatii:
Pentru montarea postamentilor DG trebuiesc indeplinite urmatoarele conditii:
sa fie finalizate lucrarile de montaj si sudura cuplari inelare intre blocuri;
sa fie indreptata suprafata de asezare;
subansamblele ce constituie postamentii DG sa fie sudate si indreptate inainte de montarea la nava;
inainte de executarea cuplarii inelare intre blocuri, subansamblele prefabricate (longeroanele) sau preasamblate, care in general au lungimi mari, se introduc in compartimentul masini, fiecare subansamblu, in apropierea locului in care urmeaza a se monta, in asa fel incat sa nu stanjeneasca efectuarea lucrarilor de centraj si montaj a cuplarii inelare;
sa fie indepartate elementele de shela, subansamble si piese care nu au legatura cu postamentii din zona de lucru;
sa se faca protectie impotriva loviturilor mecanice, sau a arsurilor, pentru echipamentele deja montate
sa un se excute lucrari de vopsitorie in tancurile limítrofe ale asezarii postamentilor;
Modul de lucru:
verificarea si pregatirea suprafetei de baza:
o se executa trasarea si cherneruirea liniilor teoretice ale longeroanelor postamentilor, dupa fisa de masuratori intocmita in acest sop. Se marcheaza punctele de masurare, conform fisei de masuratori;
o se completeaza "Fisa de masuratori" a planeitatii suprafetei de baza;
o fisa de masuratori cu planeitatea completata se prezinta reprezentantilor CTC, Directiei tehnice, care pot lua o decizie in ceea ce priveste masurile ce trebuiesc luate in cazul in care planeitatea suprafetei de baza nu este cea necesara;
centrarea subansamblelor prefabricate:
o se lucreaza in acelasi timp la ambele longeroane al unui postament;
o se studiaza documentatia de executie, fisa de masuratori intomita pentru exeutia postamentilor;
o se face curatenie pe suprafata de asezare, se verifica daca pe zona de asezare si de lucru exista copruri straine lucrarii ce urmeaza a se executa;
o se aduc logeroanele in dreptul liniei teoretice, se centreaza dupa liniile teoretice trasate, respectand orientarea grosimilor pieselor conform documentatiei;
o longeroanele se asaza pe laine a caror grosime respecta rostul de sudura impus prin Instructiunea tehnica specifica;
o se prind longeroanele in bride provizorii,
o se verifica inaltimea longeroanelor, se traseaza plusul inimii longeronului, plusul brachetilor de legatura, se face verificarea dupa fisa de masuratori
ajustarea subansamblelor prefabricate:
o se desprind longeroanele din bridele provizorii;
o se aseaza longeroanele in pozitie convenabila de lucru;
o se indeparteaza plusul tehnologic, dupa trasajul facut in etapa anterioara;
o se prelucreaza marginea libera rezultata dupa indepartarea plusului, in conformitate cu procedeul de sudura ce urmeaza a se aplica;
o se polizeaza prelucrarea executata;
o concomitent cu verificarea inaltimii longeroanelor, se verifica corespondenta brachetilor cu elementele de osatura ale navei de sub suprafata de baza;
o in cazul in care aceasta corespondenta nu este realizata in totalitate, se face ajustarea pozitiei elementelor componente ale postamentului.
montarea subansamblelor prefabricate:
o se recentreaza subansmblele pe liniile teoretice trasate anterior;
o se asaza laine distantier pentru crearea rostului de sudura;
o se prind in longeroanele in bride;
o se fac masuratori, se completeaza fisa de masuratori pentru grupul subansamblelor prefabricate componente ale postamentului respectiv;
o se monteaza eventualele piese de completare;
o se preda tehnic la CTC, beneficiar si clasa inaite de sudura, cu fisa de masuratori completata;
o se preda la sudura.
sudarea postamentilor se face prin grija sectiei sudura cu respectarea procedurii de sudare si a schemei de sudare impusa prin instructiunea de executie specifica.
o rolul lacatusului in acest caz este acela de a urmari si verifica ritmic si periodic masuratorile pentru a se pastra dimensiunile si conditiile din fisa de masuratoare.
o dupa sudarea postamentilor, se adauga eventuale piese de completare care nu s-au montat in faza initiala si descarcari necesare a se monta in corespondenta elementelor postamentilor, sub suprafata de baza.
predarea si verificarea postamentilor se executa urmatoarele operatiuni:
o se indeparteaza bridele utilizate la montarea subansamblelor prefabricate;
o se face predarea tehnica a postamentilot si a suprafetei de sprijin, se incarca ciupiturile, se polizeaza la fata zonele incarcate;
o se refac masuratorile si se completeaza fisa de masuratori;
o se preda lucrarea la CTC, beneficiar si clasa.
Exemplu fisa de masuratoare postamenti DG
MC 4.11. Montarea postamentilor motoarelor principale (MP) si a reductoarelor
Postamentii MP si reductoare au rolul de a sustine motoarele principale precum si a reductoarelor, preum si acela de impingere pentru asigurarea propulsiei navelor. Ei sunt de obicei postamenti structurali, incastrati in structura corpului navei, centrarea si fixarea la nava, fiind facuta odata cu centrarea liniei de arbori.




Reprezentare tridimensionala a postamentilor motoare principale (MP) si reductoare
a. Documentatie suport:
documentatie de executie a sectiilor de volum a caror carlingi laterale constituie lonjeroanele postamentilor MP si ai reductoarelor;
tabel de sudura al sectilor de volum;
fisa de masuratori;
instructiuni tehnologice specifice;
b. Dotari specifice:
nivela optica;
fir cu plumb;
trusa de taiere oxigaz;
sursa de sudura MASTER 2200, pentru prindere in hafturi de sudura;
gaturi automate;
palane cu crichet si lant;
polizor electric sau pneumatic;
bride, pene, ciocan, presa hidraulica.
c. Forta de munca necesara:
echipa de muncitori cu pregatire de lactus naval cu nivel cel putin "A", care sa aiba in componenta:
o un coordonator (sef) de lucrare;
o legator de sarcina autorizat;
o sudor electric prins - autorizat;
o sudor autogen;
d. Descrierea activitatii:
Pentru montarea postamentilor MP si ai reductoarelor trebuiesc indeplinite urmatoarele conditii:
sa fie finalizate lucrarile de montaj si sudura cuplari inelare intre blocuri;
sa fie centrata si materializata axa liniei de arbori;
sa fie indepartate toate materialele si subansamblele ce nu au legatura cu postamentii din zona de lucru;
sa se faca protectie impotriva loviturilor mecanice, sau a arsurilor, pentru echipamentele deja montate;
sa un se excute lucrari de vopsitorie in tancurile limítrofe postamentilor, pe perioada executarii lucrarilor de montaj si sudura;
Modul de lucru:
se materializeaza axa liniei de arbori - se intind strune in continuarea liniei, inclusiv pentru montarea reductoarelor, fata de care se materializeaza si axele MP -centraje executate de mecanici;
fata de acestea, se masoara si se traseaza pe lonjeroanele postamentilor inaltimile necesare;
se indeparteaza plusul;
se prelucreaza marginile, in conformitate cu Instructiunea tehnologica specifica pentru realizarea nodului de sudura indicat;
se polizeaza marginile prelucrate;
se traseaza, se indeparteaza plusul, se prelucreaza si se polizeaza brachetii de legatura;
se preda la CTC inainte de sudura;
se sudeaza talpile postamentilor cu respectarea instructiunii tehnologice specifice, a procedeului si a ordinii de sudura;
pe timpul sudurii se verifica in permanenta alinierea, planeitatea asezarii placilor;
dupa sudura se indeparteaza eventualii pieptini, se face predarea tehica;
se fac masuratorile dupa sudura, se preda la CTC, clasa si beneficiar;
Exemplu de fisa de masuratori pentru postamenti MP
Exemplu de fisa de masuratori pentru postamenti reductoare
MC 4.12. Montarea postamentilor propulsorului azipull
Postamentii azipull sunt postamentii ce sustin propulsoarele pupa ale navelor dotate cu astfel de propulsoare. Legat de postamentii propulsoarelor, se monteaza si postamentii electromotoarelor si cei ai racitoarelor electromotoarelor.


Amplasare postamenti azipull in cadrul sectiei de volum
a. Documentatie suport:
documentatie de executie a sectiilor de volum de pupa;
tabel de sudura al sectilor de volum;
fisa de masuratori;
instructiuni tehnologice specifice;
b. Dotari specifice:
nivela optica;
fir cu plumb;
trusa de taiere oxigaz;
sursa de sudura MASTER 2200, pentru prindere in hafturi de sudura;
gaturi automate;
palane cu crichet si lant;
polizor electric sau pneumatic;
bride, pene, ciocan, presa hidraulica.
c. Forta de munca necesara:
echipa de muncitori cu pregatire de lactus naval cu nivel cel putin "A", care sa aiba in componenta:
o un coordonator (sef) de lucrare;
o legator de sarcina autorizat;
o sudor electric prins - autorizat;
o sudor autogen;
d. Descrierea activitatii:
Pentru montarea postamentilor DG trebuiesc indeplinite urmatoarele conditii:
sa fie finalizate lucrarile de montaj si sudura cuplari blocul 1;
sa fie finalizate lucrarile de indreptare a blocului 1;
se existe schela corespunzatoare nivelului de executie a lucrarilor;
sa nu se execute lucrari de vopsitorie in tancurile adiacente sau pe corp exterior in zona;
Modul de lucru:
se materializeaza axele principale ale navei - linia de baza si planul diametral, axa centrala a azipull-ului - se intind strune pentru aceasta;
se inseamna si se taie o decupare rotunda de cca 300mm in fundul navei;
se aduce postamentul azipull, si se centreaza;
se traseaza plusul tehnologic la baza postamentului;
se face prelucrarea bazei postamentului in conformitate cu Instructiunea tehnologica specifica, pentru formarea nodului de sudura;
se polizeaza marginea prelucrata;
se recentreaza postamentii; centrarea si recentrarea postamentilor se face cu nivela electrónica si rigla de verificare;
se introduc bracheti suplimentari de sprijin ai postamentului, pentru fixarea acestuia pe pozitie;
se traseaza atat pe fundul navei, cat si pe postament urma brachetilor structurali ai acestuia;
se ajusteaza brachetii, se prelucreaza marginile brachetilor, se polizeaza pentru crearea nodului de sudura;
se asaza brachetii pe pozitie, se prind in puncte de sudura, in conformitate cu prevederile IT prindere in puncte de sudura, cu hafturi de 60mm, la o distanta de 200mm unul de altul;
se completeaza fisa de masuratori inainte de sudura, se face predarea montajului la CTC;
sudura se executa pe faze in conformitate cu Instructiunea tehnologica specifica, cu numarul de sudori si ordinea stabilita prin aceasta;
pe timpul sudurii, se urmareste in permanente centrarea postamentului prin citirea abaterilor de la planeitate cu ajutorul a 4 easuri comparatoare móntate in 4 puncte diametral opuse pupa - prova si Bb - Tb, fixate pe structura fixa a navei cu palpatorul cu contact direct pe fata superioara a flansei;
dupa sudura, se monteaza intariturile ce constituie descarcari ale brachetilor postamentului pe structura adiacenta, care se sudeaza;
se scot brahetii suplimentari, se face predarea tehnica;
se traseza, se debiteaza si se polizeaza marginea decuparii in fundul navei, la dimensiunile din proiect;
se completeaza fisa de masuratori dupa sudura, se preda la CTC, beneficiar si clasa;
dupa centrarea postamentului azipull, se centreaza, se monteaza postamentul electromotor si al racitorului, care sunt strans legate de pozitia postamentului azipull, si care se predau impreuna;
pentru montarea si sudarea acestora se urmaresc aceleasi etape ca si la montajul postamentului azipull;
predarea inainte si dupa sudura se face cu completarea fisei de masuratori;
dupa sudura se face controlul nedistructiv al cordoanelor de sudura specificate in Instructiunea tehnologica specifica.
Exemplu "Urmarirea comportarii in timp a centrarii postamentului azipull in timpul sudarii" - anexa 1 la instructiuni tehnologice specifice pentru montarea si sudarea postamentilor azipull
Exemplu: Fisa de masuratori a postamentilor azipull
MC 4.13. Montarea tancurilor de ciment
Tancurile de ciment, sunt recipienti de otel, de forma cilíndrica, care se sprijina pe plafonul dublului fund sau pe structura ce constituie osatura fundului navei prin intermediul unor suporti (picioare) executate din teava.
Sprijinul si montajul acstora se realizeaza prin intermediul unor dublante si bracheti de legatura cu structura navei.
Tancuri de ciment pe dublu fund, in montaj
a. Documentatie suport:
documentatie de executie a sectiilor de volum de dublu fund pe care se monteaza tancurile de ciment;
tabel de sudura al sectilor de volum;
b. Dotari specifice:
cabluri; chei de tachelaj;
fir cu plumb;
trusa de taiere oxigaz;
sursa de sudura MASTER 2200, pentru prindere in hafturi de sudura;
gaturi automate;
polizor electric sau pneumatic;
bride, pene, ciocan, presa hidraulica.
c. Forta de munca necesara:
echipa de muncitori cu pregatire de lactus naval cu nivel cel putin "A", care sa aiba in componenta:
o un coordonator (sef) de lucrare;
o legator de sarcina - autorizat;
o sudor electric prins - autorizat;
o sudor autogen;
d. Descrierea activitatii:
Pentru montarea tancurilor de ciment trebuiesc sa fie indeplinite urmatoarele conditii:
sa fie finalizate lucrarile de centrat sectiile de dublu fund;
se existe cai de acces si balustrazi montate pe sectiile de dublu fund;
sa fie asigurate schele de lucru la inaltime, pentru prinderea la nivelul puntii intermediare;
Modul de lucru:
se studiaza documentatia de executie a sectiilor de volum de dublu fund pe care se monteaza tancurile de ciment;
se studiaza documentatia de montaj a tancurilor de ciment;
se identifica codul tancurilor de ciment si pozitia lor de montaj;
se identifica inaltimea de asezare a fundului tancului fata de osatura existente;
se traseaza pe stuctuta sectiei pozitia de montaj a picioarelor de sprijin;
se ridica la pozitie tancul de ciment;
se masoara inaltimea de montaj a fundului fata de structura;
se ajusteaza inaltimea picioarelor;
se introduc dublantele atat pe invelisul dublului fund cat si pe platbenzile strcuturii;
se prind dublantele in puncte de sudura, respectandu-se instructiunea tehnologica pentru prinderea in puncte de sudura;
se monteaza píesele de legatura (bracheti; intarituri; descarcari), se prind in puncte de sudura;
se sudeaza eleméntele de legatura cu structura navei;
se face predarea tehnica dupa sudura;
se face predarea la CTC, clasa si beneficiar;
![]()



Noduri de montaj a tancurilor de ciment pe structura corpului navei
MC 5. MONTAT FISE DE MODIFICARE
MC 5.1.Generalitati
Constructia unei nave se face pe baza unui project de executie (PE) , elaborat de catre proiectant , in conformitate cu tema de proiectare si cu datele de intrare stabilite.
Dupa verificarea proiectului , se elaboreaza documentele de lucru , desenele de executie , care se utilizeaza in productie.
Modificarea proiectului de executie se face exclusiv prin fise de modificare.
Fisele de modificare sunt documente de lucru care contin informatii privind modificarile necesare de executat pe nava.
MC 5.2 Elaborare fise de modificare
Elaborarea fiselor de modificare este facuta de proiectantul proiectului
O fisa de modificare trebuie sa cuprinda urmatoarele :
a-numarul fisei de modificare
b-definirea / delimitarea clara a zonei modificate
c-varianta veche si varianta noua a solutiei constructive modificate

d-referire explicita la desenul modificat
e-descrierea pe scurt a modificarii
f-referire explicita la documentele care au generat modificarea .
g-stadiul executiei lucrarilor afectate de modificare.
h-informatii referitoare la greutatile adaugate / sau scazute in urma modificarii.

MC 5.3. Docmentatia suport
a-docmentatia de executie a fisei de modificare
b-docmentatia de executie a sectiei unde se executa fisa de modificare (sau a sectiilor).
c-tabel cu suduri
MC 5.4. Dotari specifice
La executia fiselor de modificare sunt necesare aparate , dispozitive , scule de mina specifice lacatusului constructor naval si anume :
-aparate de sudura pentru prins
-aparate de taiere oxiacetilenice
-palane de diverse tonaje.
-sufe
-rulete
-ac de trasat
-polizoare
MC 5.5. Mod de lucru
Fisele de modificare sunt generate de :
a-revizii ale proiectului tehnic
Exemple.


OBSERVATII :
-fisa se va consulta impreuna cu desen de executie N 761 S 07 , TB/BB , dwg 761 - 209 - 070 . .077.
-prezenta fisa introduce puturi de santina conform e-mail din 14.11.2011 , cerere tubuladura.
-pozitiile notate cu M se modifica
-fisa introduce pozitii noi conform tabel componenta
-stadiul lucrarii N 761 - montaj.
Exemple.

OBSERVATII :
-fisa se va consulta cu planul S 04 N 761-209-040 . .04S , PE.
-fisa modifica unghiul de reducere al nervurilor de la 30° la 18° pentru a se evita contactul cu racitoarele.
-stadiul lucrarii - faza montaj.
b- rapoarte de inspectie CTC.
c- rapoarte de inspectie CCOS , e-mailuri.
d- rapoarte de inspectie clasa / client
Dupa primirea docmentatiei de executie a fisei de modificare , se solicita primirea pieselor sau subansamblelor , si se trece la executia fisei de modificare .
Dupa executie fisa de modificare aceasta se preda catre CTC , clasa , beneficiar , la fel ca orice alta lucrare care se executa la nava.
La executia fisei de modificare trebuie avut in vedere conditiile in care se va executa fisa si anume :
daca suprafetele unde se executa fisa de modificare sunt vopsite
daca zona unde se executa fisa de modificare este in spatiu inchis
daca zona unde se executa fisa de modificare este la corp exterior , la suprastructura.
In fiecare din aceste cazuri este necesar luarea unor masuri specifice pentru executia in bune conditii a fisei de modificare.
In cazul suprafetelor vopsite la executia fiselor de modificare este necesar luarea unor masuri speciale privind protectia , zonelor unde sunt stabilite modificarile , a zonelor adiacente zonelor de lucru care sa poata duce la executia fisei de modificare in conditii de deplina siguranta atit pentru executanti cit si a suprafetei vopsite.
Se va lucra pe baza unui permis de foc care va certifica luarea masurilor impotriva aparitiei de evenimente nedorite (foc) , prezenta reprezentantului Serviciului Privat pentru Situatii de Urgenta fiind obligatorie .(SPSU)
Protectia zonei de lucru cit si a zonei adiacente se va efectua prin acoperirea acestora cu material ignifugat.

Tablele afectate din zonele de lucru se vor curata in prealabil de vopsea , putindu-se astfel proteja atit salariatii ce lucreaza de fumul toxic rezultat si deasemenea se va obtine o sudura curata a elementelor din respectiva fisa e modificare.
Vor fi folosite dispozitive de evacuare a fumului rezultat in urma executarii fisei de modificare pentru a impiedica contaminarea zonei respective.

In cazul executiei fiselor de modificare in zone inchise este necesar luarea masurilor de evacuare a agentilor toxici (fum) din zona de lucru.
Se verifica in permanenta conditiile din zona inchisa , concentratia de gze , fum , etc.
Pe linga forta de munca folosita la executia fisei de modificare este necesara si prezenta de personal de supraveghere
In cazul executiei fiselor de modificare unde sunt afectate zone de corp exterior , suprastructuri este necesar luarea unor masuri de prevenire a aparitiei deformatiilor in zona executiei fisei de modificare cit si in zonele adiacete acestora.
(montarea , de piepteni suplimentari pentru rigidizarea zonelor respective )
Manevrele necesare de efectuat cu piesele sau cu subansamblele stabilite prin fisele de modificare , pentru introducerea pe blocuri sau nava se vor executa obligatoriu cu lacatusi care au autorizatie de legatori de sarcina
In momentul in care este necesara deplasarea pieselor in interiorul navei se vor folosi palane si sufe Alegerea acestora se face in asa fel incit sa se asigure o manevra in conditii de siguranta (palane de un tonaj superior greutatii de ridicat)
Functie de natura elementelor care genereaza aparitia fiselor de modificare acestea se codifica dupa cum urmeaza :
Codificarea Fiselor de modificare
|
Nr.crt. |
Tip modificare |
Cine solicita modificarea |
Cine transmite la D.Tehnica |
Cod FM |
|
1. Modificare cerinte pentru produs |
||||
|
Solicitari acceptate de modificare a cerintelor pentru produs din partea clientului/beneficiarului |
||||
|
Modificari provenite din comentarii la PT |
Client/Beneficiar |
Manager Proiect |
FM-BF-T |
|
|
Modificari provenite din revizii ale proiectului de clasa |
Client/Beneficiar |
Manager Proiect |
FM-BF-C |
|
|
Modificari provenite din observatiile "in rosu" ale societatii de clasificare |
Client/Beneficiar/ Societate Clasificare |
Manager Proiect |
FM-BF-D |
|
|
Modificari provenite din diverse alte cauze, dar nu din culpa Santierului, cum ar fi: decupari tehnologice pentru introducerea echipamentelor livrate cu intarziere de clinet/beneficiar solicitari ale inspectorului beneficiarului cu ocazia inspectiilor |
Client/Beneficiar |
Manager Proiect |
FM-BF-M |
|
|
Solicitari de modificare provenite din partea inspectorilor locali ai societatii de clasificare |
Societate de Clasificare |
Dept. CTC |
FM-CL |
|
|
2. Erori proiectare |
||||
|
Sesizari de modificare pentru tratarea sau prevenirea unor neconformitati datorate erorilor de proiectare armare |
Client/Clasa/CTC Executant/Subcontr. |
Dept. CTC Executant/ Subcontractor |
FM-PEA |
|
|
Sesizari de modificare pentru tratarea sau prevenirea unor neconformitati datorate erorilor de proiectare corp |
FM-PEC |
|||
|
Sesizari de modificare pentru tratarea sau prevenirea unor neconformitati datorate erorilor de proiectare ale subcontractantului |
FM-PES |
|||
|
3. Erori fabricatie |
||||
|
Solicitari de modificare pentru tratarea unor neconformitati datorate erorilor de fabricatie armare |
Client/Clasa/CTC Executant/Subcontr. |
Dept. CTC Executant/ Subcontractor |
FM-RA |
|
|
Solicitari de modificare pentru tratarea unor neconformitati datorate erorilor de fabricatie corp |
FM-RC |
|||
|
Solicitari de modificare pentru tratarea unor neconformitati datorate erorilor de fabricatie ale subcontractorilor |
FM-RS |
|||
|
4. Derogari/reclasari materiale |
||||
|
Derogari/reclasari de material obtinute ca metoda de tratare a unor produse depistate neconforme la primire |
Directia Comerciala |
Merceolog |
FM-AM |
|
|
Derogari de materiale inainte de fabricatie |
Executant/Subcontr. |
Executant/ Subcontractor |
||
|
Derogari dupa fabricatie/reclasari obtinute ca metoda de tratare a produselor neconforme depistate cu ocazia inspectiilor pe flux |
Executant/Subcontr. |
Executant/ Subcontractor |
FM-AM |
|
|
5. Aleatorii |
||||
|
Solicitari de modificare aparute aleatoriu sau generate de modificarea organizarii tehnologice a Santierului pentru un anumit produs, neprevazute in momentul elaborarii proiectului de executie sau a strategiei de constructie (de exemplu decupari tehnologice pentru acces, introducere echipamente de lucru, evacuarea noxelor, etc.) |
Sectii de Productie |
Coordonator Nava |
FM-AT |
|
MC 6 . LUCRARI DE INDREPTAT
Procesul de indreptare este un procedeu tehnologic de corectie a unei constructii metalice care se foloseste numai atunci cand masurile de prevenire aplicate la executia constructiei metalice nu au dus la incadrarea in tolerantele admise a respectivei constructii.
Deformatiile pot aparea la o constructie metalica in urma procesului de sudura iar eliminarea acestora se realizeaza prin metode termice.
Sursele de energie termica sunt:
-flacara oxiacetilenica
-curentii de inductie
Flacara oxiacetilenica
In functie de natura materialului de indreptat poate fi reglata in asa fel incit sa fie neutra, oxidanta sau carburanta.
Materialele feritice se indreapta utilizand o flacara neutra, materialele austenitice se indreapta folosind o flacara oxidanta;materialele din aluminiu se indreapta cu flacara carburanta.
Indreptarea la cald cu flacara oxiacetilenica se foloseste in general la indreptarea tablelor si a pieselor sudate cu un continut de carbon mai mic de 0,25%.
(OL 37, OL 44, Ol 52, A, D, E , A32. D32, A36, D36, E 36 sau echivalente).
Pentru alte tipuri de oteluri, indreptarea se face in conformitate cu procese tehnologice intocmite special pentru fiecare tip de otel in parte.

Structura si forma flacarii depinde de raportul volumetric al componentelor amestecului gazos :
K= D oxigen / D acetilena
In conditiile unei arderi complete K trebuie sa fie egal cu 1
In conditiile in care
Presiunea acetilenei = 1,1 - 1,2 daN/cm²
Presiunea oxigen = 5 daN/cm²
ar rezulta un K = 1,1 - 1,2
Pentru flacara oxidanta K = 1,2 - 1,5 , in zonele 1 si 2 predomina oxigenul , flacara este redusa ca dimensiuni , arde zgomotos si are o culoare violet pe fond albastru.
Pentru flacara neutra K = 1,1 - 1,2 , zonele 1 si 2 sunt perfect delimitate , structura si nuantele flacarii sunt constante.
Pentru flacara carburanta K = 0,7 - 1 , zonele se intrepatrund flacara este rosietica , lunga , deformata.

Variatia temperaturii in lungul flacarii

Metodele de eliminare a deformatiilor aparute in urma procesului de sudare sunt:
-detensionarea
-indreptarea
Detensionarea consta in incalzirea tablelor la o temperatura de 200-250 ˚C, urmata de o racire lenta.
Indreptarea consta in incalzirea elementelor la o temperatura de 600-650 ˚C, urmata de o racire lenta in aer.
Functie de marimea deformatiei se pot folosi rigidizari tehnologice si rigidizari suplimentare permanente , prese mecanice sau se poate opta la desprinderi ale cordoanelor de sudura sau chiar desprinderi in campul tablelor.





Operatia de eliminare a deformatiilor din structurile sudate se efectueaza in cadrul urmatoarelor procese de fabricatie:
-debitare
-asamblare sectii de volum in blocuri
-montaj blocuri
-montaj suprastructuri (si premontaje)
-montaj corp nava
MOD DE LUCRU
-se face o analiza a zonei cu problema ,stabilindu-se marimea suprafetei si sagetile deformatiilor care nu se incadreaza.Se masoara marimea deformatiilor cu liniarul, lera si ruleta, se vor marca cu creta pe suprafata de indreptat.
-pozitiile si limitele zonelor pe care este necesara interventia (zona de incalzit)
-forma zonelor de incalzit
-dimensiunile zonelor de incalzit care sunt stabilite functie de dimensiunile deformatiilor, grosimea tablei, rigiditatea constructiilor metalice
-ordinea de executie a zonelor de incalzit
-temperatura de incalzire



Reguli obligatorii de respectat la indreptat
-ca o regula generala indreptarea corpului navei in faza de montaj se va face numai dupa finalizarea sudurilor de montaj a sectiilor (sudura de montaj a sectiei si a sudurilor dintre aceasta si a sectiilor adiacente), dupa montarea tuturor saturarilor.
-startarea lucrarilor de indreptat a oricarei portiuni de nava va incepe cu osatura dupa care se trece la indreptarea tablelor
-indreptarea se va incepe din centrul navei spre exterior si de la chila spre suprastructura
-se indreapta mai intai puntile si platformele, dupa care urmeaza suprafetele verticale, respectiv peretii longitudinali si tranversali, bordurile, parapetii.

-in cazul suprafetelor orizontale, se indreapta mai intai cele cu curbura in sus, apoi celelalte
-in cazul suprafetelor verticale, se indreapta mai intai deformatiile cu curburile directionate intr-un sens al suprafetei, apoi cele in celalalt sens
-pentru eliminarea deformatiilor care depasesc 10 mm se folosesc rigidizari tehnologice si desprinderea cordoanelor de sudura sau taiere in campul de tabla
-ordinea de efectuare a desprinderilor cordoanelor de sudura si a taierii in campul tablelor se face respectand regula:intai puntile si platformele dupa care urmeaza suprafetele verticale, respectiv peretii longitudinali si transversali, bordurile, parapetii
Interventia intr-o zona se face numai dupa resudarea cordoanelor sau a taieturilor si indreptarea zonei incepute.
-rigidizarile suplimentare permanente trebuiesc montata in faza de panou si au ca scop micsorarea suprafetelor libere a tablelor
-cand tabla este incalzita, marimea deformatiei creste, de aceea este necesar sa se raceasca inainte de a o putea incalzi din nou
O tabla indreptata opune o rezistenta mai mare decat o tabla deformata.
-indreptarea trebuie sa se faca astfel incat intre doua portiuni incalzite sa fie o portiune rece
-se interdice lovirea cu ciocanul a suprafetelor elementelor( table, profile) supuse indreptarii.
Tehnica indreptarii folosind flacara oxi-gaz
|
|
|
|
|
Se efectueaza calduri (600-6500C) conform figurilor alaturate. Sagetile indica sensurile in care actioneaza fortele de indreptare. |
|
PANOURI PLANE CU DEFORMATIE SIMETRICA |
|
|
|
Se efectueaza calduri cu aparatul oxigaz cu 2 arzatoare pe partea opusa profilului, arzatorul din mijloc fiind pe inima profilului. Dupa racirea tablei se fac masuratori si daca indreptarea nu se incadreaza in limitele admise de Registru Naval se fac calduri intre semnele vechi cu al treilea arzator spre partea convexa (bombata) a deformatiei. Se repeta masuratorile si, daca e necesar, se fac calduri si pe partea osaturii, dar numai in zonele cu deformatie convexa. Nu se fac calduri pe partea concava a deformatiei. |
|
PANOURI PLANE CU DEFORMATIE SIMETRICA |
|
|
|
Se efectueaza calduri cu aparatul oxigaz cu 2 arzatoare pe partea opusa profilului. Dupa racirea tablei se fac masuratori. Daca deformatiile nu se incadreaza in limitele admise de Registru Naval se fac calduri in campul tablei in zonele cu deformatie convexa. Nu se fac calduri pe partea concava a deformatiei. |
|
PANOURI PLANE CU DEFORMATIE ASIMETRICA |
|
|
|
Se efectueaza calduri cu aparatul oxigaz cu 2 arzatoare pe partea opusa profilului. Arzatorul dintr-o margine se tine pe inima profilului iar celelalte doua se orienteaza spre zona deformatiei convexe (bombata). Dupa racire se fac masuratori. Daca e necesar se fac calduri si in campul tablei in zonel cu deformatie convexa. Nu se fac calduri pe partea concava a deformatiei. |
|
PANOURI PLANE CU DEFORMATIE ASIMETRICA |
|
|
|
Se efectueaza calduri cu aparatul oxigaz cu 2 arzatoare pe partea opusa profilului. Arzatorul dintr-o margine se tine pe inima profilului iar celelalte doua se orienteaza spre zona deformatiei convexe (bombata). Nu se fac calduri pe partea concava a deformatiei. |
|
PANOURI PLANE CU DEFORMATIE ASIMETRICA |
|
|
|
Se efectueaza calduri cu aparatul oxigaz cu 3 arzatoare pe partea opusa profilului. Arzatorul dintr-o margine se tine pe inima profilului iar celelalte doua se orienteaza spre zona deformatiei convexe (bombata). Dupa racire se fac masuratori. Daca e necesar se fac calduri si pe parte pe care sunt montate profilele, in zonele cu deformatie convexa. Nu se fac calduri pe partea concava a deformatiei. |
|
PANOURI PLANE CU DEFORMATIE ASIMETRICA |
|
|
|
La tablele subtiri cu deformatii mari se pot monta intarituri permanente. Intariturile se monteaza cu acordul Registrului Naval si al beneficiarului. |
Indreptarea Suprastructurii
La montajul suprastructurii se va avea in vedere ca montajul unui etaj superior sa nu se faca , fara ca etajul inferior (pe care se cladeste cel superior) sa fie complet sudat si detensionat.
Indreptarea prin calduri a suprastructurilor se face numai dupa ce sudurile de montaj si cele ale saturarilor au fost executate complet.
Indreptarea incepe de la etajul inferior.Se indreapta puntea etajului inferior.Se indreapta apoi peretii interiori cu grosimi mai mari, apoi peretii cu grosimi mai mici.Urmeaza sa se indrepte apoi peretii exteriori.Indreptarea se va afectuta concomitent si simetric pe ambele borduri.
Dupa finalizarea indreptarii primului etaj se trece la indreptarea etajului superior urmandu-se a se folosi acelasi mod de lucru.
Temperatura de incalzire
Alegerea temperaturii este foarte importanta.O temperatura de incalzire prea inalta poate aduce mai multe probleme si anume :
-este difícil de controlat tipul incalzirii si restrictionarea ariei incalzite
-creste timpul de incalzire si consumul de gaze
-nesiguranta cu privire la obtinerea efectelor favorabile creste
-este difícil de a masura exact temperatura; o eroare de 100-200˚C poate aduce suprafata la peste 1000 ˚C, temperatura ce este daunatoare pentru majoritatea otelurilor
Este important de a se pastra in permanenta controlul asupra temperaturii.
Otelurile navale in majoritatea lor pot fi incalzite pana la o temperatura de 800 ˚C.
Aprecierea temperaturii metalului incalzit se poate face cu echipamente pentru masurarea temperaturii, echipamente ce trebuie sa ne ofere posibilitatea masurarii benzii incalzite foarte repede.

In practica, temperatura metalului incalzit se apreciaza functie de culoarea acestuia. O temperatura de incalzire de 700 ˚C ( rosu intunecat ), va duce la o incalzire a suprafetei de indreptat de 600-650˚C.
La temperaturi mai mari culorile ar fi : 1000˚C-rosu cireasa, 1100˚C - orange inchis
Principiile procedeului de indreptare cu flacara
La indreptarea cu flacara se efectueaza o incalzire locala a piesei la temperatura de indreptare
.Datorita acestei incalziri se produce o comprimare locala si deformare plastica a materialului datorita blocarii dilatarii termice.
Pe timpul racirii rezulta o scurtare ( reducerea lungimii ) piesei egale cu scurtarea produsa, care duce la modificarea dimensionala si de forma dorita.

Pe parcursul operatiei de indreptare prin calduri executantul trebuie sa urmareasca:
-reactiile materialului la lucrarile de indreptare
-sa pastreze permanent controlul temperaturii si a regimului de caldura
-sa urmareasca respectarea prescriptiilor privind modul de amplasare, repartitia , forma si dimensiunile caldurilor pentru diferite tipuri de deformatii si grosimi de table
-sa verifice permanent reactiile constructiilor sudate adiacente locului in care se executa operatia de indreptare pentru a se putea preveni aparitia deformatiilor in alt loc
-in momentul racirii materialului (temperatura < 50-60 ˚C), sa masoare marimea deformatiei si sa compare rezultatele cu valorile tolerantelor admise.Daca deformatia nu a ajuns la limitele admise se pot executa calduri suplimentare in zone adiacente celor deja incalzite.
Echipamente folosite
-Indreptare cu flacara-arzatoarele cu flacara oxiacetilenica
-arzator oxiacetilenic cu flacara simpla-pentru indreptarea elementelor de rigidizare
-arzator oxiacetilenic multiflacara cu doua sau trei duze-pentru indreptarea suprafetelor de tabla
Diametrul becului arzatorului este ales functie de grosimea tablei dupa cum urmeaza:
|
GROSIMEA TABLEI ( mm ) |
|||||
|
NUMAR BEC | |||||
La indreptarea cu flacara este esential ca arzatorul sa asigure o incalzire precisa local limitata si rapida a materialelor pana la temperatura de indreptare.
Flacara oxiacetilenica ofera caldura prin flacara primara.Prin marirea raportului de amestec gaz combustibil-oxigen., puterea flacarii de acetilena poate fi majorata foarte mult.
Reglarea optima a flacarii este de mare importanta la indreptarea cu flacara.In general, ar trebui sa se indeplineasca urmatoarele conditii:
-flacara oxiacetilenica sa fie neutra
-presiunea oxigenului trebuie sa fie de 4-5 bari
-presiunea acetilenei trebuie sa fie pana la 1 bar
-varful conului interior de flacara trebuie sa fie la o distanta de 3-4 mm fata de elementul de indreptat
-benzile incalzite vor fi de aproximativ 100 mm lungime pentru table de grosime 8-12 mm
-distanta dintre benzile incalzite va fi de aproximativ 100 mm
In functie de piesa si de gradul de deformare sunt utilizate diferite moduri de incalzire.
Insemnarea punctelor pe suprafata tablei de indreptat un este recomandata , o repartitie geometrica pera regulata a punctelor , poate duce la zone de contractie liniare , care in final un produc efectul de indreptare dorit.
I
Indreptarea cu curenti de inductie
In acest caz se folosesc echipamente speciale pentru indreptat care folosesc ca sursa de incalzire curenti de inductie.
Echipamentul de incalzire cu inductie folosit este de tip TERAC..
Echipamentul are ca principal dezavantaj ca un poate fi folosit decit pentru indreptarea suprafetelor orizontale punti , platforme.
La folosirea echipamentului operatorul respecta doar tehnica de utiliare care este cea din docmentatia tehnica


MC 7. PREGATIREA BLOCULUI PENTRU INTRARE IN SABLARE VOPSIRE
MC 7.1.Generalitati
Pregatirea blocurilor pentru efectuarea operatiunilor de sablare vopsire , are ca scop atit verificarea stadiului fizic al lucrarilor ce trebuiau executate cit si a indeplinirii si a celorlalte conditii ce tin de transport , tehnologia de executie a lucrarilor de sablare vopsitorie.
Inspectia blocului din punct de vedere al lucrarilor are ca scop verificarea daca s-au executat si predat lucrarile :
- inspectia tehnica finala tancuri
predare etansa a tancurilor
predare control dimensional bloc.
predare observatii CTC , clasa , client.
predare saturari
predare tehnica a sistemelor de tubuladura.
predare etansa a sistemelor de tubuladura
predare lucrarilor de indreptat pentru corp exterior , punti , tancuri , compartimente.
predare suprafete in vederea vopsiri
MC 7.2. Docmentatia suport
Docmentatia necesara ar fi :
-docmentatia cu planurile de montaj tren carucioare blocuri
-docmentatia cu planurile cu decuparile tehnologice .
-docmentele de inspectie si predare lucrari
MC 7.3 Dotarile specifice
-sistemul de tragere si transfer
-transbordor
-tren carucioare
-pontili sustinere
MC 7.4. Verificarea indeplinirii conditiilor privind transportul in deplina siguranta a blocului consta in :
-verificarea trenului de carucioare si a sinelor.
Se verifica rotile de la carucioare , se greseaza , apoi se verifica conectorii dintre carucioare daca sunt bine pozitionati daca sunt in stare buna , fara fisuri , etc.


-verificarea pontililor de sustinere bloc
Se verifica starea pontililor daca sunt bine fixati pe carucioare si pe corpul blocului


- verificarea structurii de schele montate in jurul blocului si care trebuie sa asigure accesul pe toata suprafata exterioara a blocului , in tancuri si compartimente pentru viitoarele lucrari de sablare si vopsitorie.
MC 7.5.Verificarea indeplinirii conditiilor pentru efectuarea lucrarilor de sablare vopsitorie consta in :
verificarea posibilitatilor de acces pe toate suprafetele de sablat si vopsit

-verificarea efectuarii tuturor decuparilor tehnologice necesare .

Pe baza solicitarilor in scris sau e-mail din partea coordonatorului de nava pentru lucrarile de sablare , coordonatorul de nava din partea Directiei Productie solicita Directiei Tehnice executia de docmentatie de decupari tehnologice. In solicitare se indica amplasarea decuparii .
Directia Tehnica va emite docmentatia analizind implicatiile tehnice pe parcursul dezvoltarii proiectului . Acolo unde apar conflicte de structura Directia Tehnica va analiza acele probleme si va propune solutii de remplasare a decuparilor.
Dupa emiterea docmentatiei tehnice pentru efectuarea decuparilor , Sectia Montaj va executa aceste decupari , avind ca targhet recuperarea tablelor din aceste decupari , pregatirea acestora si a decuparii din corp ( efectuarea sanfrenului -polizare).
Tablele se vor pozitiona in imediata apropiere a decuparilor fara a perturba activitatile viitoare de sablare vopsitorie si a transferului blocului in hala de sablare vopsire.
MC 8. Montaj sectii si premontaje suprastructura
Tehnologiile de executie a lucrarilor de montare-sudare a sectiilor pe cala sunt determinate de particularitatile constructive si dimensiunile sectiilor, succesiunea (strategia) montarii sectiilor, gradul de mecanizare.
Suprastructura este un ansamblu alcatuit din mai multe sectii de volum ce se amplaseaza la partea superioara a corpului navei, dupa ce acesta a fost montat in intregime.

Exemplu - impartire in sectii de volum a unei suprastructuri la o nava tip PSV
MC- 8.1 Premontaj sectii suprastructura
Premontajul suprastructurii consta in realizarea de module de suprastructura formate dintr-un grup de sectii, a caror marime si greutate sunt delimitate de capacitatile tehnologice ale spatiului de montaj si a capacitatii de ridicare a macaralelor.
Realizarea premontajelor se face in conformitate cu strategia de fabricatie a navei si de realizare a premontajelor. Prova, respectiv pupa navei va fi orientata in conformitate cu strategia de montaj a corpului de nava, startegie respectata si la excutarea lucrarilor de montaj ale sectiilor de volum in blocuri.
Importanta realizarii modulelor de suprastructura:
Scurtarea ciclului de fabricatie al navei, premontajele realizandu-se concomitant cu realizarea altor lucrari de montaj;
Utilizarea spatiilor de productie din prelungirea filei 4;
Eventuala remediere din aceasta faza a nealinierilor elementelor de structura;
Realizarea de module de suprastructura cu greutate si de dimensiuni apropiate de capacitatile tehnice ale mijloacelor de ridicat de care dispune santierul;
Saturarea partiala a suprastructurii;
Montarea partiala a scarilor interioare in suprastructura;
Indreptarea partiala a suprastructurii;
Sablarea si vopsirea partiala a suprastructurii, din aceasta faza;
![]()
![]()
![]()
![]()

Premontajul 1: 31+32+30PS+30SB = 27.5 tone (fara saturari si sudura )
![]()
![]()
![]()
![]()

Premontajul 2: 33+35+34PS +34SB = 73.6 tone (fara saturari si sudura )
![]()
![]()

Premontajul 3: 36 +37 = 64 tone (fara saturari si sudura )
In conformitate cu strategia de executie a premontajelor suprastructurii, sectia de volum de prova (S29), se va monta independent la nava.

Exemplu: strategie de executie premontaje suprastructura
e. Documentatie suport:
documentatie de executie a sectiilor de volum ce intra in componenta premontajelor;
tabele de sudura ale sectiilor de suprastructura;
strategia de fabricatie pentru modulele de suprastructura;
f. Dotare specifica:
macara de cala
cabluri de diferite sarcini si marimi;
chei de tachelaj;
statie totala;
nivela optica;
fir cu plumb;
flexibil;
trusa de taiere oxigaz;
sursa de sudura MASTER 2200, pentru prindere in hafturi de sudura;
palane cu crichet si lant;
polizor electric sau pneumatic;
bride, pene, ciocan, presa hidraulica.
g. Forta de munca necesara:
echipe de muncitori cu pregatire de lactus naval cu nivel cel putin "A", care sa aiba in componenta:
o pentru centrat si trasat;
un muncitor specializat in lucrul cu statia totala;
un coordonator (sef) de lucrare;
legator de sarcina autorizat;
sudor electric prins - autorizat;
sudor autogen;
o pentru executia lucrarilor de montaj:
un coordinator (sef) de lucrare;
legato de sarcina autorizat;
sudor electric prins - autorizat;
sudor autogen;
h. Descrierea activitatii:
Conditiile preliminare care trebuiesc indeplinite pentru excutia premontajelor:
sectiile de volum care intra in componenta premontajelor sa fie finalizate din faza de asamblat sectii de volum, sudate, predate la CTC, beneficiar si clasa;
sectiile sa aiba montati pieptini la baza peretilor si a invelisului bordajelor;
sa existe conditii, spatii laterale pentru montarea scarilor de acces si a schelelor corespunzatoare pentru lucrul la inaltimea de executie a cuplarilor intre sectiile de volum;
daca suprastructura a fost impartita in 2 sau mai multe premontaje, spatiul pe care urmeaza a se executa aceste premiontaje trebuie sa fie astfel dimensionat incat sa se asigure executia premontajelor unul in continuarea celuilalt, ceea ce asigura pastrarea formei suprastructurii si tratarea ei ca un tot unitar;
din aceeasi perspectiva, este recomandat ca lucrarile de centraj pentru sectiile unei suprastructuri sa fie incredintate unei singure formatii de maistru.
Pentru realizarea premontajelor de suprastructura, se procedeaza astfel:
se studiaza documentatia;
pentru executia premontajelor suprastructurii, se va realiza un pat de grinzi care va simula puntea pe care acesta urmeaza a se monta la nava;
executia premontajelor se face urmarind etapele descries mai jos.
Etape pentru realizarea premontajelor sectiilor de suprastructura:
A. Centrarea sectiilor de volum
a. Pe patul de grinzi sunt amplasate platbenzi cu o latime de aproximativ 400 - 500 mm in corespondenta peretilor transversali, longitudinali si ai invelisului.
Spatiul in care este amplasat si confectionat patul de grinzi se stabileste in functie de greutatea premontajelor (capacitatea maxima de ridicare a macaralelor), cotele de gabarit ale acestora, spatiul necesar pentru schela, scari de acces si functie de orientarea planului de referinta al sectiei -pupa, prova, Bb, Tb.
b. Se marcheaza pe platbenzi planul diametral, linia teoretica a coastelor extreme pupa-prova si linia teoretica a peretilor pe puntea inferioara.
c. Se ridica pe pat prima sectie de suprastructura, se centreaza tinand seama de marcajele de pe pat si liniile de control de pe sectie corelate cu desenele de executie - planul sectiei.
d. Se centreaza in pozitie orizontala puntea sectiei ridicate;
e. Se monteaza pontili si rigidizari intre punte si pat;
f. Se executa prinderea sectiei de pat;
g. Nu se vor demonta rigidizarile de la marginea inferioara a peretilor pana dupa montarea si sudarea la nava a modulului de suprastructura;
h. Se traseaza pe punte amplasarea peretilor transversali, longitudinali si ai invelisului sectiei superioare;
i. Se ridica a-2-a sectie de suprastructura;
j. Se centreaza tinand cont de marcajele de pe punte si liniile de control trasate pe sectia inferioara corelate cu desenele de executie, se centreaza puntea la apa; daca sectia urmatoare este reprezentata tot de o sectie de baza, centrarea ei se face cu respectarea planeitatii si orizontalitatii puntii;
k. Se corecteaza si se indreapta marginile;
l. Se traseaza plusurile de montaj. Pentru trasarea plusurilor de montaj se urmareste respectarea dimesiunilor principale: semilatimi la baza si la punti, inaltimi intre punti, planeitatea si orizontalitatea puntilor. De asemeni se va urmari corespondenta peretilor si osaturii puntilor, peretilor si bordajelor;
m. Se indeparteaza plusurile de montaj, se prelucreaza marginile cuplarii pentru sudura, se executa degrosarea acolo unde este cazul.
B. Montarea sectiilor de volum in premontaje
a. Ordinea executarii cuplarilor este: cuplari longitudinale orizontale, intre sectiile de baza, cuplari longitudinale intre sectiile de la nivelul superior sic el inferior, daca este cazul cuplarile inelare;
b. Se aliniaza elementele structurale ale sectiilor ce intra in cuplare (pereti, bordaje, elemente de osatura)
c. Se monteaza pieptini care mentin alinierea tablelor puntii, respectiv a bordajelor; prinderea pieptinilor se executa conform instructiunii tehnologice de montare a pieptinilor;
d. Se prind in puncte de sudura peretii sectiilor superioare de puntile sectiilor inferioare;
e. Se aliniaza si se prind in pieptini sau in puncte de sudura elementele de osatura;
f. Se bate zgura rezultata in urma taierii plusurilor de montaj si se polizeaza marginile prelucrate, se creaza pragul necesar executarii lucrarilor de sudura;
g. Se verifica existenta si se monteaza piesele de completare in cuplare (gusee, bracheti, platbanda de condens), se prind in puncte de sudura; prinderea in puncte de sudura se executa in conformitate cu instructiunea tehnologica de prindere in puncte de sudura;
h. Se face predarea lucrarii inainte de sudura la CTC;
i. Se executa sudura cuplarii intre sectii;
j. Dupa sudura se executa predarea tehnica a cuplarii, in cadrul careia se indeparteaza pieptinii de baza ai cuplarilor sudate, piptinii montati in etapa anterioara, se incarca ciupiturile, se polizeaza la fata; indepartarea pieptinilor se executa in conformitate cu prevederile instructiunii tehnologice de montare a pieptinilor;
k. Se preda cuplarea dupa sudura la CTC, clasa si beneficiar;
C. Pregatirea premontajelor pentru montaj la nava:
a. Se indeparteaza ochetii de transport, intoarcere si montaj ai sectiilor de volum ce intra in componenta modulelor;
b. Se monteaza ochetii de transport si montaj introdusi ca urmare a configuratiei modului, a calculului de grutati si centre de greutate tinand seama si de greutatea si centrul de greutate al saturarilor montate pe modul;
c. Se monteaza rigidizarile in corespondenta ochetilor si necesare pentru pastrarea dimensionala si de forma a modulului de suprastructura.
d. Dupa executia sudurii ochetilor de transport si montaj se face verificarea structurii tablelor pe care acestia se monteaza;
e. Se monteaza cheile de tachelaj si paramele de ridicare;
f. Se agata paramele de carligul macaralei;
g. Se elibereaza modulul de elementele de prindere a acestuia de patul de asmblat;
h. Se elibereaza traseul de transport al modulului pana la platform de transport;
i. Se executa manevra de ridicare, transport si asezare a modulului pe platforma; pe aceasta perioada se va imprejmui cu banda colorata zona de transport, se asigura zona cu personal de supraveghere;
j. Se asigura modulul pe platforma prin montarea de pene de lemn, sau/si sudarea de platform metalica a elementelor de sprijin a modulului;
k. Se transporta si se asaza pe modulul de tren de carucioare pe fila 1; 2, pentru sablare si vopsire;
Desfasurarea premontajelor unei suprastructuri la nava tip PSV
Premontaj MODUL 1
![]()

Centrarea sectiei 33
![]()
![]()

Centrarea sectiei 35, cuplarea long. S35 cu S33
![]()
![]()
![]()
![]()
![]()
![]()
![]()
![]()

Centrarea sectiei 34 Bb, cuplarea long. S34Bb cu S33+S35
![]()
![]()
![]()
![]()
![]()
![]()
![]()
![]()

Centrarea S34Tb, cuplarea long. S34Tb cu S33+S35
Premontaj MODUL 2
![]()

Centrat S31
![]()
![]()

Centrat S32, cuplarea long. S32-S31
![]()
![]()

![]()
![]()

Centrat S30Bb, cuplarea long. S30 - S31+33
![]()
![]()

![]()
![]()


Centrat S30Tb, cuplat long. S30Tb - S31+32
MC 9. Centrat blocuri de nava, module suprastructura si sectii independente
MC 9.1 Centrat blocuri de nava
Asamblarea finala a navei se face pe cala de montaj si este stabilita prin strategia de fabricatie a navei..
Cala de montaj (fila) reprezinta locul special amenajat, delimitat in incinta santierului care deserveste operatiunile de construit blocuri din sectii de volum, centrat blocuri si cuplat blocuri in vederea obtinerii corpului navei.
POZA

Cala de montaj este dotata cu suporti de chila, carucioare de rola, schele, tachelaj, dispozitive coada de peste, intinzatori, pene metalice cu cioc, piepteni, urechi de fixare etc. La navele mari si mijlocii construite prin metoda in sectii, se folosesc blocuri de chila, cavaleti la extremitati, scareuri si suporturi. Navele construite in blocuri se asambleaza pe carucioare.
Aparitia asamblarilor sudate in constructia corpului navei a permis posibilitatea asamblarii preliminare si in sectii, modificandu-se succesiunea lucrarilor pe cala. Astfel creste calitatea produselor, productivitatea muncii, se reduce ciclul de fabricatie, scade costul de productie.
Lucrarile de asamblare depind in mare masura de metoda care se alege pentru formarea corpului navei pe cala.
Se cunosc trei metode de asamblare a corpurilor de nave pe cala:
- piramidal
- asamblare din blocuri
- insulara.
Metoda de asamblare din blocuri asigura cea mai mare productivitate prin crearea unui front mare de lucru pentru muncitori si micsorarea deformatiilor datorate sudurii. Metoda consta in asamblarea separat a sectiilor si cuplarea acestora intre ele cu rezultatul final blocul de nava.
Blocul reprezinta un subansamblu de nava construit din sectii de volum prin cuplari inelare si longitudinale predate tehnic catre CTC , DNV si Client..

Strategia de fabricatie a navei ofera primele informatii legate de tipul de nava, dimensiunile principale, particularitati constructive, ordinea de cuplare a sectiilor de volum si greutatile acestora, ordinea de cuplare a blocurilor si orientarea corpului navei pe cala de montaj.
Pentru a putea fi asamblat corpul de
nava prin cuplarea de blocuri este necesar ca blocurile sa indeplineasca cateva
conditii:
MC 9.1.1 Documentatie tehnologica suport
Plan impartire in sectii
Fise masuratori planeitate completate de maistru
Stadiul Inspectii si Testari
Fise masuratori blocuri
Tabele de sudura
Documentatia de executie a sectiilor de volum ce sunt prinse in cuplarea inelara
MC 9.1.2 Forta de munca necesara pentru executia centrajului blocurilor de nava
Intreaga activitate de pregatire a calei de montaj in vederea centrajului blocurilor de nava, centrajul efectiv al blocurilor in cuplare este desfasurata de echipa de centratori specializata din cadrul Sectiei Montaj. echipa de centratori are un numar de 28 de muncitori cu pregatire de lacatus naval care are un maistru si un sef de echipa::
sudori autogen
legatori sarcina autorizat ISCIR
sudori electric prins autorizat
muncitori specializati in lucru cu statia totala
Coordonarea si numarul de oameni repartizati la fiecare operatiune din activitatea de centraj o face maistrul sau seful de echipa. Fiecare formatie de lucru este alcatuita din 2 lacatusi navali.
MC 9.1.3 Etape premergatoare transferului si centrajului blocurilor de nava
Pregatirea filei de montaj in vederea montarii corpului de nava
Pentru startarea montarii corpului de nava fila de montaj (cala) trebuie pregatita tinand cont de urmatoarele etape:
Trasarea liniei planului diametral
Trasarea sectiunii maestre
Trasarea perpendicularelor extreme Ppp si Ppv
Trasarea catorva linii teoretice ale coastelor
Trasarea liniei de baza pentru control LB
a) Trasarea liniei planului diametral (verificarea planului diametral)
Pentru fiecare nava care se monteaza pe fila se traseaza planul diametral (PD) in functie de planul de amplasare a navei. Deoarece fila de montaj este dotata cu o platbanda montata pe sol pe toata lungimea calei de montaj se va face o verificare a planului diametral prin urmatorii pasi:
- la extremitati se aseaza doua placi metalice
la capetele sinelor se aseaza doua cadre metalice si intre ele se intinde o sarma cu un intinzator
de la aceasta sarma intindem firul cu plumb, punctam si materializam cu chernerul si ciocanelul pe platbanda de pe sol planul diametral (cherneruit).

b) Trasarea liniei de baza pentru control LB
Pentru verificarea lucrarilor, in timpul constructiei navei, fila trebuie prevazuta cu o linie dreapta in spatiu.
Fata de aceasta linie, se verifica pozitia sectiilor si a intregului corp, se traseaza liniile de arbori etc.
De obicei, LB pentru control se aseaza lateral PD la 700-1000 mm si la o inaltime de 400-1200 mm fata de cala.
Daca pe cala se construiesc simultan cateva nave, se traseaza o singura linie de control, comuna, a carei amplasare depinde de conditiile in care se fac verificarile. Trasarea si verificarea liniei de baza pentru control se executa prin metoda razei de lumina, cu nivela optica (teodolit)

MC 9.1.4 Aducerea blocurilor de nava din hala de sablare pe fila de montaj
Transferul blocurilor din hala de sablare se face cu ajutorul trasbordorului ce face legatura intre hala de sablare si fila de montaj. Transbordorul preia din fata halei de sablare blocul aflat pe trenul de carucioare si il transfera in dreptul filei de montaj unde se construieste corpul final al navei.
MC 9.1.5 Descrierea activitatii de centraj blocuri
Se aduce primul bloc, numit bloc baza din hala de sablare pe pozitia de montaj final al navei conform strategiei de fabricatie a navei.
Conform normelor pentru protectia muncii, pentru desfasurarea in conditii de siguranta a operatiunilor de cantraj se asigura de catre Departamentul Utilitati, prin Sectia Schele accesul la toate nivelele (dublufund, punte intermediara, punte principala) cu schele turn, scari de acces intre punti, se asigura marginile exterioare la fiecare punte cu balustrazi fixe, demontabile si modulare. Pentru centrajul blocului formatia de centratori executa urmatoarele operatiuni:
se masoara cu ruleta inaltimea din sina pana la linia de baza (fundul blocului) pentru a stabili inaltimea blocului fata de cala de montaj si se verifica cu firul cu plumb daca este in PD
se masoara cu ruleta inaltimea la puntea principala si la puntea intermediara fata de linia de baza si se completeaza in fisa de masuratori
pe blocul baza se face planeitatea la fund si la puntea principala cu ajutorul nivelei optice, la puntea principala si, daca e cazul, se verifica scarile de pescaj
Daca aceste valori masurate in aceasta faza nu coincid cu valorile obtinute in fisa de masuratori intocmita in faza de executie a blocului se trece la recentrarea blocului prin taiarea din plusul pontililor pentru obtinerea inaltimii blocului fata de cala, se reiau masuratorile de planeitate la fundul navei si la puntea principala in vederea obtinerii valorilor cat mai apropiate de cele scrise in fisa de masuratori intocmita in faza de executie a blocului.
Fisele de masuratori blocuri si blocuri in cuplare sunt eliberate de catre Departamentul Control si Calitate. Aceste fise se completeaza de catre maistru sau sef de echipa cu valorile obtinute dupa masuratori
Se aduce al doilea bloc, numit bloc
secundar la o distanta cat mai mica, aproximativ 50 mm fata de blocul baza.



Departamentul Utilitati asigura conform normelor de protectia muncii accesul pe ambele blocuri prin montarea de schele turn pentru acces, acces la exterior pe toata cuplarea inelara dintre blocuri cu schele modulare agatatoare. Dotarea cu utilitati este facuta de acelasi departament: prin asigurarea distribuitoarelor de oxigen si acetilena, surse de curent 220 V si 360 V, iluminat in compartimentele interioare si pe turnul de acces, ventilatii in zonele inchise.
Dupa asigurarea cuplarii cu schele formatia de centratori desfasoare urmatoarele operatiuni:
se masoara inaltimea blocului din sina cu nivela optica, se aduce la aceeasi inaltime la LB cu blocul baza centrat final prin taiarea din plusul pontililor si valorile se completeaza in fisa de masuratori a blocurilor in cuplare
se masoara cu ruleta inaltimea la puntea principala si la puntea intermediara fata de linia de baza si se completeaza in fisa de masuratori
se verifica planeitatea la fund si la puntea principala cu nivela optica luand ca baza punctul in care s-au facut masuratorile pe blocul centrat final si se completeaza in fisa de masuratori blocuri in cuplare
pentru verificarea lungimii blocurilor in cuplare se traseaza pe sol prima coasta din pupa a blocului baza si ultima coasta din prova a blocului 2, se masoara distanta intre ele cu ruleta si se completeaza in fisa de masuratori
Conform fisei de masuratori a blocurilor in cuplare si a valorilor obtinute prin masuratori se stabileste ce plusuri se vor taia pentru obtinerea lungimii blocurilor cuplate.
se asigura cuplarea dintre blocuri prin sudarea pieptinilor metalici pe puntea principala si fundul blocurilor si asigurarea lor cu tirantii de 25 T
se verifica cu ruleta lufturile maxime admise in cuplare la punti, pereti, bordaje si se stabileste plusul ce trebuie taiat efectiv
- se traseaza cu acul de trasaj, ruleta si creta plusul din cuplare si se intra la taiat cu autogenul si cu masina de debitat cu plasma conform masuratorilor efectuate.
Orientarea rostului cuplarilor se face conform prevederilor de mai jos.
|
Localizare |
Element |
Cuplare |
Orientare rost |
Piepteni |
|
|
Invelis exterior |
Zona cilindrica |
Punti |
Inelara Longitudinala |
spre exterior |
pe interior |
|
Bordaj |
Inelara |
spre exterior |
pe interior |
||
|
Bordaj |
Longitudinala |
spre interior |
pe exterior |
||
|
Gurna Fund |
Inelara Longitudinala |
spre interior |
pe exterior |
||
|
Zone aviate (zone pupa si prova, inclusiv suprastructura) |
Inelara Longitudinala |
spre interior |
pe exterior |
||
|
Interior nava |
Rostul se orienteaza astfel incat deschiderea sa fie pe partea opusa osaturii |
pe partea osaturii |
|||


Dupa taierea plusului se intra la baterea zgurii rezultate in urma taierii (debavurare) si se face curatenie pe toata cuplarea.
Inainte de a intra la prins cu echipa de lacatusi navali specializata pentru prins cuplari se face o verificare a lungimii blocurilor conform fisei de masuratori.
MC 9.2 Centrat si cuplat module suprastructura si sectii independente pe nava
La montarea suprastructurii pe nava se centreaza si se cupleaza atat modulele la care s-au facut premontajele conform strategiei de fabricatie a navei, cat si a sectiilor independente de suprastructura.
MC 9.2.1 Documentatie tehnologica suport
MC 9.2.2 Forta de munca necesara pentru executia centrajului si cuplarilor modulelor de suprastructura pe nava
echipe de muncitori cu pregatire de lactus naval cu nivel cel putin "A", care sa aiba in componenta:
a) pentru centrat si trasat:
- muncitor specializat in lucrul cu statia totala
- un coordonator (sef) de lucrare
- legator de sarcina autorizat
- sudor electric prins - autorizat
- sudor autogen;
b) pentru executia lucrarilor de montaj:
- un coordinator (sef) de lucrare
- legato de sarcina autorizat
- sudor electric prins - autorizat
- sudor autogen
Centrajul modulelor de suprastructura pe nava este facut de echipa de centratori specializata din cadrul Sectiei Montaj. Cuplarea modulelor de suprastructura pe nava este executata de catre echipa de lacatusi navali specializata pe cuplari inelare si longitudinale din cadrul Sectiei Monta.
MC 9.2.3 Dotarea specifica
macara de cala;
cabluri de diferite sarcini si marimi;
chei de tachelaj;
statie totala;
nivela optica;
fir cu plumb;
flexibil;
trusa de taiere oxigaz;
sursa de sudura MASTER 2200, pentru prindere in hafturi de sudura;
palane cu crichet si lant;
polizor electric sau pneumatic;
bride, pene, ciocan, presa hidraulica.
MC 9.2.4 Descrierea activitatii
Conditiile preliminare care trebuiesc indeplinite pentru montarea suprastructurii:
corpul navei/blocul pe care se monteaza suprastructura sa fie incheiat, sudat si indreptat, cuplarea inelara intre blocuri executata
premontajele sa corespunda dimensional desenelor de executie si fiselor
de control dimensional cu incadrarea in tolerantele admise in manualul de asigurare a calitatii
premontajele si sectiile de volum independente sa fie finalizate din faza de premontaj respectiv asamblat sectii de volum, sudate, predate la CTC, beneficiar si clasa
premontajele si sectiile independente sa aiba montati pieptini la baza peretilor si a invelisului bordajelor
premontajele sa fie indreptate, predate, sablate si vopsite
sa fie montate scari de acces si schele corespunzatoare pentru lucrul la inaltime pentru executia cuplarilor intre module sectiile de volum
sa existe utilitati: iluminat, distribuitor de aer comprimat, oxigen, acetilena, energie eléctrica pentru alimentarea aparatelor de sudura, polizoare, ventilatie
A. Centrarea sectiilor de volum independente si a premontajelor
a. se studiaza documentatia de executie a sectiilor de volum
b. se studiaza fisa de masuratori a navei
c. se executa trasajul in vederea montarii sectiei independente sau a modulului de suprastructura
d. inainte de montarea blocului de suprastructura, se va face indreptarea corecta a marginilor bordajului ce depaseste puntea pe care urmeaza a se monta sectia sau modulul de suprastructura, pe intreg perimetrul
e. se transporta la nava, se ridica si se centreaza pe pozitie sectia independenta sau modulul de suprastructura
f. se executa centrajul sectiei sau a modulului de suprastructura, cu verificarea dimensionala a semilatimii, a inaltimii de constructie, a corespondentei structurale intre elementele de structura a sectiilor aflate in centraj fata de elementele de structura a sectiilor deja montate
g. se traseaza plusul de montaj
h. se taie plusul de montaj, se prelucreaza marginile pentru sudura, acolo unde este cazul se face degrosarea marginilor
i. se lasa sectia sau modulul se face o noua verificare dimensionala
B. Montarea sectiilor de volum independente si a premontajelor
a. ordinea executarii cuplarilor este: cuplari longitudinale orizontale, intre sectiile independente si a modulelor si apoi cuplarile inelare
b. se aliniaza elementele structurale ale sectiilor ce intra in cuplare (pereti, bordaje, elemente de osatura)
c. se monteaza pieptini care mentin alinierea tablelor bordajelor, prinderea pieptinilor se executa conform instructiunii tehnologice de montare a pieptinilor si se monteaza pe interiorul cuplarii pentru a se elimina predarea tehnica pe corp exterior dupa indepartarea lor
d. se prind in puncte de sudura peretii sectiilor superioare de puntile sectiilor inferioare, se prind cu bride, acolo unde alinierea peretilor este dificila, se pot face desprinderi de cordoane de sudura si insertii, materialul de insertie sa fie de aceeasi grosime si calitate cu materialul de baza
e. se aliniaza si se prind in pieptini sau in puncte de sudura elementele de osatura
f. se bate zgura rezultata in urma taierii plusurilor de montaj si se polizeaza marginile prelucrate, se creaza pragul necesar executarii lucrarilor de sudura
g. se verifica existenta si se monteaza piesele de completare in cuplare (gusee, bracheti, platbanda de condens), se prind in puncte de sudura; prinderea in puncte de sudura se executa in conformitate cu instructiunea tehnologica de prindere in puncte de sudura
h. predarea inainte de sudura a cuplarilor se face catre Departamentul Control si calitate si Clasa prin chemare si se inspecteaza de catre maistru impreuna cu inspectorul CTC si Clasa
Dupa predarea inainte de sudura catre CTC cu rezultatul acceptat intra Sectia Sudura la sudat.
Pentru eliminearea tensiunilor aparute in urma sudurii se fac detensionari pe cuplare de catre echipa de indreptatori specializata din cadrul Sectiei Montaj.
i. predarea tehnica dupa sudura se face prin indepartarea pieptinilor de la interior cu ajutorul gurei de lup, se rup pieptinii montati, se incarca ciupiturile si se polizeaza cu polizorul
j. Predarea dupa sudura a cuplarilor se face catre Departamentul Control si Calitate, Clasa si beneficiar prin chemare si se inspecteaza de catre maistru impreuna cu inspectorul CTC, reprezentant Clasa si Beneficiar
Desfasurarea montajului unei suprastructuri la o nava tip PSV
![]()
![]()
![]()
![]()
![]()
![]()
![]()
![]()
![]()
![]()

Centrarea modulului 1, cuplarea longitudinala a modulului 1 pe puntea "B"
![]()
![]()
![]()
![]()
![]()
![]()
![]()
![]()

![]()
![]()

Centrarea Modulului 2, cuparea long Modul 2 cu puntea "B",
cuplarea inelara Modul 2 cu Modul 1
![]()
![]()
![]()
![]()
![]()
![]()
![]()
![]()
![]()
![]()
![]()
![]()
![]()
![]()
![]()
![]()

Centrarea S29, cuplarea long. S29 cu puntea "B";
cuplarea inelara S29 cu Modulul 2
![]()
![]()
![]()
![]()
![]()
![]()
![]()
![]()
![]()
![]()
![]()
![]()
![]()
![]()

Cuplarea timoneriei cu sectiile si modulele de suprastructura
![]()
![]()
![]()
![]()
![]()
![]()
![]()

Cuplarea cosului de fum cu timoneria
Puntea B, Modul 1, Modul 2, S29, Timonerie, Cos de Fum + Catarg
Tolerante la montarea suprastructurii

-abaterea P.D. al sectiei fata de P.D. de control de pe puntea pe care se amplaseaza suprastructura ( b)
-abaterea oe inaltime a uneii linii de apa trasate anterior pe peretii suprastructurii (h)
-abaterea L.T.C a suprastructurii fata de L.T.C de control de pe punte (∆d)
-corectarea dupa sudarea cu sectia vecina a trasajului liniilor de control pentru montaj (∆)
b = ± 5
∆d = ± 3
h = ± 3
MC 10. Cuplare inelara intre blocuri de nava
MC 10.1 Documentatia tehnologica support
MC 10.2 Forta de munca necesara pentru executia cuplarii inelare dintre blocuri
Activitatea de cuplare inelara intre blocuri este desfasurata de o echipa de lacatusi navali specializata din cadrul Sectiei Montaj. Echipa de lacatusi navali este formata din 25 de muncitori cu pregatire in domeniul naval care e condusa un maistru si un sef de echipa:
sudor autogen
sudor electric
polizator
legator de sarcina autorizat ISCIR
Coordonarea si numarul de oameni pe fiecare operatie din cadrul activitatii de cuplare este facuta de catre maistru sau sef de echipa. Fiecare formatie de lucru este alcatuita din 2 lacatusi navali.
MC 10.3 Descrierea operatiilor
Se studiaza documentatia sectiilor de volum ce intra in cuplarea inelara, se identifica piesele de completare si se aduc langa cuplarea dintre blocuri cu echipa de transport
Se face o verificare vizuala a cuplarii inelare inainte de prindere din punct de vedere al lufturilor intre punti, pereti, bordaje (se masoara lufturile cu ruleta), al alinierii elementelor de structura si al tablelor cap la cap, al rostului, al sanfrenelor si al degrosarilor date in documentatia de executie a fiecarei sectii de volum
Prinderea efectiva a cuplarii se face plecand simultan din 4 puncte diferite ale cuplarii:
doua formatii prind la fundul blocurilor plecand dinspre PD spre borduri
doua formatii prind la nivelul dublului fund plecand dinspre PD spre borduri
doua formatii prind la bordaje, pe verticala
doua formatii prind la nivelul puntii principale
Prinsul cuplarii dintre tablele cap la cap de la punti, bordaje, dublubord, fund si dublufund se face cu ajutorul pieptinilor de aluminiu si a masinii de prins bolturi.

Exista si cazuri in care se folosesc pieptini metalici in zone unde dezaxarile si tensiunile in table sunt prea mari, iar grosimea tablelor depaseste 15 mm, in zonele de gurma. Se prind in pieptini metalici sau in hafturi de sudura elementele de osatura cap la cap din dublufund si de sub punti. Prinderea pieptinilor metalici se face cu electrodul si se respecta un regim de sudare care sa nu produca arsuri marginale sau cratere pe tabla
Electrodul se inclina astfel incat sudura sa topeasca mai mult tabla corpului decat pieptenul; Se respecta un regim de sudare care sa nu produca arsuri marginale sau cratere pe tabla

Daca sudura ramane pe pieptan la
desprinderea acestuia, pe tabla raman ciupituri, Daca sudura de prindere este
grosolana atunci trebuie executata o taietura cu polizorul pentru a se desprinde mai usor
Se monteaza piesele de completare ce intra pe cuplare realizandu-se astfel nodurile tipice din documentatie si se rigidizeaza anumite zone. Se prelucreaza marginile cuplarii (se polizeaza) cu polizorul pentru sudura.
Avantajul folosirii pieptinilor de aluminiu apare la predarea tehnica finala unde se polizeaza cu app. 40 % fata de un pieptan de metal . Dezavantajul apare in zona de gurna si zonele dezaxate unde nu se pot folosii datorita rezitentei limitate a bolturilor de prindere.

4. Predarea inainte de sudura la Departamentul Control si Calitate se face prin chemare si se inspecteaza de catre maistru si inspectorul CTC
Dupa predarea inainte de sudura catre CTC cu rezultatul acceptat intra Sectia Sudura la sudat.
Pentru eliminearea tensiunilor aparute in urma sudurii se fac detensionari pe cuplare de catre echipa de indreptatori specializata din cadrul Sectiei Montaj.
Predarea tehnica dupa sudura se face prin demontarea pieptinilor de aluminiu si cei metalici cu ajutorul polizorului si a masinii de infiletat si se polizeaza la exteriorul cuplarii (punti, bordaje) numai cu polizorul oala conform standardelor, se incarca cu electricul ciupiturile si se polizeaza
Se verifica elementele de structura pentru eventualele dezaxari aparute dupa sudura, posibile deformatii aparute la punti, bordaje si se intervine cu desprinderi si cusaturi suplimentare pentru a fi eliminate
Se completeaza cu piesele de completare ce nu se puteau monta inainte de sudura si se sudeaza
Predarea dupa sudura la Departamentul Control si Calitate, Clasa si Beneficiar se face prin chemare si se inspecteaza de catre inspectorul CTC, reprezentant Clasa si Beneficiar impreuna cu maistru. Predarea tehnica si otelul pe cuplare se preda la 500 mm fata de fiecare parte a cordonului
MC 11. Pregatirea navei pentru transfer si lansare
Activitatea de pregatire a navei pentru transfer este o activitate importanta ce consta in urmatoarele etape:
Decuparile tehnogice pentru sablat si vopsit se realizeaza in conformitate cu documentatia primita de la directia tehnica. Aceasta documentatie se realizeaza in baza informatiilor si solicitarilor in scris sau pe e-mail din partea coordonatorului de nava, informatii ce indica amplasarea decuparii (compartiment, tanc, coasta) si data de livrare a documentatiei.
Inainte de inceperea oricarei lucrari in tanc sau compartiment, in acest caz lucrarea constand in obturarea unei decupari tehnologice evacuare grit, trebuiesc respectate urmatoarele operatii:
se verifica daca in tanc/compartiment exista gaze; acest lucru se face cu ajutorul unui dispozitiv ce detecteaza gazele;
se introduc ventilatii in spatiile inchise pentru a se evita afumarea acestora si a riscului de asfixiere a persoanele ce lucreaza in acel loc;
se realizeaza protectii in jurul locatiei in care se efectueaza lucrarea pentru a proteja zonele adieacente. Un exemplu de protectie al acestor zone este prezentat in figura 12.1;
Fig. 12.1 Protectie inainte de obturat
decupare tehnologica evacuare grit
se pregateste tabla ce va obtura decuparea din tanc/compartiment prin polizarea muchiilor si unde este necesar realizarea sanfrenelor.
se pregateste decuparea data in corpul navei prin polizare;
se pozitioneaza tabla, se aliniaza cu invelisul exterior al navei cu ajutorul pieptenilor;
se realizeaza sudura tablei cu invelisul exterior al navei;
dupa finalizarea lucrarilor de sudura, pieptenii sunt indepartati si se realizeaza predarea tehnica;
se preda la CTC lucrarea executata.
Cand se realizeaza aceste decupari trebuie sa se acorde atentie la felul in care se face sanfrenul (spre interior sau spre exterior), pentru ca ulterior cand acestea se vor pune la loc sa nu duca la deteriorarea vopselei din tanc in urma polizarii muchiilor sau a realizarii sudurii.
In baza documentatiei tehnologice ( ex. Figura 12.2) se va realiza
inchiderea decuparilor tehnologice, si apoi predarea tehnica.
Fig 12.2 Plan obturat decupari tehnologice
evacuare grit
Fig. 12.3
Pozitionarea pontililor la nava
Prima lucrarea ce trebuie realizata in prima faza, este cea de montare a sistemului / sistemelor de dizlocare a navei.
Fig . 12.4 Sistem de dizlocare PV
Acest sistem de dizlocare prezentat in figura 12.4 are rolul de a facilita operatia de transfer a navei si se poate monta in prova sau pupa, in functie de zona in care necesita sa fie transportata nava. In cazul navelor de dimensiuni mari , aceste sisteme se monteaza atat prova cat si pupa.
Inainte de inceperea oricarui tip de lucrare, trebuie studiata documentatia de executie pentru a stabili o strategie in baza careia sa se realizeze lucrarea. In cazul in care documentatia nu exista, aceasta va fi solicitata directiei tehnice, iar in cazul in care aceasta nu poate fi intocmita, lucrarile se vor realiza in baza experientei acumulate.
Intr-o prima faza, se elimina o parte din pontili ( aproximativ 35% ), astfel incat greutatea navei sa fie repartizata uniform pe pontilii ramasi pentru a se evita aparitia deformatiilor. Eliminarea pontililor in aceasta faza se face cu autogenul.
Pontilii aflati pe zona gurnei sau in zonele aviate, au flansele superioare prinse in puncte de sudura de invelisul corpului navei, iar indepartarea acestora se face prin polizarea punctelor de sudura sau prin craituire pentru a nu afecta tancurile.
Fig. 12.5 Faza 1 -
Eliminarea pontililor in
proportie de aproximativ 30%
Dupa indepartarea pontililor, se verifica daca in urma acestei operatii au aparut deformatii si daca sunt, acestea se vor remedia. Dupa finalizarea operatiei de indreptat, se trece la pregatirea zonelor pentru vopsire si apoi vopsirea acestora.
Faza urmatoare consta in impanarea navei conform documentatiei, in proportie de 60 %, amplasarea tacurilor facandu-se pe zonele de intersectie ale elementelor de osatura longitudinala cu cele transversale. Restul de tacuri vor fi puse pe pozitie in FAZA II, dupa ce se vor indeparta si restul de 65 % de pontili.
Fig. 12.6 Componenta tacurilor ce se introduc sub nava
In ceea ce priveste componenta tacurilor ce se amplaseaza sub nava,
acestea sunt formate dintr-un tac de stejar (3) ce este amplasat la partea inferioara, doua pene pentru reglaj (2), o perna de brad (1) care permite acesteia sa se deformeze astfel incat sa preia tensiunile si sa se adapteze fomei corpului navei de pe acea zona si o tabla (4) asa cum este prezentat in figura 12.7.
In unele cazuri, in functie de calitatea vopselei, deasupra tablei (4) este asezata o folie de plastic ce are rolul de a preveni deteriorarea stratului de vopsea.
Fig. 12.8 Tabla (4) ce face legatura intre corpul navei si perna de brad.
Urmatoarea faza consta in eliminarea pontililor ce nu au fost indepartati la etapa anterioara. Dupa eliminarea acestora se verifica daca in urma acestei operatii au aparut deformatii si daca da, acestea se vor remedia. Dupa finalizarea operatiei de indreptat, se trece la pregatirea zonelor pentru vopsire si apoi vopsirea acestora. Se continua impanarea navei prin completarea tacurilor (restul de 40%) respectand pozitia acestora asa cum este indicat in plan.
Sisteme de sprijin PV
Sistemele de sprijin PV sunt siteme care ajuta la mentinerea navei pe pozitie, astfel incat orice lucrare se efectueaza la bordul navei, indiferent de anvergura acesteia sa nu modifice pozitia navei; odata cu modificarea pozitiei pot aparea si deformatii. Sistemul este format din pontili cu diferite inaltimi care materializeaza la partea superioara forma corpului navei la o anumita inaltime. Pe acesti pontili este pozitionata o grinda care de asemenea materializeaza la partea superioara forma corpului navei pentru evita deteriorarea zonei.
Pentru rigidizarea pontililor si pentru a evita deplasarea incorecta a carucioarelor, acestia sunt prinsi in puncte de sudura de carucioare si rigidizati cu grinzi din teava si bracheti.

Fig. 12.9a Sistem de impins PV Fig.12.9b Sistem de impins PV
(sectiune longitudinala) (sectiune transversala)
Sisteme de sprijin PP
In realizarea sistemului de sprijin PP se merge pe acelasi principiu ca cel al sistemului PV, dar difera constructia acestuia datorita formei si pozitiei pe inaltime a boltei PP. In Figura 12.10 este prezentata structura sistemului de sprijin. Sistemul este format din pontili cu diferite inaltimi care materializeaza la partea superioara forma corpului navei la o anumita inaltime. O alta deosebire a sistemelor de sprijin PP fata de cele PV este aceea ca la partea superioara a pontililor se introduc tacuri si pene de lemn facand operatia de impanat mai dificila pe aceasta zona. Indepartarea sitemelor de sprijin se realizeaza in aceeasi faza in care se realizeaza si depontilatul inainte de tragerea navei.
Fig. 12.10a Sistem de sprijin PP Fig.12.10b Sistem de sprijin PP
(sectiune longitudinala) (sectiune transversala)
Sisteme de sprijin in zona trusterelor retractabile/pendulare
O lucrarea de care
trebuie sa se tina cont atunci cand se trage nava este cea la trusterele
pendulare si retractabile, deoarece aceasta se face cu nava trasa in proportie
de 70% pe syncrolift. Pe zona in care se vor realiza ulterior lucrari la
Trusterul pendular / Trusterul retractabil, tacurile de lemn sunt inlocuite cu
sisteme de sprijin ce permit indepartarea carucioarelor cu usurinta pentru a
putea efectua lucrarile ulterioare.
Fig. 12.11 Sistem de sprijin pt. montarea
trusterelor (retractabile/pendulare)
Fig.12.12 Pozitionarea sistemelor de sustinere din tevi
Aceste sisteme de sprijin sunt confectionate din teava (1) si o tabla (2), la partea superioara a sistemului fiind amplasate penele de lemn (3) si tacul de brad (4).
O etapa ce trebuie efectuata inainte de tragerea navei este cea de curatare, eliberare si pregatire a sinelor pentru transfer.
- curatarea sinelor consta in indepartarea oricarui tip de deseu din zona adiacenta si de pe acestea;
- pregatirea sinelor consta in indepartarea prin polizare a imperfectiunilor caii de rulare ramase de la diferite lucrari.
In cazul navelor cu derivor negativ figura 12.13, indepartarea sistemului de sprijin se realizeaza dupa tragerea navei pe platforma syncrolift. Dupa ce s-a realizat tragerea completa a navei pe syncrolift, se vor pozitiona tacurile sub derivor conform documentatiei, acordandu-se o atentie suplimentara pozitionarii acestora pentru a preveni deformarea gratarelor platformei.
Fig. 12.13 Nava cu derivor negativ
Dupa finalizarea lucrarilor in zona trusterelor prova, este adusa pe pozitie partea demontabila a transbordorului, se repozitioneaza carucioarele, dupa care se impaneaza. Tacurile sunt prinse de trenul de carucioare cu ajutorul unor scoabe pentru a ramane pe pozitie si pentru a putea fi recuperate cu usurinta dupa lansarea navei.
Nava se trage in totalitate pe platforma syncrolift, dupa care lansarea poate fi startata.
Dupa lansarea si tragerea navei la cheu, platforma syncrolift este readusa pe pozitie, dupa care se trece la indepartarea carucioarelor si tacurilor.
5. Metode standart remediere neconformitati produs
5.1 Remediere prin insertie
5.2 Remediere suprafete
5.3 Remediere dezaxari
6. Marcare si trasabilitate
se marcheaza si se traseaza linia teoretica a planului diametral pe sectie si sol;
se materializeaza linia de baza ;
se materializeaza pe sol prima si ultima coata a sectiilor de baza pe secte si sol( se verifica 90°);
se traseaza si marcheaza liniile teoretice pentru sectiunile transversale si longitudinale pe sectia de baza, a sectiei de volum care urmeaza a fi ridicata ;
se numeroteaza coastele;
se traseaza si se marcheaza liniile de control la 100 mm fata de trasajul executat pentru sectiunile transversale si longitudinale a sectiei de volum care urmeaza a fi ridicata;
se inscriptioneaza :
comanda interna,
numar bloc,
greutate bloc,
start / finish bloc.
marcarea se face cu markerul si prin cherneruire;
7. Monitorizare proces tehnologic
|
OPERATIA |
PARAMETRU TEHNOLOGIC |
MONITORIZARE |
||
|
INTERVAL |
MODALITATE |
DISPOZITIVE |
||
|
DEBITARE OXI - GAZ |
Presiune acetilena |
La inceputul fiecarei operatii |
Citire presiune-reglare |
Manometru |
|
Presiune oxigen |
Periodic |
Citire presiune |
Manometru |
|
|
CENTRAT SECTII DE VOLUM |
Cote de gabarit |
Inainte /dupa taierea plusului de montaj |
Citire dimensiuni |
Ruleta |
|
Planeitate |
Inainte /dupa taierea plusului de montaj |
Verificare planeitate |
Nivela optiva |
|
|
Nodurile tipice si degrosari table |
Dupa taierea plusului de montaj |
Verificare vizuala |
ruleta |
|
|
MONTAT SECTII DE VOLUM |
Alinierea descarcarilor |
Inainte / dupa sudura cuplare |
Prin marcare si acustic |
Creta si ciocan |
|
Dimensiuni geometrice samfrene |
Inainte de sudura cuplare |
Verificare vizuala |
Lera ,spion pentru unghiuri |
|
|
Alinierea tablelor cap la cap |
Inainte/ dupa sudura cuplare |
Verificare vizuala |
Spion |
|
|
INDREPTAT |
Deformatii |
Dupa sudura cuplarilor |
Verificare concavitate/convexitate |
Sipca,spion |
8. Codificare locuri de munca
Locurile de munca se identifica cu activitatile identificate in cadrul logigramei
MC - 1 Aprovizionarea procesului;
MC - 2 Centrat sectii de volum in cadrul blocului;
MC - 3 Montat sectii de volum prin prindere in puncte de sudura;
MC - 4 Montat structuri specifice;
MC - 5 Montat fise de modificare;
MC - 6 Indreptat;
MC - 7 Pregatirea blocului pentru intrare in sablare vopsire;
MC - 8 Premontaje sectii suprastructura
MC - 9 Centrat blocuri de nava, module suprastructura si sectii independente;
MC - 10 Cuplat blocuri de nava;
MC - 11 Pregatirea navei pentru lansare si livrare.
9. Echipamente de lucru
10. Materiale consumabile
pietre polizor Ø125 x 6;
pietre polizor Ø180 x 6;
freze biax Ø 6;
freze biax Ø 8;
electrod superbaz Ø 2.5 mm;
electrod superbaz Ø 3.25 mm;
electrod supertit Ø 2.5 mm
electrov OVERCOR Ø2.5mm;
bolturi M 16 - pentru masina de impuscat bolturi;
bolturi M16 - pentru masina de impuscat bolturi;
piulite M16- ptr.masina de impuscat bolturi;
placute gaurite 12x80x80- ptr.masina de impuscat bolturi ;
electrozi cod 52520 / TD - ptr.masina de debitare manuala cu plasma;
capison protectie cod 60310 - ptr.masina de debitare manuala cu plasma;
izolator frontal cod 60080 - ptr.masina de debitare manuala cu plasma;
difuzor gaze cod 60010 - ptr.masina de debitare manuala cu plasma;
duze cod 51122 - ptr.masina de debitare manuala cu plasma;
duze tip H si S pentru trusele de aotogen ROTES;
duze taire X11;
stut pentru extensie;
stut furtun alama;
opritori de flacara;
cuple rapide;
fir cu plumb;
clesti sudura;
ciocane;
pene metalice;
perii de sarma;
ranga;
sfoara ;
creta;
ac trasat;
markere;
rulete ;
11.Infrastructura
In cadrul procesului de Montaj Corp Nava sectia Montaj isi desfasoara activitatea in hala montaj nave, cala de 15000, cala reparatii nave si cala de nave mici .

HALA MONTAJ (fila 7,8)
suprafata totala interioara: 174,5 m x 77 m;
2 travee a cate 6 sine fiecare;
fiecare travee este dotata cu cate doua poduri de cate 50 tone fiecare si un pod de 75 tone;
inaltime la carlig max:27,2 m;
distanta minima dintre carligele a doua macarale:10 m;
dimensiuni porti mici: 17,4 m (oriz.) x 16 m (vert);
dimensiuni porti mari:25 m (oriz.) x 25,7 m (vert.);
retea interna de alimentare cu acetilena (p=0.7 bari), oxigen (p=5 bari) si CO2 (p=5 bari);
retea interna de alimentare cu aer la 6 bari;



CALA DE 15000tdw (fila 5,6)
Cala de 15000tdw -sectiune transversala
Bratul macaralei se considera perpendicular pe axa sinelor iar cotele sunt in metrii.




CALA DE 15000 tdw - vedere de sus
Macaralele portic de 50 T au inaltimile maxime la carligul mare dupa cum urmeaza:
CALA REPARATII NAVE (fila 3,4)


CALA DE NAVE MICI

12. Conditii tehnologice pentru mediul de lucru
Temperatura tablei inainte de sudura sa nu fie mai mica de -5˚C
13. Cerinte de calificare pentru personalul executant
14. Cerinte de securitate si sanatate ocupationala
14.1 Cerinte generale
Obligatoriu, personalul va fi dotat si va purta echipamentul individual de protectie specific meseriei , aprobat prin Contractul Colectiv de Munca si CSSM (foto 01).
Foto
01 Foto
01

La cel putin trei luni, lucratorii vor fi instruiti periodic de catre seful direct cu instructiunile de securitate ale producatorului echipamentelor de munca (enumerate mai sus). Dupa instruire, lucratori vor fi verificati prin testare, daca si-au insusit instructiunile de securitate ale producatorului echipamentelor de munca (fiind necesar sa obtina minim sase puncte din zece) .
Inainte de repartizarea lucratorilor pe locurile de munca , maistrul sau sefii punctelor de lucru au obligatia de a verifica fiecare loc de munca in parte si de a lua masurile ce se impun pentru prevenirea accidentarii lucratorilor.
Dupa verificarea locurilor de munca maistrul sau sefii punctelor de lucru au obligatia de a lua masurile ce se impun pentru rezolvarea neconformitatilor de securitate a muncii constatate la verificare, sau sesizate de lucratori.
Este interzis lucratorilor sa paraseasca locul de munca la care au fost repartizati fara acceptul sefului direct al locului de munca.
Este interzis lucratorilor sa execute alte lucrari decat cele repartizate, fara acceptul sefului direct. In cazul in care lucratorul este solicitat sa execute alte lucrari, acesta trebuie sa fie instruit corespunzator noii lucrari.
Corespunzator lucrarilor repartizate, lucratorii vor fi instruiti cu instructiunile de securitate si sanatate in munca (ISSM .) interne, stabilite prin tematica lunara.
Deseurile rezultate in urma procesului tehnologic vor fi depozitate selectiv in locuri special amenajate (foto 02).
Foto
02

Zilnic, inainte de inceperea lucrului, fiecare lucrator va controla daca echipamentele, uneltele si sculele din dotare sunt in stare tehnica corespunzatoare. Cele care nu corespund din punctul de vedere al tehnicii securitatii muncii se vor scoate din uz, repara (cele care se pot reconditiona) sau casa.
Se interzice legarea si/sau fixarea, chiar si ocazionala a sarcinilor de carligul macaralei de catre persoane care nu sunt autorizate in acest scop. Lucratorii care efectueaza legari si fixari de sarcini in instalatiile de ridicat vor fi autorizati si instruiti ca "LEGATORI DE SARCINI"
Prin grija sefului direct, zonele de lucru cu risc de accidentare vor fi semnalizate, marcate si dupa caz protejate.
Seful ierarhic superior, trebuie ia masuri de reducere a riscurilor de accidentare cunoscute sau ori de cate ori este sesizat de lucratori.
Fumatul este permis numai in locurile special amenajate in acest scop.
14.2 Instructiuni de securitate interna si instructiuni producator care trebuiesc respectate:
- Instructiuni pentru manipulare, transport prin purtare manuala sau cu mijloace nemecanizate, depozitare si pozitionare materiale, echipamente de munca sau elemente componente ale acestora, cod:ISSM 02, rev.03
- Instructiuni pentru lucrul la inaltime, cod: ISSM 03, rev.03
- Instructiuni pentru sudarea si taierea metalelor, cod: ISSM 04, rev.03
- Instructiuni pentru lucrari de confectii metalice si montaj, cod:ISSM 05, rev. 04
- Instructiuni pentru acordare prim ajutor in caz de electrocutare, cod:ISSM 06, rev. 01
- Instructiuni pentru lucrul pe schele, cod:ISSM 09, rev.
- Instructiuni pentru acces si evacuare de urgenta, cod:ISSM 10, rev. 03
- Instructiuni pentru prelucrarea metalelor prin aschiere, cod:ISSM 11, rev. 01
- Instructiuni pentru lucrul in compartimente sau suprafete vopsite ale navelor, cod:ISSM 014, rev. 01
- Instructiuni pentru utilizarea in siguranta, evidenta, verificarea, pastrarea si scoaterea din uz a cablurilor, lanturilor si chingilor de ridicare a sarcinilor, cod:ISSM 015, rev. 03
- Instructiuni pentru lucrul in spatii inchise, cod: ISSM 019, rev.
- INSTRUCTIUNI PRIVIND UTILIZAREA MASINILOR DE RIDICAT(macarale, mecanisme de ridicat, stivuitoare, platforme autoridicatoare si platforme ridicatoare pentru persoane cu dizabilitati, elevatoare pentru vehicule si masini de ridicat de tip special) , cod: ISSM 022, rev. 02
- Instructiuni de exploatare a bateriilor/buteliilor cu gaze tehnice comprimate, lichefiate sau dizolvate sub presiune in afara retelei de distributie, cod: ISSM 025, rev. 01
- Instructiuni privind comunicarea evenimentelor, cod:ISSM 027, rev. 02
- Instructiuni pentru acordarea, purtarea si inlocuirea Echipamentului Individual de protectie (EIP) , cod:ISSM 030, rev.
- Instructiuni pentru testarea alcoolemiei, cod:ISSM 032, rev. 03
- Instructiune pentru marcare si mentinere cai de acces la nave, cod:ISSM 034, rev. 01
- Instructiune pentru deplasarea lucratorilor de acasa la locul de munca si invers, cod:ISSM 036, rev.
- INSTRUCTIUNE proprie pentru instruirea si verificarea lucratorilor/persoanelor pe linie de SSM/M, cod:ISSM 038, rev.
- INSTRUCTIUNE cu privire la efectele zgomotului asupra organismului, cod:ISSM 039, rev.
- INSTRUCTIUNE cu privire la efectele si combaterea pulberilor la locurile de munca, cod:ISSM 040, rev.
- Se vor respecta masuri de protectia si prevenire pentru factori de risc de la locul de munca.
- Instructiunile din fisa de securitate ale producatorului de echipamente/utilaje, scule, etc. cu care se lucreaza;
- Instructiunile de securitate ale producatorului de lichide, gaze, etc. tehnologice cu care se lucreaza.
- Instructiuni proprii privind masuri specifice de aparare impotriva incendiilor pentru locurile de munca si activitatile desfasurate pe teritoriul STX OSV TULCEA S.A. Nr.9200/897/18.03.2010.
- Instructiuni proprii privind obligatii generale in domeniul situatiilor de urgenta ale persoanelor juridice si ale salariatiilor ce desfasoare activitatea pe teritoriul STX OSV TULCEA S.A. Nr.9200/1620/27.03.2009.
- Instructiuni proprii privind reglementarea lucrului cu foc deschis si a fumatului inregistrate cu Nr,9200/828/11.02.2009.
- Instructiuni proprii privind instruirea salariatiilor in domeniul situatiilor de urgenta pentru sectorul de competenta Nr.9200/392/21.01.2009.
- Procedura de emitere,semnare,aducere la cunostinta si pastrare a permisului de lucru cu foc.
- Primul ajutor la locul accidentului : analiza situatiei, protejarea victimei, examinarea victimei, anuntarea accidentului, acordarea primului ajutor, supravegerea victimei si asteptarea sosirii echipei specializate.
- Instructiuni proprii privind instiintarea,avertizarea,prealarmarea si alarmarea persoanelor din sectorul de competenta,masuri si reguli de comportare in cazul aparitiei unor situatii de urgenta Nr.9200/676/02.02.2009.
Copyright © 2025 - Toate drepturile rezervate