MICROCENTRALE MURALE
LASER / MASTER 24 E, 24 SE, 29 E, 29 SE
 
 
CERTIFICATA TIP 'CE'
Nr. 0063AR4550
 
 
 
 
 
 
 
 
 
 
 
 
 
 
 
 
 
 
 
 
 
 
 
 
 
 
 
 
MANUAL
TEHNIC
 
 
 
 
 
   |   |   | 
 
 
   |  
  
    | 
 
 
   | 
 
 
   |   
     
     
     
     
     
     IMPORTANT - PUNEREA IN FUNCTIUNE A
    MICROCENTRALEI SI VALIDAREA GA- 
     RANTIEI TREBUIE
    SA FIE EFECTUATE DE PERSONAL SERVICE AU- 
     TORIZAT, IN CAZ
    CONTRAR SE VA ANULA GARANTIA.  
     
     
     
     
     
     
     
     
     
     
    CUPRINS
     
     
    RECOMANDARI  
    DATE TEHNICE 
     
    INSTRUCTIUNI PENTRU INSTALARE      
     
    INSTRUCTIUNI DE REGLARE SI INTRETINERE    
     
    INSTRUCTIUNI DE UTILIZARE      
     
     
     
     
     
    
     | 
   
  
   
 
 
 
 
 
 
 
 
 
 
 
 
 
 
 
 
 
 
 
 
 
 
 
 
 
 
 
 
 
 
 
 
 
 
 
 
 
 
 
 
 
 
 
 
 
 
 
 
 
 
 
 
 
 
 
 
 
 
 
 
 
 
 
 
 
 
 
 
 
 
 
 
 
 
 
 
 
 
 
 
 
 
 
 
 
 
 
 
 
 
 
 
 
 
 
 
 
 
 
 
 
 
 
 
 
 
 
 
 
 
 
 
 
 
 
 
 
 
 
 
 
 
 
 
 
 
 
 
 
 
 
 
 
 
 
 
 
 
 
 
 
 
 
 
 
 
 
 
 
 
 
 
 
 
 
 
 
 
 
 
 
 
 
 
 
 
 
 
 
 
 
 
 
 
 
 
 
 
 
 
 
 
 
 
 
 
 
 
 
 
 
 
 
 
 
 
 
 
 
 
 
 
 
 
 
 
 
 
 
 
 
 
 
 
 
 
 
 
 
 
 
 
 
 
 
 
 
 
 
 
 
 
 
 
 
 
 
 
 
 
 
 
 
 
 
 
 
 
 
 
 
 
 
 
 
 
 
 
 
 
 
 
 
 
 
 
 
 
 
 
 
 
 
 
 
 
 
 
 
 
 
 
 
 
 
 
 
 
 
 
 
 
 
 
 
 
 
 
 
 
 
 
 
 
 
 
 
 
 
 
 
 
 
 
 
 
 
 
 
 
 
 
 
 
 
 
 
 
 
 
 
 
 
 
 
 
 
 
 
 
 
 
 
 
 
 
 
 
 
 
 
 
 
 
 
 
 
 
 
 
 
 
 
 
 
 
 
 
 
 
 
 
 
 
 
 
 
 
 
 
 
 
 
 
 
 
 
 
 
 
 
 
 
 
 
 
 
 
 
 
 
 
 
 
 
 
 
 
 
 
 
 
 
 
 
 
 
 
 
 
 
 
 
 
 
 
 
 
 
 
 
 
 
 
 
 
 
 
 
 
 
 
 
 
 
 
 
 
 
 
 
 
 
 
 
 
 
 
 
 
 
 
 
 
 
 
 
 
 
 
 
 
 
 
 
 
 
 
 
 
 
 
 
 
 
 
 
 
 
 
 
 
 
 
 
 
 
 
 
 
 
 
 
 
 
 
 
 
 
 
 
 
 
 
 
 
 
 
 
 
 
 
 
 
 
 
 
 
 
 
 
 
 
 
 
 
 
 
 
 
 
 
 
 
 
 
 
 
 
 
 
 
 
 
 
 
 
 
 
 
 
 
 
 
 
 
 
 
 
 
 
 
   |   |   | 
 
 
   |  
  
    | 
 
 
   | 
 
 
   |   
     AERISIREA INCAPERII (obligatorie pentru modelele "E")  
     
    Atragem atentia asupra maximei importante ce o
    constituie aerisirea spatiului in care este instalata microcentrala.
    Aerisirea poate fi directa (cu priza de aer directionata din exterior) sau
    indirecta (cu priza de aer din spatiul inconjurator microcentralei), cu
    mentiunea ca trebuie respectate conditiile in-dicate de normativele in
    vigoare. 
     
    Decupari
    pentru aerisire, in peretii exteriori ai incaperii 
    Astfel de
    decupari trebuie sa corespunda urmatoarelor cerinte: 
    a)      sa aibe o sectiune libera de trecere de cel putin
    6 cm2 pentru fiecare kW de putere termica instalata, dar nu mai
    mica de 100 cm2; 
    b)      sa fie facute in asa mod incat, gurile de
    aerisire atat in interiorul cat si in exteriorul peretelui sa nu poata fi
    obturate. 
    c)      sa fie protejate (cu grilaje, plase metalice,
    etc.) astfel incat sectiunile pentru exploatare, mai sus mentionate, sa nu
    fie reduse; 
     sa fie
    pozitionate la o distanta medie de nivelul podelei si sa nu obstructioneze
    evacuarea gazelor arse  
     Daca
    in acelasi spatiu in care este instalata microcentrala, se afla o soba de
    gatit, aceas-ta trebuie sa aiba o sursa de aerisire proprie cu o
    deschizatura minima de 100 cm2, iar in cazul in care aceasta nu
    are dispozitivul de siguranta pentru lipsa de flacara, deschizatu-ra
    trebuie marita 100% ajungand la o sectiune minima totala de 200 cm2. 
      e) In scopul aerisirii indirecte asigurati-va ca spatiul alocat
    instalarii microcentralei, nu este des-  
     tinat dormitorului sau altor spatii pentru odihna si nu este o
    incapere ce prezinta pericole de 
     incendiu. 
     
      
     
    e microcentralei. 
     
     
     
     
     
     
     
     
     
     
     
     
     
     
     
     
     
     
     
     
     
     
     
     
     
     
     
     
     
     
     
     
     
     
     
     
     
     
     
     
     
     
     
     
     
     
     
     
     
     
     
     
     
     
     
     
     
     
     
     
     
     
     
     
     
     
     
     
     
     
     
     
     
     
     
     
     
     
     
     
     
     
     
     
     
     
     
     
     
     
     
     
     
     
     
     
     
     
     
     
     
     
     
     
     
     
    
     | 
   
  
   
 
 
 
 
 
 
 
 
 
 
 
 
 
 
 
 
 
 
 
 
 
 
 
 
 
 
 
 
 
 
 
 
 
 
 
 
 
 
 
 
 
 
 
 
 
 
 
 
 
 
 
 
 
 
 
 
 
 
 
   |   |   | 
 
 
   |   |  
  
    | 
 
 
   | 
 
 
   |  
  
   
    
    
     
      
     
     
     
    RACORDURI HIDRAULICE 
     
    INSTALATIA
    DE INCALZIRE  
     
    Asigurati-va
    ca presiunea hidraulica (apei de alimentare), masurata dupa o eventuala
    vana de re-ductie, nu este mai mare decat presiunea de lucru indicata pe
    placuta de timbru a aparatului (micro-centrala, boiler, etc.). 
    Avand in
    vedere faptul ca in timpul functionarii apa din instalatia de incalzire isi
    mareste presiunea, asigurati-va ca valoarea sa maxima sa nu depaseasca
    presiunea hidraulica maxima indicata pe pla-cuta de timbru a
    microcentralei. 
    
     - Racordati supapele de
         siguranta ale microcentralei la o palnie de evacuare legata la canali-
 
     
     zare. Daca nu racordati supapele de siguranta
    la canalizare, atunci cand acestea vor des-  
     carca
    presiunea, pot produce inundarea incaperii. In acest caz producatorul isi
    declina orice  
     responsabilitate. 
    
     - Verificati conductele
         instalatiei hidraulice si de incalzire sa nu fie folosite ca
         impamantare a instalatiei electrice. Nu sunt adecvate unei
         astfel de utilizari. 
 
     
     
     
     
     
     
     
     
     
     
     
     
     
     
     
     
     
     
     
     
     
     
     
     
     
     
     
     
     
     
     
     
     
     
     
     
     
     
     
     
     
     
     
     
     
     
     
     
     | 
    
    
    | 
 
 
 
 
 
 
 
 
 
 
 
 
 
 
 
 
 
 
 
 
 
 
 
 
 
 
 
 
 
 
 
 
 
 
 
 
 
 
 
 
 
 
 
 
 
 
 
 
 
 
 
 
 
 
 
 
 
 
 
   |   |   | 
 
 
   |  
  
    | 
 
 
   | 
 
 
   |   
     ALIMENTAREA
    CU APA CALDA SANITARA  
     
    Presiunea hidraulica din retea trebuie sa fie intre
    1 - 3 bari (in cazul in care se inregistreaza presiuni mai mari, instalati
    un reductor de presiune). Frecventa operatiilor de curatare depunerilor pe
    serpen-tina schimbatorului de caldura este determinata de duritatea apei de
    alimentare. 
    In functie de com-pozitia chimica a apei se va
    stabili daca este necesar sa se instaleze echipamente pentru tratarea apei. 
     
     
    UMPLEREA INSTALATIEI  
     
    Dupa ce s-au execuat toate racordurile
    instalatiei treceti la umplerea instalatiei cu apa. Aceasta ope-ratie
    trebuie efectuata cu grija, respectandu-se urmatoarele faze: 
    
     - Deschideti
         dezaeratoarele radiatoarelor;
 
     - Deschideti gradat robinetul de umplere al instalatiei (vezi
         figura) asigurandu-va ca eventuale-le dezaeratoare automate din
         instalatie functioneaza corect;
 
     - Inchideti dezaeratoarele radiatoarelor imediat ce incepe sa iasa
         apa;
 
     - Controlati cu un manometru ca presiunea sa ajunga la valoarea de
         1,5 bar; 
 
     - Inchideti robinetul
         de umplere si eliminati din nou aerul prin dezaeratoarele
         radiatoarelor.
 
     
     
    In
    cazul montarii microcentralei in incaperi unde temperatura ambianta poate
    ajunge sub 0 C, va re-comandam sa
    umpleti instalatia cu o solutie antiinghet. 
     
     
    
     
     
     
    RECOMANDARI SI SUGESTII PENTRU A
    EVITA APARITIA VIBRATIILOR SI A ZGOMOTELOR IN INSTALATII 
     
    
     - Evitati utilizarea
         conductelor cu diametre mai mici decat cele specificate in proiect;
 
     - Evitati utilizarea
         coturilor cu raza mica si a reductiilor cu diferente mari intre
         sectiuni;
 
     - In scopul eliminarii
         impuritatiilor provenite din conducte sau radiatoare (vaselina, ulei)
         care ar putea deteriora pompa de circulatie, se recomanda o spalare la
         cald a instalatiei.
 
     
     
     
     
     
     
     
     
     
     
     
     
     
     
     
     
     
     
     
     
     
     
     
     
     
     
     
     
     
     
     
     
     
     
     
     
     
     
     
     
     
    
     | 
   
  
   
 
 
 
 
 
 
 
 
 
 
 
 
 
 
 
 
 
 
 
 
 
 
 
 
 
 
 
 
 
 
 
 
 
 
 
 
 
 
 
 
 
 
 
 
 
 
 
 
 
 
 
 
 
 
 
 
 
 
 
 
 
 
 
 
 
 
 
 
 
 
 
 
 
 
 
 
 
 
 
 
 
 
 
 
 
 
 
 
 
 
 
 
 
 
 
 
 
 
 
 
 
 
 
 
 
 
 
 
 
 
 
 
 
 
 
 
 
 
 
 
 
 
 
 
 
 
 
 
 
 
 
 
 
 
 
 
 
 
 
 
 
 
 
 
 
 
 
 
 
 
 
 
 
 
 
 
 
 
 
 
 
 
 
 
 
 
 
 
 
 
 
 
 
   |   |   | 
 
 
   |   |  
  
    | 
 
 
   | 
 
 
   |  
  
   
    | 
     
     
     TIPURI
    DE EVACUARE A GAZELOR ARSE LA MICROCENTRALELE 
    CU TIRAJ FORTAT TIP SE
     
    
     
     
     
     
     
     
     
     
     
     
     
     
     
     
     
     
     
     
     
     
     
     
     
     
     
     
     
     
     
     
     
     
     
     
     
     
     
     
     
     
     
     
     
     
     
     
     
     
     
     
     
     
    
     | 
    
    
    | 
 
 
 
 
 
 
 
 
 
 
 
 
 
 
 
 
 
 
 
 
 
 
 
 
 
 
 
 
 
 
 
 
 
 
 
 
 
 
 
 
 
 
 
 
 
 
 
 
 
 
 
 
 
 
 
 
 
 
   
 
 
 
 
 
 
 
 
 
 
 
 
 
 
 
 
 
 
 
 
 
 
 
 
 
 
 
 
 
 
 
 
 
 
 
 
 
 
 
 
 
 
 
 
 
 
 
 
 
 
 
 
 
 
 
 
 
 
 
 
 
 
 
 
 
 
 
 
 
 
 
 
 
 
 
 
 
 
 
 
 
 
 
 
 
 
 
 
 
 
 
 
 
 
 
 
 
 
 
 
 
 
 
 
 
 
 
 
 
 
 
 
 
 
 
 
   |   |   | 
 
 
   |  
  
    | 
 
 
   | 
 
 
   |  
  
   
    
    
     
    REGLARE PUTERE MAXIMA SI
    PRODUCTIE MINIMA APA CALDA SANITARA 
     
    
     - Verificati daca presiunea de intrare in microcentrala este
         corecta pentru tipul de gaz dispo-nibil.
 
     - Pozitionati intrerupatorul 'Vara / Iarna' in pozitia
         'Vara'.
 
     - Deschideti robinetul de apa calda la debitul maxim, asteptati 10
         secunde apoi verificati ca presiunea sa corespunda valorii maxime
         indicate in tabelul "PUTERE / PRESIUNE".
 
     
     
    In cazul in care este necesar sa modificati
    reglarea, (facand referire la figura: 'Modul de reglare al
    modulatorului'), actionati dupa cum urmeaza: 
    
     
      - Verificati daca bobina de
          modulare este alimentata;
 
      - Indepartati capacul de
          protectie "C";
 
      - Reglati presiunea maxima
          actionand piulita "B" cu ajutorul unei chei de 10 mm. Ro-tind in sens orar presiunea creste, in sens antiorar scade;
 
      - Indepartati conectorul de alimentare electrica al bobinei;
 
      - Mentinand blocata piulita "B", reglati presiunea minima
          desuruband in mod progresiv surubul "A" cu ajutorul unei surubelnite
          de 4 mm;
 
      - Reintroduceti conectorul de
          alimentare al modulatorului si verificati daca valorile dori-te sunt
          corecte;
 
      
     
     
     
    IMPORTANT: Sigilati dispozitivul de reglare al
    supapei de gaz dupa ce a fost reglat.  
     
     
     
    REGLAREA APRINDERII LENTE 
     
    Pentru efectuarea reglarii aprinderii lente,
    actionati dupa cum urmeaza: 
    
     - Decuplati microcentrala de
         la reteaua electrica.
 
     - Rasuciti panoul de comanda
         dupa cum s-a indicat in capitolul "ACCESUL LA DISPOZITIVE-LE DE
         REGLARE".
 
     - Aduceti trimerul R.R. (vezi
         figura de la pag. 17) in pozitia "0" (rotindu-l in sens antiorar)
         folo-sind o surubelnita. De acum, aveti la dispozite 20 de secunde
         pentru a efectua reglajul (dupa ce ati alimentat microcentrala cu
         tensiune).
 
     - Alimentati cu tensiune microcentrala si deschideti robinetul de
         apa calda; arzatorul se va a-prinde permitandu-va sa controlati
         presiunea aprinderii lente.
 
     
    In cazul in care valorile
    indicate sunt diferite de: la GAZ METAN. = 3 mbar (30 mm c.a.) la G.P.L. =
    8 mbar (80 mm c.a.), rotiti potentiometrul R.L.A. - vezi figura de la
    pagina 17 - (in sens orar pentru a mari presiunea si in sens antiorar
    pentru a o reduce) pana la obtinerea unei valori corecte. 
    Daca cele 20 de secunde nu
    sunt suficiente pentru efectuarea reglajului, inchideti robinetul de apa
    calda, asteptati 5 secunde si redeschi-deti robinetul de apa calda; astfel
    veti obtine inca 20 secunde. 
     
     
     
     
     
     
     
     
     
     
     
     
     
     
     
     
     
     
     
     
     
     
     
     
     
     
     
     
     
     
     
     
     
     | 
    
    
    | 
 
 
 
 
 
 
 
 
 
 
 
 
 
 
 
 
 
 
 
 
 
 
 
 
 
 
 
 
 
 
 
 
 
 
 
 
 
 
 
 
 
 
 
 
 
 
 
 
 
 
 
 
 
 
 
 
 
 
 
   |   |   | 
 
 
   |   |  
  
    | 
 
 
   | 
 
 
   |   
    
     
     
     REGLAREA PUTERII DE INCALZIRE 
     
    Puterea maxima de incalzire trebuie reglata in
    baza necesitatii instalatiei termice (definita in proiect). Valoarea
    presiunii gazului ce corespunde puterii termice este indicata in tabelul
    "PUTERE TERMI-CA / PRESIUNE". Pentru
    a regla presiunea gazului la arzator actionati dupa cum urmeaza, facand,
    referinta la figura de mai sus: 
    
     - Rasuciti panoul de comanda
         dupa cum s-a indicat in capitolul "ACCESUL LA DISPOZITIVE-LE DE
         REGLARE";
 
     - Pozitionati intrerupatorul
         'Vara / Iarna' in pozitia 'Iarna' si reglati
         eventualul termostat de am-bianta la o temperatura mai ridicata decat
         cea existenta;
 
     - Aprindeti arzatorul si
         controlati valoarea presiunii maxime a gazului cu ajutorul
         manometrului;
 
     - Scoateti dopul de protectie
         al trimerilor de reglare (componenta 1 in figura de mai sus);
 
     - Reglati presiunea, rotind
         potentiometrul R.R. (componenta 3 din figura de mai sus) pana la
         obtinerea valorii dorite (conform tabelului);
 
     - Puneti la loc dopul de
         protectie al trimerilor;
 
     - Fixati la loc tabloul de
         comanda.
 
     
     
     
     
     
     
     
     
     
     
     
     
     
     
     
     
     
     
     
     
     
     
     
     
     
     
     
     
     
     
     
     
     
     
     
     
     
    
     | 
   
  
   
 
 
 
 
 
 
 
 
 
 
 
 
 
 
 
 
 
 
 
 
 
 
 
 
 
 
 
 
 
 
 
 
 
 
 
 
 
 
 
 
 
 
 
 
 
 
 
 
 
 
 
 
 
 
 
 
 
 
 
 
 
 
 
 
 
 
 
 
 
 
 
 
 
 
 
 
 
 
 
 
 
 
 
 
 
 
 
 
 
 
 
 
 
 
 
 
 
 
 
 
 
 
 
 
 
 
 
 
 
 
 
 
 
 
 
 
 
 
 
 
 
 
 
 
 
 
 
 
 
 
 
 
 
 
 
 
 
 
 
 
 
 
 
 
 
 
 
 
 
 
 
 
 
 
 
 
 
 
 
 
 
 
 
 
 
 
 
 
 
 
 
 
 
 
 
 
 
 
 
 
 
 
 
 
 
 
 
 
 
 
 
 
 
 
 
 
 
 
 
 
 
 
 
 
 
 
 
 
 
 
 
 
 
 
 
 
 
 
 
 
 
 
 
 
 
 
 
 
 
 
   |   |   | 
 
 
   |   |  
  
    | 
 
 
   | 
 
 
   |   
     SECTIUNEA HIDRAULICA  
     
    REGLAREA DEBITULUI DE ACS (modelele "LASER 24-29 E / SE" cu presostat
    diferential) 
     
    Microcentrala iese din fabrica cu reglajele
    facute. In caz de necesitate va
    recomandam sa efectuati reglarea debitului de ACS dupa cum urmeaza: 
    
     - Deschideti un robinet de apa
         calda sanitara, la debit maxim;
 
     - Puneti la iesirea din
         robinet un dispozitiv de masurare a debitului;
 
     - Actionati surubul de reglaj (1) pozitionat pe presostatul de
         prioritate ACS pentru a regla debi-tul la valoarea dorita.
 
     
    La modelele
    ce au montat un flusostat de prioritate, debitul maxim este limitat de un
    dispozitiv nere-glabil, la valoarea de 15 l / minut.  
      
     
    EXCLUDERE BY-PASS AUTOMAT 
     
    Toate modele din gama HERMANN sunt dotate din
    fabrica cu by-pass automat. In pozitia de deschi-dere totala (cu toate
    vanele de zona inchise) by-passul furnizeaza un debit de 450 l/h suficient
    pen-tru functionarea normala a microcentralei, nefiind necesara interventia
    dispozitivelor de siguranta. 
    Este
    posibil, in caz de nevoie, sa se excluda sau sa se inchida by-passul. Pentru
    aceasta, actionati dupa cum urmeaza: 
    
     - Rotiti selectorul 'Vara / Iarna' in pozitia "0";
 
     - Rotiti surubul by-pass-ului (vezi figurade mai jos) in sens
         orar, pana in pozita "B"; 
 
     - Rotiti selectorul 'Vara / Iarna' in pozitia
         'Iarna' pentru a reporni microcentrala. 
 
     
     
      
     
     
     
     
     
     
     
     
     
     
     
     
     
     
     
     
     
     
     
     
     
     
     
     
     
     
     
     
     
     
     
     
     
     
     
     
     
     
     
     
     
     
     
     
     
     
     
     
     
     
     
     
     
     
     
     
     
     
     
     
     
     
     
     
     
     
     
     
     
     
     
     
     
     
     
     
     
     
     
     
     
     
     
     
     
     
     
     
     
     
     
     
     
     
     
     
    
     | 
   
  
   
 
 
 
 
 
 
 
 
 
 
 
 
 
 
 
 
 
 
 
 
 
 
 
 
 
 
 
 
 
 
 
 
 
 
 
 
 
 
 
 
 
 
 
 
 
 
 
 
 
 
 
 
 
 
 
 
 
 
 
   |   |   | 
 
 
   |  
  
    | 
 
 
   | 
 
 
   |  
  
   
    
    
     
    SECTIUNEA ELECTRICA
     
    REGLARI ULTERIOARE EFECTUABILE PE PLACA DE MODULARE 
     
    Modelele
    "LASER 24-29E" si "MASTER 24-29E" sunt echipate cu o placa de modul
    integrata (con-trolata de un microprocesor) pe care se poate efectua (cu
    ajutorul puntilor mobile JP)unele operati-uni de personalizare a
    functionarii microcentralei. 
    Mai
    jos sunt indicate functiunile ce se pot efectua cu ajutorul puntilor
    mentionate anterior: 
    
     - JP 1 - Alege tipul de gaz cu
         care microcentrala sa functioneaze . Daca se utilizeaza GAZ 
 
     
     METAN
    puntea NU TREBUIE inserata (montata). Daca se foloseste GPL puntea tre- 
     buie inserata (montata). 
    
     - JP 2 - Inserarea (montarea)
         acesteia dezactiveaza pompa de circulatie din faza de incalzire. 
 
     
     Acest
    tip de functionare este necesar atunci cand se foloseste o pompa de
    circulatie 
     externa microcentralei
    (ex. pompa de circulatie de zona) si sunt comandate de o co- 
     manda de la distanta. 
    
     - JP 3 - Inserarea (montarea)
         acesteia fixeaza temperatura maxima de incalzire la 40 C
         si 
 
     
      stinge automat arzatorul atunci cand acesta
    depaseste cu 5 C valoarea fixata. 
    
     - JP 4 - Inserarea
         (montarea) acesteia elimina temporizarea de 3 minute inainte de
         repornirea, 
 
     
     arzatorului,
    dupa ce s-a depasit temperatura fixata pe incalzire (temperatura
    gazelor 
     arse). 
    La producerea de apa calda sanitara, stingerea
    arzatorului este programata sa se faca la tempera-tura 'T maxim' = 75sC (prin intermediul puntii
    JP 5 - montata).  
    Prin scoaterea (taierea) puntii JP 5, temperatura
    maxima la care se va opri arzatorul (in cazul produ-cerii apei calde
    sanitare) este 'T reglat' + 5 sC. 
    T reglat = temperatura reglata din termostatul de
    reglaj ACS, de pe panoul de comanda. 
    La modelele LASER (microcentrala cu
    preparare instantanee) puntea fixa JP6 trebuie sa fie mereu inchisa,
    adica inserata. 
    La modelele MASTER puntea fixa JP6
    trebuie sa ramana mereu deschisa, adica scoasa.  
     
     
    RECOMANDARI PENTRU INTRETINERE 
     
    Toate
    operatiunile de intretinere si de trecere de la un combustibil la altul TREBUIE
    EFECTUATE DE CATRE PERSONAL SPECIALIZAT SI AUTORIZAT, conform normelor
    in vigoare. 
    Operatiunile
    de intretinere se vor efectua cel putin odata pe an respectand normele in
    vigoare. 
    La sfarsitul
    fiecarui ciclu de incalzire este necesar ca personalul autorizat sa
    verifice microcentrala cu scopul de a avea o instalatie in perfecta stare
    de functionare. 
     
    In mod normal trebuie efectuate urmatoarele
    operatiuni: 
     Curatarea eventualelor oxidari la
    arzator; 
     Curatarea
    depunerilor de pe schimbatorii de caldura si de pe electozii de aprindere; 
     Controlul
    pornirii, opririi si exploatarii microcentralei; 
     Controlul
    racordurilor si a conductelor de gaz si apa; 
     Controlul
    consumului de gaz la puterea maxima si minima; 
     Verificarea functionarii
    dispozitivelor de siguranta; 
     Verificarea bunei functionari a
    dispozitivelor de comanda si reglajul microcentralei; 
     Verificarea periodica bunei
    functionari si starea in care se afla conducta si / sau dispozitivul de
    evacuare a gazelor arse; in cazul executiei de lucrari de intretinere a
    structurilor situate in apropierea cosurilor de fum si / sau a
    dispozitivelor de evacuare a gazelor arse si a respec-tivelor accesorii,
    opriti microcentrala;  
    
    
     - Nu efectuati curatirea
         incaperii in care este montata microcentrala cand acesta este in
         functi-une. Efectuarea
         operatiunilor de intretinere inseamna, economie de combustibil si
         siguranta in exploatare;
 
     
     
     
     
     
     
     
     
     
     
     
     
     
     
     
     
     
     
     
     
     
     
     
     
     
     
     
     
     
     
     
     
     
     
     
     
     
     
     
     
     
     
     
     
     
     | 
    
    
    | 
 
 
 
 
 
 
 
 
 
 
 
 
 
 
 
 
 
 
 
 
 
 
 
 
 
 
 
 
 
 
 
 
 
 
 
 
 
 
 
 
 
 
 
 
 
 
 
 
 
 
 
 
 
 
 
 
 
 
 
 
 
 
 
 
 
 
 
 
 
 
 
 
 
 
 
 
 
 
 
 
 
 
 
 
 
 
 
 
 
 
 
 
 
 
 
 
 
 
 
 
 
 
 
 
 
 
 
 
 
 
 
 
 
 
 
 
   |   |   | 
 
 
   |  
  
    | 
 
 
   | 
 
 
   |  
  
   
    
    
     
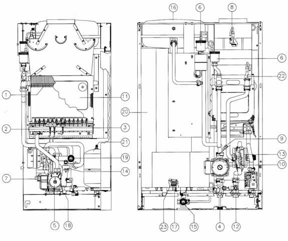
    SCHEMA
    EXPANDATA MODEL LASER 24-29 E
     
    
     -  Schimbator din cupru - circuit primar
         
 
     -  Aprindere electronica arzator si
         control flacara cu tija de ionizare
 
     -  Arzator
 
     -  Robinet de umplere instalatie
 
     -  Vana de gaz (electroventil)
 
     -  Dezaerator automat
 
     -  Termostat de siguranta - temperatura
         maxima apa
 
     -  Camera de ardere
 
     -  Senzor termostat - incalzire carcasa 
 
     -  Pompa de circulatie
 
     -  Dezaerator boiler
 
     -  Robinet de golire instalatie
 
     -  Termostat de gaze arse
 
     -  Presostat de prioritate
         (sau in alternativa flusostat de prioritate) ACS
 
     -  Electrovana
         deviatoare
 
     -  Sonda ACS (termostat)
 
     
     
      
     
     
     
     
     
     
     
     
     
     
     
     
     
     
     
     
     
     
     
     
     
     
     
     
     
     
     
     
     
     
     
     
     
     
     
     
     
     
     
     
     
     
     
     
     
     
     
     
     
     
     
     
     
     
     
     
     
     
     
     
     
     
     
     
     
     
     
     
     
     
     
     
     
     
     
     
     
     
     
     
     
     
     
     
     
     
     
     
     
     
     
     
     
     
     
     
     
     
     
     
     
     
     
     
     
     
     
     
     
     
     
     
     
     
     
     
     
     
     
     
     
     
     
     
     
     
     
     
     
     
     
     
     
     
     
     
     
     
     
     
     
     
     
     
     
     
     
     
     
     
     
     
     | 
    
    
    | 
 
 
 
 
 
 
 
 
 
 
 
 
 
 
 
 
 
 
 
 
 
 
 
 
 
 
 
 
 
 
 
 
 
 
 
 
 
 
 
 
 
 
 
 
 
 
 
 
 
 
 
 
 
 
 
 
 
 
 
   |   |   | 
 
 
   |   |  
  
    | 
 
 
   | 
 
 
   |  
  
   
    
    
     
    SCHEMA
    EXPANDATA MODEL LASER 24-29 SE
     
    
     -  Schimbator din cupru - circuit primar
         
 
     -  Aprindere electronica arzator si
         control flacara cu tija de ionizare
 
     -  Arzator
 
     -  Robinet de umplere instalatie
 
     -  Vana de gaz (electroventil)
 
     -  Dezaerator automat
 
     -  Termostat de siguranta - temperatura
         maxima apa
 
     -  Camera de ardere
 
     -  Sonda incalzire interna
         carcasa (termostat)
 
     -  Pompa de circulatie
 
     -  Camera etansa
 
     -  Robinet de golire instalatie
 
     -  Presostat de gaze arse
 
     -  Ventilator
 
     -  Electrovana deviatoare
 
     -  Presostat de prioritate
         (sau in alternativa flusostat de prioritate) ACS
 
     -  Sonda ACS (termostat)
 
     -  Schimbator circuit ACS
 
     
     
      
     
     
     
     
     
     
     
     
     
     
     
     
     
     
     
     
     
     
     
     
     
     
     
     
     
     
     
     
     
     
     
     
     
     
     
     
     
     
     
     
     
     
     
     
     
     
     
     
     
     
     
     
     
     
     
     
     
     
     
     
     
     
     
     
     
     
     
     
     
     
     
     
     
     
     
     
     
     
     
     
     
     
     
     
     
     
     
     
     
     
     
     
     
     
     
     
     
     
     
     
     
     
     
     
     
     
     
     
     
     
     
     
     
     
     
     
     
     
     
     
     
     
     
     
     
     
     
     
     
     
     
     
     
     
     
     
     
     
     
     
     
     
     
     
     
     
     
     
     
     
     
     
     | 
    
    
    | 
 
 
 
 
 
 
 
 
 
 
 
 
 
 
 
 
 
 
 
 
 
 
 
 
 
 
 
 
 
 
 
 
 
 
 
 
 
 
 
 
 
 
 
 
 
 
 
 
 
 
 
 
 
 
 
 
 
 
 
   |   |   | 
 
 
   |  
  
    | 
 
 
   | 
 
 
   |  
  
   
    
    
     
    SCHEMA EXPANDATA MODEL MASTER 24-29 E 
     
    
     -  Schimbator din cupru -
         circuit primar
 
     -  Aprindere electronica arzator
         si control flacara cu tija de ionizare
 
     -  Arzator
 
     -  Robinet de umplere
         instalatie
 
     -  Vana de gaz
         (electroventil)
 
     -  Dezaerator automat
 
     -  Modulator
 
     -  Termostat de siguranta -
         tiraj cos
 
     -  Senzor termostat -
         incalzire carcasa 
 
     -  Pompa de circulatie
 
     -  Camera de ardere
 
     -  Robinet de golire instalatie
 
     -  Electrovana deviatoare
 
     -  Presostat lipsa apa
 
     -  Supapa de siguranta de 8 bar pe
         circuitul de ACS
 
     -  Vas de expansiune pentru circuitul de
         incalzire
 
     -  Robinet de golire
         boiler
 
     -  By-pass instalatie
 
     -  Supapa de siguranta de 3 bar pe
         circuitul de incalzire
 
     -  Vas de acumulare
         pentru boiler
 
     - Vas de expansiune ACS
 
     -  Termostat de siguranta - temperatura
         maxima apa - incalzire
 
     -  Senzor ACS - termostat
 
     
     
      
     
     
     
     
     
     
     
     
     
     
     
     
     
     
     
     
     
     
     
     
     
     
     
     
     
     
 
     
     
     
     
     
     
     
     
     
     
     
     
     
     
     
     
     
     
     
     
     
     
     
     
     
     
     
     
     
     
     
     
     
     
     
     
     
     
     
     
     
     
     
     
     
     
     
     
     
     
     
     
     
     
     
     
     
     
     
     
     
     
     
     
     
     
     
     
     
     
     
     
     
     
     
     
     
     
     
     
     
     
     
     
     
     
     
     
     
     
     
     
     
     
     
     
     
     
     
     
     
     
     
     
     
     
     
     
     
     
     | 
    
    
    | 
 
 
 
 
 
 
z 
 
 
 
 
 
 
 
 
 
 
 
 
 
 
 
 
 
 
 
 
 
 
 
 
 
 
 
 
 
 
 
 
 
 
 
 
 
 
 
 
 
 
 
 
 
 
 
 
 
 
 
 
   |   |   | 
 
 
   |   |  
  
    | 
 
 
   | 
 
 
   |  
  
   
    
    
     
    SCHEMA EXPANDATA MODEL MASTER 24-29 SE 
     
    
     -  Schimbator din cupru -
         circuit primar
 
     -  Aprindere electronica
         arzator si control flacara cu tija de ionizare
 
     -  Arzator
 
     -  Robinet de umplere
         instalatie
 
     -  Vana de gaz
         (electroventil)
 
     -  Dezaerator automat
 
     -  Modulator
 
     -  Vizor camera de ardere
 
     -  Sonda incalzire interna carcasa
         (termostat)
 
     -  Pompa de circulatie
 
     -  Camera etansa
 
     -  Robinet de golire instalatie
 
     -  Presostat de gaze arse
 
     -  Ventilator
 
     -  Electrovana deviatoare
 
     -  Presostat lipsa apa
 
     -  Supapa de siguranta 8 bar pe
         circuitul de ACS
 
     -  Vas de expansiune pentru circuitul de
         incalzire
 
     -  Vas de expansiune -
         circuit ACS
 
     -  Sonda ACS (termostat)
 
     -  By-pass instalatie
 
     -  Supapa de siguranta 3 bar pe
         circuitul de incalzire
 
     -  Vas de acumulare
         pentru boiler
 
     -  Termostat de siguranta -
         temperatura maxima apa
 
     -  Robinet de golitre boiler 
 
     
     
      
     
     
     
     
     
     
     
     
     
     
     
     
     
     
     
     
     
     
     
     
     
     
     
     
     
     
     
     
     
     
     
     
     
     
     
     
     
     
     
     
     
     
     
     
     
     
     
     
     
     
     
     
     
     
     
     
     
     
     
     
     
     
     
     
     
     
     
     
     
     
     
     
     
     
     
     
     
     
     
     
     
     
     
     
     
     
     
     
     
     
     
     
     
     
     
     
     
     
     
     
     
     
     
     
     
     
     
     
     
     
     
     
     
     
     
     
     
     
     
     
     
     
     
     
     
     
     
     
     
     
     
     
     
     
     
     
     | 
    
    
    | 
 
 
 
 
 
 
 
 
 
 
 
 
 
 
 
 
 
 
 
 
 
 
 
 
 
 
 
 
 
 
 
 
 
 
 
 
 
 
 
 
 
 
 
 
 
 
 
 
 
 
 
 
 
 
 
 
 
 
 
 
 
 
 
 
 
 
 
 
 
 
 
 
 
 
 
 
 
 
 
 
 
 
 
 
 
 
 
 
 
 
 
 
 
 
 
 
 
 
 
 
 
 
 
 
 
 
 
 
 
 
 
 
 
 
 
 
 
 
 
 
 
 
 
 
 
 
 
 
 
 
 
 
 
 
 
 
 
 
 
 
 
 
 
 
 
 
 
 
 
 
 
 
 
 
 
 
 
 
 
 
 
 
 
 
 
 
 
 
 
 
 
 
 
 
 
 
 
 
 
 
 
 
 
 
 
 
 
 
 
 
 
 
 
 
 
 
 
 
 
 
 
 
 
 
 
 
 
 
 
 
 
 
 
 
 
 
 
 
 
 
 
 
 
 
 
 
 
 
 
 
 
 
 
 
 
 
 
 
 
 
 
 
 
 
 
 
 
 
 
 
 
 
 
 
 
 
 
 
 
 
 
 
 
 
 
 
 
 
 
 
 
 
 
 
 
 
 
 
 
 
 
 
 
 
 
 
 
 
 
 
 
 
 
 
 
 
 
 
 
 
 
 
 
 
 
 
 
 
 
 
 
 
 
 
 
 
 
 
 
 
 
 
 
 
 
 
 
 
 
 
 
 
 
 
 
 
 
 
 
 
 
 
 
 
 
 
 
 
 
 
 
 
 
 
 
 
 
 
 
 
 
 
 
 
 
 
 
 
 
 
 
 
 
 
 
 
 
 
 
 
 
 
 
 
 
 
 
 
 
 
 
 
 
 
 
 
 
 
 
 
 
   |   |   | 
 
 
   |  
  
    | 
 
 
   | 
 
 
   |  
  
   
    
    
     
      
     
     
    REGLAREA TEMPERATURII AMBIENTE 
    Este preferabil ca in incaperile unde vor fi
    montate microcentralele este bine sa montati un termostat de ambient cu
    doua nivele.  
     
     
    UMPLEREA INSTALATIEI 
    Asigurati-va ca presiunea microcentralei este
    cuprinsa intre 1 - 1,5 bar; in cazul in care presiunea este mai mica de 1
    bar, deschideti robinetul de umplere (vezi figura) pana la obtinerea unei
    valori maxime de 1,5 bar; aceasta valoare se controleaza cu ajutorul
    manometrului (componenta 5 din fi-gura de mai sus). 
     
    NOTA Presiunea necesara se realizeaza cu
    instalatia la rece. 
     
      
     
     
     
     
     
     
     
     
     
     
     
     
     
     
     
     
     
     
     
     
     
     
     
     
     
     
     
     
     
     
     
     
     
     
     
     
     
     
     
     
     
     
     
     
     
     
     
     
     
     
     
     
     
     
     
     
     
     
     
     
     
     
     
     
     
     
     
     
     
     
     
     
     
     
     
     
     
     
     
     
     
     
     
     
     
     
     
     
     
     
     
     
     
     
     
     
     
     
     
     
     
     
     
     
     
     
     
     
     
     
     
     
     
     
     
     
     
     
     
     
     
     
     
     
     
     
     
     
     
     
     
     
     
     
     
     
     
     
     
     
     
     
     
     
     
     
     
     
     
     
     
     | 
    
    
    | 
 
 
 
 
 
 
 
 
 
 
 
 
 
 
 
 
 
 
 
 
 
 
 
 
 
 
 
 
 
 
 
 
 
 
 
 
 
 
 
 
 
 
 
 
 
 
 
 
 
 
 
 
 
 
 
 
 
 
 
 
 
 
 
 
 
 
 
 
 
 
 
 
 
 
 
 
 
 
 
 
 
 
 
 
 
 
 
 
 
 
 
 
 
 
 
 
 
 
 
 
 
 
 
 
 
 
 
 
 
 
 
 
 
 
 
 
 
 
 
 
 
 
 
 
 
 
 
 
 
 
 
 
 
 
 
 
 
 
 
 
 
 
 
 
 
 
 
 
 
 
 
 
 
 
 
 
 
 
 
 
 
 
 
 
 
 
 
 
 
 
 
 
 
 
 
 
 
 
 
 
 
 
 
 
 
 
 
 
 
 
 
 
 
 
 
 
 
 
 
 
 
 
 
 
 
 
 
 
 
 
 
 
 
 
 
 
 
 
 
 
 
   |   |   |   | 
 
 
   |  
  
    | 
 
 
   |   |  
  
   
    
    
    ROMSTAL,
    Bucuresti, Sos. Vitan-Barzesti 11A, sector 4 
    tel/fax:
    (01)332.09.01, (01)334.94.63 
    E-mail: office@romstalb.ro Internet: www.romstal.ro 
     
     
     | 
    
    
    | 
 
 
   |