![]()  |  Aeronautica | Comunicatii | Constructii | Electronica | Navigatie | Pompieri | 
| Tehnica mecanica | 
MANUALUL UTILIZATORULUI
CARTE TEHNICA DE INSTALARE CIAT: N 00.23A
CENTRALA DE TRATARE DE PLAFON FALS SERIA 'CLUB'
Aparatul este ambalat intr-un film de polietilena format la cald pe un palet.
Pachete aditionale pot fi ambalate in acelasi film pe acelasi palet.
a) Manevrare
Marfa ambalata trebuie manevrata cu grija cu motostivuitoare sau stivuitoare manuale.
a) Lista coletelor / autentificare
In conformitate cu descrierea tehnica din catalogul Nr. 1 CIAT, componentele centralei de tratare a aerului si orice alte accesorii sunt prevazute in lista coletelor si "CERTIFICATE OF INCORPORATION", care pot fi gasite in ambalajul centralei.

 
b) Codurile modulelor de baza (reprezentare schematica).
c) Codurile modulelor optionale sau accesoriilor (reprezentare schematica).
| 
    SCHEMA  |  
    CLUB  |  
    DESCRIERE  | 
  |
| 
   
  |  
   RA  |  
   Clapeta reglaj / introducere aer  | 
 |
| 
   
  |  
   CM 12  |  
   Cutie de amestec - 2 cai  | 
 |
| 
   
  |  
   CM 23  |  
   Cutie de amestec - 2 cai  | 
 |
| 
   
  |  
   CM 13  |  
   Cutie de amestec - 2 cai  | 
 |
| 
   
  |  
   CM 3  |  
   Cutie de amestec - 3 cai  | 
 |
| 
   
  |  
   PLC  |  
   Plenum la 90o - aspiratie sau refulare aer  | 
 |
| 
   
  |  
   PLD  |  
   Plenum drept - aspiratie sau refulare aer  | 
 |
| 
   
  |  
   PLM  |  
   Plenum refulare cu racorduri circulare  |  
   De la marimea 15 la 40  | 
 
| 
   
  |  
   CFA  |  
   Modul filtru aditional G4  | 
 |
| 
   
  |  
   CFP 1 sau CFP 2  |  
   Modul fitru cu buzunare  | 
 |
| 
   
  |  
   CBE  |  
   Modul baterie electrica aditionala  | 
 |
| 
   
  |  
   CFV  |  
   Modul baterie racire - verticala  | 
 |
| 
   
  |  
   CPS  |  
   Atenuator de zgomot  | 
 |
| 
   
  |  
   2 x MAS  |  
   Racorduri flexibile pentru cutia de amestec (pereche)  | 
 |
| 
   
  |  
   MAS  |  
   Manson flexibil - aspiratie sau refulare  | 
 |
| 
   CLUB 12-22-60  |  
   BCM 1*  |  
   Cutie de comanda manuala - 3 viteze Oprit / Pornit  | 
 |
| 
   CLUB 40  |  
   BCM 2  |  
   Cutie de comanda manuala - 3 viteze Oprit / Pornit  | 
 |
* BCM 1 pentru CLUB 60 cuprinde si un releu precablat.
d) Marcaj - identificarea pictogramelor (etichetelor)
Centralele de
tratare aer sunt marcate astfel :
| 
   DESCRIERE  |  
   NR. IN PLAN  | 
 
| 
   1 - intrare fluid  |  
   H 787 804  | 
 
| 
   2 - iesire fluid  |  
   H 787 805  | 
 
| 
   3 - sensul aerului  |  
   H 787 806  | 
 
| 
   4 - placa numar serie  |  
   H 081 300  | 
 
| 
   5 - marca CIAT  |  
   L 91 730  | 
 
| 
   6 - racord evacuare condens  |  
   J 071 400  | 
 
| 
   7 - eticheta siguranta electrica  |  
   Z 592 003  | 
 
e) Placa de identificare
Placile de identificare sunt prevazute pe toate modulele de baza si pe carcasa bateriei electrice de incalzire:
Acestea contin:
Nr. Comanda - descriere
Caracteristici motor
Incalzire electrica
Caracteristici fluid
Greutatea aparatului
Anul fabricatiei
Unitatile de baza si modulele aditionale sunt furnizate cu un pachet de accesorii si o lista de accesorii.
(vezi Catalog CIAT nr. 1)
Atentie : limite temperaturi AER TRATAT in utilizare
T refulare minim : + 5 oC (verificati compatibilitatea cu T ambiant)
T refulare maxim : + 50 oC
In functie de tipul de aparat care a fost comandat (S, H sau V) centralele CLUB se pot monta :
sau la sol (S);
sau la plafon (H);
sau vertical (V).
Intotdeauna se va prevedea un spatiu minim pentru deschiderea usii, cat si pentru scoaterea filtrului.
spatiul minim 250 mm
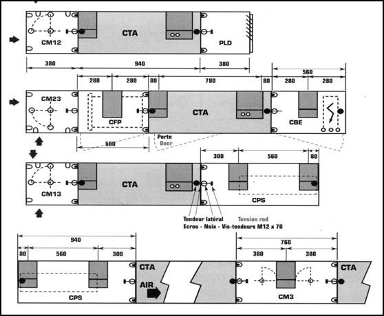
In functie de modul de manevrare pe santier, modulul de baza poate fi mai intai fixat pe plafon si apoi pot fi conectate modulele aditionale la el si deasemenea fixate pe plafon, sau modulele aditionale pot fi conectate mai intai la modulul de baza si apoi se fixeaza modulul complet pe plafon.

Fixati corect
garnitura de PVC in rama de conectare a modulului aditional. Introduceti
urechile de prindere in modulul de baza (numai pentru CLUB 40 si 60).
Pozitionati modulul aditional pe modulul de baza si strangeti piesele laterale
pe ambele parti.
DIFERITE TIPURI DE CONECTARI
ALE MODULULUI DE BAZA CU MODULE 
ADITIONALE
Modulul de baza si modulele aditionale CM3 - CFP - CBE - CFV - CPS sunt furnizate cu suporti cu elemente de fixare prevazute cu materiale antivibratile. Spatiul din interiorul suportului este suficient pentru strangerea surubului. Unul din cei 4 suporti cuprinde conexiunile electrice.
Vezi figurile de pe pagina urmatoare

 

 
Pentru CM2, PLD PLC, PLM si CFA nu sunt prevazuti suporti.
Toate sistemele de tubulatura trebuie proiectate si montate pentru a functiona corect. Sistemele de tubulatura nu ar trebui sa aiba pierderi mai mari decat cele prevazute.
Atentia este atrasa spre nivelele de zgomot indicate in cartea tehnica. Nivelele de zgomot sunt diferite pentru unitatile de tubulatura fata de cele care nu sunt de tubulatura vezi mai jos. Va rugam referiti-va la detaiile date in cotatia noastra. Cand exista posibilitatea folositi intotdeauna suporti antivibranti si mansete flexibile.
Toate sistemele de conducte ar trebui proiectate si montate pentru a functiona bine. O atentie deosebita trebuie acordata folosirii ventilelor de aerisire, golire, elementelor de sustinere, izolatiei si valvelor de echilibrare.
Turul si returul bateriei de incalzire / racire trebuie dimensionate corect, functie de racordul marcat pe unitate.
Cand se realizeaza un racord filetat, acesta trebuie astfel facut incat sa nu introduca tensiuni in corpul bateriei.
Fiecare baterie aprovizionata si fixata in interiorul unitatii a fost testata hidraulic cu o solutie de glicol / apa pentru a asigura protectia la inghet.
POZITIA RACORDURILOR LA CONDUCTELE DE APA (PENTRU UNITATILE DE PLAFON)

 
| 
   CLUB  |  
   A  |  
   B  |  
   C  |  
   D  |  
   E  |  
   F  |  
   G  |  
   H  |  
   J  |  
   K  |  
   L  |  
   M  |  
   N  |  
   P  |  
   RACORD  | 
 |
| 
   Q  | 
 ||||||||||||||||
| 
    |  ||||||||||||||||
Toleranta dimensiunilor: 5 mm.
Racordul de evacuare a condensului
Scurgerea va fi realizata in conformitate cu urmatorul desen. Pentru o presiune negativa "H" raportata la fata bateriei de racire, garda hidraulica trebuie sa fie echivalentul a cel putin "2H".
SCHEMA DE PRINCIPIU A SIFONULUI
 
  
    
  
   
    
   
 
Conexiunile electrice trebuie sa fie facute in cutia racordurilor electrice care este deja precablata spre motor. Cutia racordurilor electrice este pozitionata intr-unul din cele 4 suporti.
In functie de debitul de aer necesar si de presiunea statica exterioara, reglajul poate fi facut cu cele 3 viteze ale motorului pentru CLUB 15 si 5 viteze ale motorului pentru CLUB 22 - 40 si 60.
Racord direct pentru 1 viteza : V2 de exemplu.
Racord pentru 2 sau 3 viteze folosind comutatorul manual pentru 3 viteze + Oprire (Optional).
v ALIMENTAREA ELECTRICA 230 V / 1 Faza / 50 Hz
| 
   Puterea motorului (W)  |  
   Intensitatea maxima (A)  |   
   V1  |  
   
   V2  |  
   
   V3  |  
   
   V4  |  
   Viteza min. V5  |  ||||||
| 
   CLUB 15  |  
   420 W  |  
   3 A  |  
   2 A  |  
   1,2 A  |  
   X  |  
   X  |  
  | 
  
 |||||
| 
   CLUB 22  |  
   550 W  |  
   5,2 A  |  
   4,4 A  |  
   3,7 A  |  
   2,9 A  |  
   2,4 A  |  
  | 
  
 |||||
| 
   CLUB 40  |  
   2 x 550 W  |  
   10,4 A  |  
   8,8 A  |  
   7,4 A  |  
   5,8 A  |  
   4,8 A  |  
  | 
  
 |||||
| 
   CLUB 60  |  
   3 x 550 W  |  
   15,6 A  |  
   13,2 A  |  
   11,1 A  |  
   8,7 A  |  
   7,2 A  |  
  | 
  
 |||||
v RACORDURILE ELECTRICE

Alegerea
treptelor de viteza 3 pozitii + Oprire
v COMUTATOR DE TREPTE DE VITEZA
Schema electrica de conexiuni pentru racordarea unui comutator cu 3 viteze:

 
Bateria de incalzire electrica poate fi alcatuita dintr-un modul 1 in 2 trepte, inclus in unitatea de baza si un modul 2, in 2 trepte, similar cu modulul 1 si inclus in unitatea aditionala CBE.
Pentru fiecare modul ecartul de temperatura intrare/iesire pentru debitul nominal este de 18 °K.
Bateria electrica de incalzire va functiona numai cand ventilatorul este pornit.
Puterea termica a bateriei trebuie sa fie proportionala cu debitul de aer ce trece prin aceasta.
Ventilatorul va fi prevazut cu un temporizator astfel incat sa functioneze cel putin 3 minute dupa ce bateria electrica a fost oprita.
Deasemenea, este recomandabil a se instala un sistem de control al debitului de aer (flusostat, etc.) pentru a preveni functionarea bateriei in cazul in care nu exista suficient debit de aer.
CIAT isi declina orice responsabilitate daca acesta recomandare este ignorata.

 
Un presostat diferential va fi prevazut pentru a opri bateria electrica in cazul in care nu exista debit de aer.
Un termostat de securitate cu rearmare manuala este prevazut pentru bateria electrica de incalzire. Trebuie sa fie intotdeauna racordat. Rolul acestuia este de a opri bateria electrica in cazul unei cresteri accidentale a temperaturii in jurul a 100 °C.
Inainte de resetare, motivul accidentului trebuie descoperit si trebuie luate masuri corective.
Bateria electrica de incalzire trebuie racordata in conformitate cu diagrama electrica (vezi pagina anterioara).
Verificari ce sunt facute inainte de prima pornire sau repornire dupa o lunga perioada de timp. (De exemplu - intre 2 sezoane de incalzire sau racire).
Carcase aditionale
RA Verificati gradul de strangere al pieselor de etansare ale unitatii de baza. Verificati conditiile si funtionarea corecta a tuturor componentelor in miscare. Cand lamele sunt fixate intr-o pozitie verificati ca acestea sa fie bine mentinute.
CM2 Verificati gradul de strangere al pieselor de etansare ale unitatii de baza. Verificati conditiile si funtionarea corecta a tuturor componentelor in miscare.
CM3 Cand lamele sunt fixate intr-o pozitie verificati ca acestea sa fie bine mentinute.
v DIFERITE POZITII DE MONTAJ PENTRU "CM3" CUTIE DE AMESTEC CU 3 CAI

 
Legenda la figura de mai sus
MONTAJ LA PLAFON - RACORD SUB TUBULATURA
MONTAJ LA PLAFON - RACORD DEASUPRA TUBULATURII
MONTAJ PE PARDOSEALA - RACORD DEASUPRA TUBULATURII
NOTA: Cutia de amestec cu 3 cai este aceeasi pentru cele 3 tipuri de montari. Un tip diferit de element de strangere este furnizat pentru tipul de montaj nr. 2.
| 
   MODEL  |  
   CLUB 15  |  
   CLUB 22  |  
   CLUB 40  |  
   CLUB 60  |  
   UNITE  | 
 
| 
   RA Pierderi mici de aer Lame de aluminiu  |  
   Nm  | 
 ||||
| 
   CM2 Lame de aluminiu  |  
   Nm  | 
 ||||
| 
   CM3 Lame de aluminiu  |  
   Nm  | 
 
Carcase aditionale (continuare)
PLD/PLC/ PLM Verificati gradul de etansare al plenumurilor fixate pe unitatea de baza.
CFA Verificati gradul de strangere al elementelor de fixare pe unitatea de baza.
CFP1 /CFP2 Verificati conditia si instalarea corecta a filtrului (-elor). Inlocuiti daca este necesar. Verificati inchiderea usii de acces.
Filtrele sunt prevazute cu prize de presiune la care se poate conecta un manometru sau un presostat diferential (dupa altii).
Verificati pierderea de presiune a filtrului curat si incarcat.
CBE Verificati gradul de strangere al elementelor de fixare pe unitatea de baza.
Verificati prezenta si gradul de etansare al capacului de protectie al cutiei de legaturi electrice. Verificati racordurile la dispozitivele de siguranta.
Termostat cu rearmare manuala;
Flusostat pentru debitul de aer;
Temporizator pentru ventilator;
Impamantare.
v DIAGRAMA RACORDURILOR ELECTRICE A BATERIEI ELECTRICE DE INCALZIRE

 
Carcase aditionale (continuare)
CPS Verificati gradul de strangere al elementelor de fixare pe unitatea de baza.
CFV Verificati starea racordurilor tevilor. Verificati daca racordul la scurgere este facut si daca este corect. Verificati separatorul de picaturi. Verificati daca nu exista corpuri straine care sa obtureze scurgerea condensului. Verificati daca tavita de condens este curata.
UNITATEA DE BAZA
Verificati gradul de fixare al suportilor.
Filtrul : verificati daca exista, daca este corect pozitionat si in bune conditii.
Bateria de apa : Verificati starea racordurilor tevilor. Verificati daca racordul la scurgere este facut si daca este corect. Verificati separatorul de picaturi. Verificati daca nu exista corpuri straine care sa obtureze scurgerea condensului. Verificati daca tavita de condens este curata.
Racordul ventilatorului : Verificati daca impamantarea a fost facuta si rotorul se poate roti liber.
Bateria electrica de incalzire : Verificati gradul de strangere al elementelor de fixare pe unitatea de baza. Verificati prezenta si gradul de etansare al capacului de protectie al cutiei de legaturi electrice. Verificati racordurile la dispozitivele de siguranta.
Termostat cu rearmare manuala;
Flusostat pentru debitul de aer;
Temporizator pentru ventilator;
Impamantare.
 
In final, faceti o inspectie generala a curateniei unitatii si a filtrului inainte de a da comanda de pornire.
Punerea in functiune trebuie facuta de cate o persoana competenta.
Mai jos sunt trecute cateva recomandari privind unitatea. Fara a tine cont de calitatea celorlalte parti componente ale sistemului. (Automatizare, cazan, chiller, sistemul de canale, etc.).
PREZENTA AGENTULUI TERMIC IN TEVI : Verificati etansarea racordurilor tevilor. Verificati presiunea de lucru. Verificati aerisirea sistemului.
AUTOMATIZARE : Verificati ca temperatura setata a aerului tratat sa fie sub 50 °C. Verificati ca temporizatorul ventilatorului sa fie setat la minim 3 minute dupa ce bateria electrica a fost oprita. Verificati daca flusostatul pentru detectarea debitului este compatibil cu presiunea debitului nominal.
FUNCTIONARE : Verificati debitul de aer si presiunea statica. Verificati amperajul motorului.
v INTRETINERE
Cerintele minime pentru intretinerea unitatii de aer conditionat sunt:
Verificati starea si curatenia filtrului si inlocuiti periodic cand este necesar.
Perioada de schimbare a filtrului este de cca. 1 luna, dar aceasta trebuie adaptata la fiecare instalatie si la calitatea aerului.
Annual verificati fiecare pozitie mentionata in cap. III.1
Inlocuiti orice componenta daca si cand este necesar.
EUROCONFORT GRUP SRL
CUPRINS
LIVRARE - RECEPTIE
Conditii de livrare
Identificare si repere
ACCESORII DE MONTAJ
MONTAJUL
Conditii generale de utilizare
Alegerea locului de amplasare
Fixarea si montajul unitatii de tratare aer simpla sau cu module aditionale
Asamblarea unui modul aditional la modulul de baza.
Montajul pe plafon, pe perete sau pe sol.
Racordul la tubulatura.
Racordurile de apa.
Racordurile electrice ale motorului.
Racordarea electrica a bateriei de incalzire.
Punere in functiune
OPERATII PRELIMINARE
PUNEREA CORECTA IN FUNCTIUNE
Copyright © 2025 - Toate drepturile rezervate
| Instalatii | |||
  | 
      |||
| 
		 | |||
| 
	 | |||
| 
 | 
  |||